Размеры стандартного туалета в квартире. Стандартный размер туалета для людей с ограниченными возможностями
- Размеры стандартного туалета в квартире. Стандартный размер туалета для людей с ограниченными возможностями
- Минимальная ширина туалета. Нормы
- Размеры туалета в квартире. Все о размерах туалетов
- Минимальная площадь санузла. Нормативное регулирование размеров санузла
- Размеры туалета с раковиной. Как определить оптимальные габариты?
- Маленький туалет размеры. Как подобрать размеры туалета при проектировании санузла в частном доме
Размеры стандартного туалета в квартире. Стандартный размер туалета для людей с ограниченными возможностями
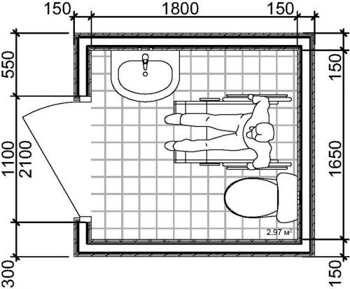
Отдельно при обсуждении нормативов следует упомянуть о размерах туалетной кабинки для людей с ограниченными физическими возможностями. Так, нормы СНиП 2.08.02-89, касающиеся общественных зданий, которые прописаны в пункте 4.36, регулируют стандартные размеры санузлов для инвалидов. Согласно требованиям выделяют такие размеры туалетов для инвалидов:

Дверь в туалете для людей инвалидов должна открываться только наружу
- ширина комнаты – 1,65 м;
- глубина – 1,8 м.
Обязательным условием считается тот факт, что дверь должна открываться строго наружу, чтобы не мешать свободному перемещению инвалидной коляски. По нормам необязательно наличие дополнительного оборудования, такого как писсуары или биде, но их установка считается крайне желательной.
Помимо того, что следует учитывать размеры кабинки туалета, нужно подбирать и оптимальное место её расположения, чтобы человек с инвалидностью мог с лёгкостью туда попасть без дополнительной помощи. Обязательным считается и наличие поручней как возле унитаза, так и возле раковины. Оптимальная высота размещения поручня – 75 см. При этом необходимо, чтобы с той стороны, с которой человек будет пересаживаться на унитаз с кресла, он был откидным.
Важно! Размеры дверей в ванную и туалет должны быть такими, чтобы человек в коляске мог спокойно в них проехать.

План туалета стандартных размеров для людей с ограниченными возможностями
В уборной, предназначенной для человека с инвалидностью, раковина должна устанавливаться на уровне не выше 80 см, а зеркало – на высоте 1 м. Обязательно требуется, чтобы зеркало было оборудовано системой, позволяющей регулировать угол наклона на 10°, что обеспечит дополнительное удобство инвалиду-колясочнику. На удобной высоте должна монтироваться и кнопка слива, лучше всего, если она размещена на одном из поручней.
Если человек имеет проблемы с тазобедренными или коленными суставами, то высота унитаза в туалете должна быть выше стандартной – около 45-60 см. В этом случае нужно обратить внимание на размеры инсталляции туалета. Инсталляция позволяет отрегулировать высоту установки унитаза и при этом не требует монтажа лишних подиумов или оснований другого типа. Минимальными размерами туалета в частном доме или квартире, предназначенного для людей с инвалидностью, считаются:
- ширина санузла с установленной раковиной – 1,6, а длина – 2,2 м;
- туалет, совмещённый с ванной, – 2,2х2,2 м.

Минимальные размеры туалета для людей инвалидов: глубина – 180 см, ширина – 165 см
Если санузел для инвалидов располагается в общественном месте, на двери должен быть размещён специальный значок, а внутри на удобной высоте устанавливается тревожная кнопка.
Минимальная ширина туалета. Нормы
Не последнюю роль в создании комфортного и функционального жилища играет санузел. От его размеров во многом зависит:
- каким образом вы будете размещать все основные сантехнические конструкции (ванну, кабину для душа, а также раковину, умывальник и биде);
- как будут проложены инженерные коммуникации;
- какие типы отделки могут быть использованы.

Минимальная допустимая площадь туалетов, а также иные параметры, связанные с габаритами этих помещений, законодательно регулируются через ГОСТы и СНиПы – они устанавливают метраж ванн и туалетов в жилых квартирах, а также допустимые параметры для общественных сооружений разного назначения.
Приступая к перепланировочным работам в своем жилище, следует внимательным образом изучить всю правовую базу в этой сфере . В противном случае вы рискуете столкнуться с тем, что результат ваших работ может быть признан не соответствующим действующим стандартам, незаконным и подлежащим демонтажу.
Обращаем внимание: для Беларуси, а также Украины и ряда других стран СНГ нормативы СНиПов относительно метража санузлов могут существенно отличаться от утвержденных в нашей стране. Свои различия могут иметь стандарты для некоторых регионов РФ.
Определенная группа ограничений касается также особенностей размещения санитарных комнат в многоквартирных домах. Так, вам могут отказать в согласовании перепланировки, если вы намереваетесь разместить уборную над кухней либо над жилой зоной, исключением могут стать лишь 2-уровневые квартиры с большим метражом.
Единственный вариант, когда строительство и перепланировка туалета могут проводиться без учета норматива — это проведение работ в коттедже, частном доме либо на даче. Если вы не собираетесь подключать внутридомовые коммуникации к общему канализационному стояку и центральной системе водообеспечения, то требования в точном следовании действующим нормативам отсутствуют.


Разберемся, каков оптимальный размер санитарной комнаты. Габариты гигиенического помещения в квартире:
- глубина — не меньше 1,2 м;
- ширина — не меньше 0,8 м;
- высота потолка — не ниже 2,5 м;
- удаленность от чаши унитаза до наклонной плоскости кровли (для туалетов, обустроенных в мансарде) — 1,05-1,1 м;
- высота потолка в прихожей возле входа в уборную – не ниже 2,1 м.

Дополнительно рекомендации сделаны относительно размещения сантехники и расстояний между отдельными элементами комплектации санузла:
- между чашей унитаза и биде — от 25 см;
- перед ванной чашей – от 70 см незанятой площади;
- около унитаза – от 60 см;
- с обеих сторон от унитаза – от 25 см;
- перед раковиной — от 70 см.
В соответствии со СНиПами дверь уборной может открываться только наружу, устанавливать конструкции, распахивающиеся внутрь не рекомендовано.

Выход из туалета должен вести либо в прихожую, либо в коридор — расположить ее возле кухни, столовой или жилых комнат не рекомендовано.
Отдельному регулированию подлежат санузлы, устанавливаемые для пользователей с ограниченными возможностями. В соответствии с принятыми стандартами для инвалидов параметры уборной должны иметь следующие размеры:
- ширина —1, 65 м;
- глубина — 1,8 м.
Согласно закону установка дополнительного сантехнического оборудования (биде и писсуаров) необязательна, однако их монтаж желателен. Кроме этого, необходимо подобрать оптимальное расположение сантехники, так чтобы пользователь на коляске мог беспрепятственно попадать туда без сторонней помощи.


Обязательным является установка поручней около унитаза и рукомойника, оптимальная высота их размещения —75 см.
Желательно, чтобы с той стороны, где человек пересаживается с кресла на унитаз, последний он был откидным.
Размеры туалета в квартире. Все о размерах туалетов

Санузел является одним из основных помещений в квартире или доме. Отсутствие достаточной площади может стать большим неудобством, чем кажется на первый взгляд. Все о размерах туалетов читайте в нашей статье.


Нормы
Производя ремонтные или строительные работы, собственник старается увеличить жилую площадь именно за счет санузла. В результате таких манипуляций на санузел оставляют минимальную квадратуру. Для того чтобы не заработать штраф от государственных органов, следящих за этим, следует придерживаться стандартных норм, определяющих размеры туалета, принятые техническим регламентом по СНиПу и ГОСТу. Нормативно-правовая база содержит широкий список документов, регулирующих минимальные габариты и допустимые параметры туалетных комнат в квартире, частном доме либо в другом здании. Нормы распространяются не только на габариты, но и на расположение уборной. Поэтому рекомендуется обдумать и просчитать нюансы планировки до начала внесений существенных изменений.
Важно! В частном домовладении можно отказаться от установленных правил местонахождения и площади туалетов только в том случае, если не произведено подключение к центральной канализации и водопроводу.


Общепринятые параметры гигиенических комнат в типовом панельном доме начинаются с 1200 на 800 мм. В квартирах улучшенной планировки эти значения начинаются с 1500 на 800 мм и могут вместить в себя раковину и узкую машинку для стирки. В частном домовладении есть возможность производить замеры по собственному усмотрению, не ограничивая себя в рамках. Но следует понимать, что не стоит бросаться по все тяжкие.
При этом стоит сказать еще о нескольких общедопустимых правилах, касающихся планирования этого пространства, а именно:
- открытие дверей должно производиться наружу;
- выход должен быть оборудован в нежилое помещение;
- пространство перед ванной или душевой кабиной не может быть меньше 70 см.;
- биде располагается на 25 см в удалении с любой стороны унитаза;
- между раковиной и стеной должно быть 45 см.;
- унитаз устанавливается таким образом, чтобы от его передней стенки до стены не было меньше 60 см, а по бокам – не менее 25 см.
Данные стандарты распространены на туалетные комнаты, имеющие достаточную площадь в панельных домах.
Минимальная площадь санузла. Нормативное регулирование размеров санузла
Минимальная площадь санузла, конфигурация помещения, а также другие параметры, связанные с линейными размерами санузлов, регулируются целым перечнем нормативно-правовых документов. Для Российской Федерации это в первую очередь «Санитарные нормы и правила» (СНиП), которые определяют как размеры санузлов в общественных зданиях различного назначения, так и минимально допустимые габаритные размеры помещений данного типа для жилых домов.
Вот почему, приступая к перепланировке своей квартиры, необходимо очень внимательно изучить нормативно-правовую базу в данной области, иначе велик риск, что перепланировка будет признана не соответствующей СНиП и как следствие – незаконной.

Размещение сантехники в санузле
Обратите внимание!
Для Украины, Беларуси и других государств нормы СНИП, касающиеся габаритов санузлов, могут отличаться от принятых в РФ.
Также некоторые отличия имеют нормативные габариты санузла для ряда отдельных регионов и населенных пунктов.
Отдельная категория ограничений касается размещения санузлов в квартирах. Как правило, БТИ отказывают в регистрации перепланировок, вследствие которых санузел размещают над жилой зоной или кухней.
Исключение составляют только двухуровневые квартиры большой площади, однако в любом случае каждую перепланировку ванной в панельном доме необходимо рассматривать отдельно.
Единственный случай, когда возведение санузла или его перепланировку можно проводить «без оглядки» на СНИП – это перепланировка санузла в частном доме. Если вы не подключаете санузел к стояку канализации и водоснабжения, необходимость в строгом следовании нормам отсутствует. Впрочем, иметь их в виду все же следует – но уже из чисто практических соображений.
Размеры туалета с раковиной. Как определить оптимальные габариты?
Для каждого оптимальные размеры санузла могут быть абсолютно разными, но самое главное – это найти золотую середину. Потому что маленькое помещения для такого большого скопления сантехники, техники и различных бытовых приспособлений не подойдет и не будет соответствовать эргономике, но и тратить огромное количество квадратных метров на уборную – тоже не очень правильное решение. Для того чтобы найти эту необходимую середину нужно учитывать абсолютно все факторы и особенности.
Для душевой кабины понадобится площадь размером около 2–2,5 кв. м, для ванны – 2,5 –3,5 кв. м, для раковины нужно около метра, для унитаза – 1,2–1,8 кв. м. Получается, что для обычной семьи, состоящей из 4–5 человек, оптимальный размер санузла составляет около 8 «квадратов».


Если возникает необходимость в использовании гостевого санузла, тогда учитывается частота, количество посетителей и возможность использования уборной инвалидами.
Необходимо учитывать:
- Существуют разные модели унитазов в среднем 40 х 65 см.
- Размеры средних ванн составляют 80 х 160 см. Угловые ванны обычно около 150 х 150 см. Средняя высота ванн – около 50 см, высота ванны с ножками – 64 см.
- Душевые кабины бывают абсолютно разнообразными, но основные размеры – это 80 х 80 см, 90 х 90 см, 100 х 100 см.
- Полотенцесушитель должен располагаться в 70–80 см от ванны.
- Оптимальные размеры биде – 40 х 60 см.
- Оптимальный размер умывальника – около 50–60 см в ширину.


Еще необходимо учитывать все особенности оптимальных габаритов санузлов для людей с ограниченными возможностями. Размеры учитываются исходя из габаритов инвалидной коляски. Минимальный размер ванной должен быть не меньше 230 кв. см, туалета около 150 кв. см. Таким образом, ширина уборной должна быть 1,65 кв. м, длина – 1,8 кв. м.
Максимальных размеров санузла нет, поэтому при законной перепланировке вы можете выбрать себе уборную размером и 7, и 8, и 9 кв. м.


Источник: https://stroika-i-remont.info/stati/razmery-tualeta-s-rakovinoy-minimalnye-razmery-sanuzlov
Маленький туалет размеры. Как подобрать размеры туалета при проектировании санузла в частном доме

. Совершая покупку квартиры, мало кто обращает внимание на его площадь туалета. А ведь эта комната одна из часто пользуемых в квартире. Я расскажу вам о том, какими должны быть оптимальные размеры туалета для удобства вашей семьи.
Принятые стандарты размера туалета и ванной
Существуют квартиры различных типов. Каждая квартира в зависимости от типа планировки имеет свои габариты ванной.
Существуют стандарты минимальных габаритов санузлов, эти стандарты определяются «Санитарными нормами и правилами» (СНиП).
Наименьшие габариты раздельных санузлов , оснащенного унитазом и раковиной, рассчитываются в соответствии с методом открывания дверей. Общепринятые замеры двери: 75х210 см с шириной около 60 см. Минимальная площадь комнаты, с дверью открывающейся наружу составляет 0,9х 1,15 м. Для санузла с дверью , открывающейся внутрь, нужны большие размеры, так как она занимает дополнительное место, габариты такого туалета должны быть не менее 0,9х 1,45 м.

Минимальные габариты стандартного санузла
Стандартный – в хрущёвке в основном укомплектован раковиной, душевой и унитазом. Наименьшие площадь – 1,65х 2 м, либо 1,45х 2,2 м. Если санузел раздельный, площадь ванной составляют 1,35х1,65 м. Если же помещение оснащено резервуаром – ванной, с учётом расположения сантехники, кабинки для душа, нормы составляют 2,1х2,1 м, либо 2,35х1,7 м (2,35х2,5 м).
При постройке жилых помещений, обязательно должны учитываться стандарты габаритов санузлов в соответствии с СНиП.

Важно не только размеры унитаза, но и его способность выдерживать вес до 500 кг
Типовые габариты в жилых домах
Рассмотрим типовые параметры разных санузлов:
- В многоквартирных домах есть два типа постройки уборной: обычная и обновлённая. Отличие их состоит в том, что в обновленной планировке площадь туалета позволяет вместить раковину и стиралку. Соответственно площадь обычного туалета 1200*800 мм, 1500*800 мм и обновлённого 100*1500 мм. Если же ванная, совмещенная, то минимальное место составляет 1650-2000*1200-2500 м.
- В домах хрущевской постройки совмещенных построек 3,3 – 3,8 м2.
- Размеры уборных в постройках нового панельного типа от 4 кв.м.
- Улучшенные новостройки имеют площади санузлов 5-6 кв. м.
- Если речь идёт об индивидуальном строительстве, частном доме, то для масштабов санузла ограничений нет.

Заниматься перепланировкой следует только при помощи специалистов
Как выбрать оптимальный размер санузла
Главное в этом деле найти середину и сделать свой санузел оптимальных масштабов. Ведь в такой комнате, как в этой, очень много сантехники и техники необходимой для повседневной жизни. Чтобы всё это рационально вместить, не выделяя на туалет большую часть жилья, нужно взять к сведению все факторы и особенности.

Для каждого оптимальные размеры санузла могут быть абсолютно разными, но самое главное – это найти золотую середину
Во первых нужно учесть, сколько места понадобится для унитаза, душевой и ванны.
Также стоит подумать о наличии сантехники и учесть их замеры
Учитывая эти данные можно сказать, что для семьи, допустим из 4 человек, будет достаточно 8 кв. метров санузла.
Средние размеры сантехники:
- унитаз, в основном 40 х 65 см;
- габариты обыкновенной ванны 80 х 160 см, с высотой 64 см учитывая ножки;
- ванна углового типа 150 х 150 см;
- средние замеры душевых 80 х 80 см, 90 х 90 см, 100 х 100 см;
- если вы хотите биде, то вам придётся выделить 40 х 60 см;
- ширина средней раковины для умывания 50–60 см.
Еще необходимо учитывать все особенности оптимальных габаритов санузлов для людей с инвалидностью
В основном мы говорим о минимальных размерах уборной, если есть законное разрешение о перепланировке, то вы можете сделать туалет и 9 кв. м.
Если вы решили сделать планировку своей ванной комнаты, то отнеситесь к этому серьёзно.
Нужно учесть все особенности планирования такой комнаты, чтобы в итоге в ней вместились все необходимые для вас коммуникации.
Есть несколько решений для планировки маленькой комнатушки. Для экономии пространства вы можете использовать ниши. Ниши – это как бы отверстия в стене, где может разместиться, к примеру, стиральная машина. Такое решение поможет вам сэкономить пространство квартиры не ущемляя себя в бытовых удобствах.

В начале планирования необходимо учесть все факторы заранее, потому что в дальнейшем может не влезть сантехника и коммуникации
Если же вы решились на перепланировку, то такие меры проводятся только с разрешением коммунальных служб. Если вы решите сделать перепланировку без помощи специалиста, это может привести к обвалу стены.