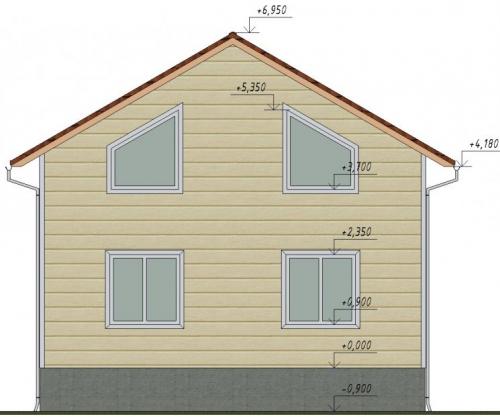
План дома 8 на 8 с мансардой. Дом с мансардой 8х8: приемы рациональной планировки
- План дома 8 на 8 с мансардой. Дом с мансардой 8х8: приемы рациональной планировки
- Планировка одноэтажного дома 8 н. 1-этажный дом (8 на 8)
- Планировка дома 8 на 8 два этажа. Одноэтажный дом 8 на 8 - планировка
- Дом 8 на 8 планировка. Дом 8 на 8 — лучшие идеи и самые интересные проекты квадратных домов (135 фото и видео)
- Проект дома 8 н. Пристройки
- Дом 8 на 8 из блоков. Обсуждаем пеноблочные дома
- Бесплатный проект дома 8 н. Определяем этажность дома по проекту
План дома 8 на 8 с мансардой. Дом с мансардой 8х8: приемы рациональной планировки
Чтобы дом с мансардным этажом был удобным и комфортным, при выборе стоит внимательно рассматривать индивидуальные особенности каждого проекта. Желательно, чтобы конструкция включала аттиковую стену, позволяющую расширить возможности пространства. Также план дома 8 на 8 с мансардой должен предусматривать хорошую систему вентиляции; в противном случае, на мансардном этаже будет душно.
Загородный дом подобного размера будет удобным и полноценным жильем, если удачно выполнить его планировку; наиболее обещающими являются следующие приемы:
- Расположение входа в дом . Наиболее рациональными являются проекты, вход в дом в которых располагается посередине более длинной стены (если в основании здания лежит прямоугольник). Такое решение позволяет избавиться от лишних коридоров и смежных комнат, оставив прихожую, из которой можно попасть в любое помещение.
- Проектирование без коридоров . Коридоры незаметно поглощают значительную часть полезной площади и не приносят никакой видимой пользы. Оптимальным проектом дома 8х8 представляется вариант совсем без коридоров.
- Лестница . Чтобы не потерять драгоценные метры, лестницу практичнее запроектировать в прихожей или одной из комнат (удобнее в гостиной). Подлестничное пространство также не должно пропасть даром. Организация кладовой или встроенного шкафа (в зависимости от конструкции лестницы) позволит решить проблему с хранением нужных бытовых мелочей и сезонных вещей.
- Расширение пространства . Если позволяет размер участка, стоит обратить внимание на проекты с пристройками. Веранда с выходом на кухню или терраса, на которую можно попасть из гостиной, сделают внутреннее пространство гораздо объемнее.
- Экономное проектирование . Проектировщикам известно немало приемов, позволяющих сделать проект дешевле. Экономным решением является проект дома и гаража с общей кровельной системой, когда над гаражом можно устроить балкон или террасу с выходом из мансарды.
- Экономные инженерные решения . Если в вашем доме планируется два санузла (на каждом этаже), нижний располагают рядом с кухней, а верхний — над первым. Это позволит использовать одну систему коммуникаций для всех трех помещений, что очень выгодно.
Планировка одноэтажного дома 8 н. 1-этажный дом (8 на 8)

3. Коттедж площадью 64 м2
Самый экономичный вариант постройки — 1-этажный дом. На площади в 64 м2 можно разместить не только обязательные помещения в виде кухни, гостиной и санузла, но выделить площадь под одну или даже две спальни.

4. Спальня с хорошим дневным освещением
В случае, если дом строится для одного или двух взрослых, проживающих без детей, то наиболее разумно будет сделать одну небольшую спальню, но при этом больше пространства отвести под гостиную, где хозяева будут отдыхать, проводить время за просмотром ТВ или принимать гостей.

5. Загородная гостиная с камином
Таким образом на одном этаже функционально расположатся комнаты: гостиная (17,64 м2), спальня (12,25 м2), 8-метровая кухня, объединенный санузел и небольшая 3-метровая кладовая. Общее пространство коридора составит около 4 м2.

6. Маленькая, но уютная кухня
При строительстве стен предусмотрите в гостиной минимум 2 окна, чтобы хорошо освещалась обеденная зона и место отдыха. В спальне и на кухне достаточно одного окна, но если кухня будет расположена на северной стороне дома, то вдоль рабочей зоны, где происходит приготовление пищи, сделайте еще одно окно.

7. Окна вдоль рабочей поверхности кухни
Пространство кухни и гостиной можно объединить. При этом общая комната будет просторнее и не придется воздвигать дополнительную стену, а следовательно получится сэкономить на стройматериалах и отделке. Обеденная зона в этом случае будет одна, в отличие от предыдущего варианта.

8. Открытая планировка кухни-гостиной
Если в доме будет проживать семья с детьми, то жилых комнат должно быть как минимум две: родительская спальня и детская.
Для одного ребенка достаточно будет комнаты площадью до 10 м2. При этом на спальню родителей придется 12,5 м2. Т.к. в детской ребенок не только спит, но играет и занимается, желательно, чтобы эта комната располагалась с южной или западной стороны дома. В таком случае при возвращении со школы или дет. сада ребенок сможет проводить время в своей комнате при естественном дневном освещении.

9. Планировка со спальней и детской
Если детей двое и больше, но дом строится одноэтажный, жилую комнату с большей площадью отведите под детскую. В идеале, количество окон должно совпадать с количеством учебных столов в комнате, чтобы у каждого ребенка было комфортное, хорошо освещенное место для занятий.

10. Спальня для двух детей с рабочим местом у окна
Планировку одноэтажного дома, площадью 8 на 8, где проживают две семейные пары, можно организовать так. После прихожей следует просторная 17-метровая комната, объединяющая кухню и гостиную. Это место приготовления еды, приема пищи, общих встреч и т. д. Далее располагаются две жилых комнаты равной площади (примерно по 13 м2). Санузел общий, площадью 3,3 м2.

Планировка дома 8 на 8 два этажа. Одноэтажный дом 8 на 8 - планировка
Пусть это будет планировка дома 8 на 8 с одним этажом для семьи с двумя детьми. Родителям и детям потребуется две спальни, с учетом того, что дети подрастут и им понадобятся столы для учебных занятий. Детская спальня должна быть больше взрослой, и это будет уже не совсем спальня, а просто многофункциональная комната.

Для взрослой спальни с одним окном потребуется как минимум 12 кв.м, для детской комнаты на два окна – 18 кв. м. В детской помимо спальных мест и рабочих столов можно будет разместить многофункциональные шкафы. Для зала можно будет выделить 20 квадратов, тогда на такие важные помещения, как кухня, санузел и коридор останется 14 квадратных метров. Кухню принято размещать ближе к входу, так что из коридорчика (он же – прихожая) могут вести три выхода: один в совместный санузел, другой – в кухню, и третий – в проходную гостиную (зал). Но при желании сделать спальни размещенными подальше друг от друга можно поварьировать. Зачастую один из детей, когда вырастает, переселяется в гостиную.

Распределив таким образом метраж, обдумайте, окна каких помещений куда будут выходить. Это придется сделать до того, как начнется строительство. Так как солнца нет на северной стороне, там может быть спальня родителей и вход в дом с коридором. Детская может располагаться с западной стороны, так как с утра дети сначала в школе, затем – в вузе и так далее. Останется прикинуть кухню и гостиную. Кухня вполне может выходить окнами на восток, гостиной – останется юг, и если ваш дом в южной местности, в гостиной же потребуется установка кондиционера, если вы живете в Сибири или на севере, учитывайте также и розу ветров. Лучше, чтобы постоянные ветра были направлены на скат крыши, что уменьшает ее парусность.





Дом 8 на 8 планировка. Дом 8 на 8 — лучшие идеи и самые интересные проекты квадратных домов (135 фото и видео)
Строительство дома — очень ответственный момент, ведь помимо того, что нужно выбрать участок, решить из какого материала построить дом, просчитать бюджет, также необходимо тщательно продумать планировку будущего жилища.

От грамотности проектирования зависит комфорт и функциональность дома, а также дальнейшие затраты на его эксплуатацию.

Нарисуем — будем жить!
Естественно, прежде чем начать строительство, важно детально прорисовать все нюансы — площадь комнат, окна и межкомнатные перегородки, учитывая при этом конструкционные особенности безопасности.
Обзор готовых вариантов частных домов, всегда можно посмотреть на портале.

В помощь вам послужат готовые программные решения, с помощью которых можно как скорректировать готовую планировку, так и создать свой собственный проект с нуля.

Программы 3D-визуализации позволяют не только схематично изобразить план будущей постройки, но и создать фото-дизайн интерьера дома и ландшафтного оформления участка.

Что важно учесть при проектировании
Дом квадратной планировки, особенно небольших размеров, на многих строительных интернет-ресурсах является одним из самых популярных. Поисковики предлагают тысячи фото различных проектов домов 8х8 м2 и порой сложно определиться с выбором.
Советуем для начала определиться с ключевыми нюансами, которые важны для вас.

Собирается ли ваша семья за обеденным столом и нужна ли вам просторная кухня-гостиная, в какой комнате вам нужно больше дневного света, хотите ли вы гардеробную, совместный или раздельный санузел предпочтительнее?

Эти и другие детали позволят существенно сузить круг предложенных планировок домов 8 на 8.

Как выбрать материал для строительства
Для того, чтобы было проще ориентироваться в выборе сырья, нужно знать особенности и характеристики каждого из них.

Дом из кирпича
Кирпичный дом — вариант по прежнему самый популярный, т.к. ни у кого нет сомнений в его долговечности.

Преимущества:
- Высокая износостойкость
- Высокая шумоизоляция
- Хорошая теплоизоляция
- Широкие возможности для реализации проектов любой сложности.
Недостатки:
- Сложность укладки
- Тяжелый вес
- Потребность в прочном фундаменте
- Потребность в теплоизоляционном материале.

Дом из бруса
Дом квадратной планировки из бруса, несмотря на свои особенности обработки, по душе многим жителям России. Ведь он является образцом уюта и экологичности.

Преимущества:
- Невысокая стоимость относительно кирпичного дома
- Экологичность
- Более высокая теплопроводность
- Эстетическая привилегия без дополнительной отделки
- Долговечность.

Проект дома 8 н. Пристройки
Дом 8 на 10, как и любой загородный коттедж может быть запроектирован с пристроенными техпомещениями. Обычно пристраивают гаражи. Гараж может быть обычной пристройкой или планировочной частью дома с внутренним входом. Над гаражом иногда обустраивают террасу, на которую можно выйти из мансарды.
Примеры типовых проектов
В последнее время для строительства загородных коттеджей все чаще используются готовые типовые проекты. В отличие от индивидуальных проектов типовые имеют невысокую стоимость. При этом они не требуют времени на подготовку и могут применяться сразу после приобретения. Кроме того, типовых проектов много, они довольно разнообразны и их можно в процессе выбора сравнивать и сопоставлять.
Обзор популярного типового проекта дома 10 на 8:
Проект коттеджа с тремя спальнями
Проект, представленный ниже – это пример архитектурной разработки с просторными спальными помещениями. Две большие спальни запроектированы в мансардном этаже. Площади каждой из этих комнат достаточно для размещения в них индивидуальных санузлов. Спальня на первом этаже может стать комнатой старшего члена семьи или кабинетом.
В проекте есть закрытый входной тамбур и прихожая открытой планировки с лестницей. Данное планировочное решение повышает комфортность проживания, но допускает не самое рациональное распределение пространства. Чтобы получить более просторную гостевую зону, лучше выбирать проекты, в которых запланирован или тамбур, выполняющий функцию прихожей, или просто прихожая.
Дом имеет террасу и балкон над ней. Терраса увеличивает ширину пятна застройки еще на два метра. Зато она может быть использована как летняя кухня или беседка.
Проект дома для большой семьи
В следующем проекте тоже есть спальня на первом этаже. Но здесь все спальные комнаты более компактны, что позволило увеличить их количество. В таком доме предусмотрено все необходимое для комфортного проживания большой семьи. В мансардном этаже даже запланирован холл, в котором можно обустроить вторую гостиную. Дополнительная зона отдыха очень важна для спокойного совместного проживания людей разных поколений.
Данный коттедж так же имеет террасу, которая одновременно является крыльцом здания. Однако в этом случае терраса не увеличивает пятно застройки, и занимает часть первого этажа. Дом 8 на 10, проект с мансардой которого не предусматривает пристройки в виде террасы или гаража, может быть построен на небольшом участке с минимальными материальными затратами.
Дом 8 на 8 из блоков. Обсуждаем пеноблочные дома
Дело в том, что пеноблоки обладают определенными особенностями и характеристиками, которые и определяют некоторые аспекты строительства.
Давайте рассмотрим проект дома 8 на 8 из пеноблоков и на его примере обсудим все, что может нам повстречаться в строительстве.
С чего начать
Проектирование всегда начинается с изучения состояния почвы на участке. Это имеет непосредственное отношение к тому, какой тип фундамента мы выберем для нашего дома.
Ведь здесь нам нужно учитывать, что пеноблоки сами по себе — достаточно легкий материал, а соответственно и фундамент мы можем подбирать не такой массивный и дорогой.
Однако базис выбирать нужно на основании двух факторов:
- Состояния почвы.
- Общих нагрузок дома.
Кроме того, при такой площади (а 8х8 — это 32 погонных метра, если говорить о ленточном фундаменте; 64 квадратных метра, если говорить о монолите), определяющим фактором при равных технических требованиях может выступать цена вопроса.
Любой проект должен предполагать оптимальные строительные параметры, но и стараться оптимизировать затраты. С этой точки зрения, идеально, если проект позволяет и впишется свайное основание, которое и функционально и финансово удовлетворит все наши требования.

Вариант свайного заложения
Нельзя сказать, что есть определенная инструкция по выбору проекта, однако можно просто сделать несколько сносок и определить параметры, по которым можно ориентироваться:
- Размер участка строительства. Если он достаточно большой, можно остановить свой выбор на одноэтажном доме, благо обозначенный размер, 8х8, это достаточно большой дом, даже в один этаж.
- Количество человек, которые будут проживать в здании.
- Наличие подвала или гаража.
- Второй этаж, как вариант увеличения общей площади дома.
То есть, если ответить последовательно на каждый из поставленных вопросов, назовем их так, мы получим некое определения для выбора проекта.

Типичный проект дома с мансардой из пеноблоков, отделанный сайдингом
Возможности пеноблоков
Не менее важно знать, на что мы можем рассчитывать, используя в строительстве пеноблоки. Ведь этот материал при всех своих плюсах, все-таки не отличается прочностью.
Сегодня мы можем предложить следующие малоэтажное строительство:
- Нежилые помещения, типа гаража.
- Пристройки к основному дому.
- Дачные дома небольшой площади.
- Полноценные загородные частные дома, в два этажа.

Дачный небольшой домик
Естественно, что при физических свойствах пеноблока возникает вопрос о безопасности строительства двух этажного строения. Поспешим всех успокоить, можно использовать обвязку бетоном и устраивать железобетонный каркас, который и возьмет на себя основной груз несущих стен.
Кроме того, есть отличные проекты домов из пеноблоков 8х8 с мансардой.
Отличные, потому что мансарда может сразу решить несколько вопросов:

Пример мансардного типа
- Практически заменить второй этаж по площади.
- Исключить необходимость в устройстве еще одного перекрытия.
- Снизить общий вес, и соответственно, снизить нагрузки на фундамент.
Мы не просто так остановимся, чтобы лучше рассмотреть проект дома 8х8 из пеноблоков с мансардой, дело в том, что именно такой вариант выглядит наиболее привлекательным и рациональным из всего, что сегодня есть на проектном рынке.
Важно! Мансарда может мыть вообще облегченного типа. Мы сооружаем ее по типу каркасного строительства, используя древесину и влагостойкий гипрок с утеплителем. ВИ по цене и по эксплуатационным характеристикам, это просто супер вариант!
Мансарда позволяет сэкономить буквально на каждом из этапов работ.
Посудите сами:
- Снижается нагрузка на основание, значит, снижается и цена фундамента.
- Увеличивается жилая площадь, соответственно есть возможность еще пристройку построить в будущем без ущерба для площади участка земельного.
- Нет необходимости в сооружении перекрытия и затем кровли. Мы сразу собираем крышу и утепляем ее.
Итак, можно сделать некий промежуточный вывод, который мы оформим следующим образом:
- Строить мы можем дома до двух этажей.
- Наиболее рационально выглядит здание с мансардой.

Простой тип мансарды
Пристройки
Можно изначально решить, что у нас к зданию будут присоединены определенные постройки, это обязательное условие, ведь это дополнительная нагрузка на почву и на наш фундамент. Все должно учитываться.
Наиболее распространенный вариант пристройки – гараж. Проекты домов из пеноблоков 8х8 с гаражом сразу учитывают это строение в будущих работах.
Статьи по теме:
- Пристройка к дому из пеноблоков
- Проекты домов с мансардой
- Дом 8 на 8: двухэтажный проект
Пример жилого дома с гаражом
Почему столько внимания гаражу?
- Во-первых , как мы уже сказали, это дополнительная нагрузка на грунт.
- Во-вторых , необходимо все учитывать и в проектировании системы отопления.
Бесплатный проект дома 8 н. Определяем этажность дома по проекту
Если еще не выбрали, сколько этажей требуется в вашем будущем коттедже, возьмите на заметку следующие аспекты:
– 1-этажный дом 8 на 8 с чердачным помещением – часто если ресурсов не достает, чтобы полностью завершить дом с мансардой, тогда можно съесть медведя по частям: прежде всего окончив первый этаж, а мансарду сделать на время чердачным помещением без отделки. Сделать мансардный этаж можно будет когда угодно;
– проекты мансардных домов 8 на 8 выглядят финансово максимально наиболее целесообразными, обладают разумным разделением общего и личного пространства, высокими уровнями энергоэффективности. Вместе с тем, существуют и недостатки, в подобных домах придется побольше внимания обратить, обыгрывая кровельные скосы и аттиковые стены;
– проект 2-этажного дома 8 на 8 обойдется в осуществлении значительно затратнее по сравнению с планами коттеджей с мансардой и 1-этажными домами, зато у Вас окажется 2 полноценных уровня;
– дом в один этаж по проекту объединяет на одном уровне все спроектированные процессы – исключение лестничных маршей позволит комфортно перемещаться внутри, но цена 1-этажного частного коттеджа с аналогичными параметрами получится значительно больше в сравнении с мансардным домом, ведь увеличатся наиболее существенные части сметы – крыша и основание.
Также необходимо обозначить, что планы домов 8 на 8 м. в реализациях мансардного, одно- 2-уровневого типа при одинаковых параметрах будут иметь отличающуюся площадь.