Ворота гаражные секционные автоматические размеры. Стандарты ширины и высоты ворот для гаража
- Ворота гаражные секционные автоматические размеры. Стандарты ширины и высоты ворот для гаража
- Ворота гаражные распашные. Изготовление и установка ворот для гаража своими руками
- Ширина гаражных ворот. Типовые размеры гаражных ворот
- Ворота в гараж подъемные секционные своими руками. В чем привлекательность подъемно-секционных ворот
- Металлические ворота для гаража. Из каких материалов можно сделать
- Видео совет по выбору проема для автоматических ворот.Подходящие размеры для ваших ворот.
Ворота гаражные секционные автоматические размеры. Стандарты ширины и высоты ворот для гаража
Занимаясь проектированием гаража, основное внимание уделяют расчету его размеров. И здесь важны не только общая высота, ширина постройки, но и
Типовые размеры гаражных ворот
При разработке чертежа конструкции важно учесть:
- Габариты, количество размещаемых автомобилей. Во внимание берется наличие багажника и высота машины вместе с ним, ширина авто с боковыми зеркалами.
- Особенности въезда в гараж. Учитывается, будет ли конструкция построена выше или ниже уровня грунта, наличие поворотов, качество обзора.
- Как близко гараж находится от забора, автомагистрали.
- Способ открытия дверей. Потребуется установка калитки или нет.
- Предполагается ли усовершенствование этой машины или покупка новой.

Размеры ворот. A – ширина проема. H – высота проема. h – притолока (перемычка). a1 – заплечик левый. a2 – заплечик правый. L – глубина.
Если решено заказывать ворота у одного из производителей, то лучше заранее ознакомиться с их размерной сеткой полотен или пригласить на объект замерщика.
Стандартные
Независимо от того, будут ли ворота самодельные или покупные, они должны быть смонтированы так, чтобы автомобиль свободно заезжал в гараж и при этом по бокам оставались зазоры.
С этой целью к ширине машины прибавляют по 30 см с каждой стороны.
Если ширина автомобиля от 1,8 до 2 м, то оптимальной шириной проема будет 2,5 м. Этот показатель считается самым ходовым у большинства заводов-изготовителей.

Высота гаражных ворот по ГОСТу для легковых авто – от 2,3 до 2,6 м.
Среди владельцев дач, частных домов спросом пользуются такие типы створок с соответствующими им размерами:
- распашные – 4*2 м;
- рулонные (рольставни) – 4*2,7 м;
- секционные – 2,25*2 м;
- откатные (сдвижные) – 3*1,9 м;
- подъемные с поворотом – 2,4*2,2 м.
ГОСТ размеров металлических ворот для гаража:
- http://docs.cntd.ru/document/1200156975
Минимальные
Если площадь участка небольшая и хозяевам необходимо максимально сэкономить пространство, то допускается использовать минимальные размерные величины.

При условии ровного заезда для обычного легкового автомобиля хватит ширины 2 м. Под мотоцикл требуется оставить 1,8 м.
По высоте ворота гаража должны быть минимум 1,8 м, но находиться в помещении с такими низкими потолками будет некомфортно. Поэтому на высоте лучше не экономить.
Максимальные
Ограничений со стороны законодательных нормативов нет. Все зависит от технических возможностей производителей, предпочтений хозяев.
В зависимости от способа открытия ворот, материала для обшивки размерная сетка разных компаний различается.

При стандартной комплектации максимальной высотой считается 3,08 м, шириной – 6 м. По требованию заказчика возможно создание больших створок. Зачастую это касается обустройства промышленных зданий, складских ангаров, автосервисов и автомоек.
Распространенные размеры проема в зависимости от типа ворот
Если из дома в гараж не предусмотрен прямой проход, то лучше сделать в воротах встроенную калитку, чтобы при необходимости попасть в помещение со двора.

Выпускается несколько вариантов ворот, которые отличаются способом открытия, управления (автоматически, вручную).
Разберем особенности устройства каждого из них.
Распашные
Общепринятый вид ворот для гаража.
Конструкция проста: рама, сваренная из металла, с двумя створками крепится к коробу на петлях.
Распашные ворота легко сделать самостоятельно.
Минус – необходимо свободное пространство перед гаражом для открытия.

Ворота гаражные распашные. Изготовление и установка ворот для гаража своими руками
При строительстве гаража всегда на первом месте стоят его защитные функции, прочность материалов и механизмов.

Он должен быть устойчивым к взлому, чтобы не пустить непрошенных гостей.
Гаражные ворота — это ключевое звено в защите автомобиля от угона или порчи. Даже малейшая ошибка в монтаже со временем может сыграть с владельцем злую шутку. Поэтому к их установке нужно отнестись с максимальной ответственностью, внимательностью.
Пользователи часто ищут:
- Каркас ворот из профильной трубы
Варианты конструкций гаражных ворот
В зависимости от способа открывания, принципа работы створок ворота бывают нескольких типов.
Распашные
Традиционный для частного сектора формат ворот в гараже.

Распашная конструкция хороша следующим:
- Монтаж, стройматериалы и фурнитура в разы дешевле, чем у других видов.
- Их удобно утеплять, что позволяет сохранять тепло внутри помещения даже зимой.
- Такие ворота несложно сделать самому.
- Для установки не требуется много пространства.
- Возможен монтаж электрического двигателя для подключения автоматической системы управления воротами.
Делают одну или две створки. Открывать их можно как наружу, так и внутрь (на выбор хозяина).
Недостатком считается то, что зимой придется расчищать въезд от снега.
Подробную инструкцию по.
Откидные (подъемно-поворотные)
На вид это цельный щит из профилированного, железного или стального листа, который полностью закрывает дверной проем.

При открытии створка поднимается, делает поворот под прямым углом и заезжает под потолок гаража горизонтально.
Регулируется работа системой рычагов, электродвигателем и редуктором.
Пользователи отмечают достоинства таких ворот:
- надежные;
- не занимают свободного пространства;
- поддаются теплоизоляции;
- автоматизируются.
Но и минусов ус поворотным механизмом достаточно.
- Не подходят для частой эксплуатации.
- Уменьшают высоту проема в среднем от 20 до 30 см.
- Важна точность установки, поэтому рисковать делать их самому не стоит .
По этим причинам откидные ворота не столь популярны среди домовладельцев.
Откатные
Состоят из одной створки. Фиксируются к направляющему верхнему профилю. Работают за счет движения роликов по нижнему рельсу.
При открытии ворота механическим (вручную) путем или с помощью дистанционного управления (автоматика) откатываются по направлению вдоль стены.
Плюсы:
- Откатные ворота обладают повышенной взломостойкостью.
- Во время работы не занимают свободного места.
- Могут быть автоматизированы.
- Открытие не зависит от наличия снега на участке.
Минусы:
- Существенный недостаток в том, что стена, по которой смещается створка, должна быть больше по ширине, чем сама створка.
- При интенсивном использовании отмечается быстрый износ набора роликов.
Раскладные (подъемно-секционные)
Насчитывают несколько горизонтальных секций, соединенных между собой петлями. Подъемный механизм расположен на потолке помещения.
Материал секций – сэндвич-панели.
При открытии створка поднимается вверх по направляющим профилям, расположенным по бокам, и фиксируется в горизонтальном положении на потолке.

Простой конструкцию назвать сложно. ЭТО не самый лучший вариант самодельных ворот. Монтаж рекомендуется заказывать у специалистов.
Из плюсов таких дверей:
- автоматизированная система управления;
- аккуратный внешний вид;
- шумоизоляция;
- теплоизоляция;
- экономия свободного пространства;
Из минусов:
- высокая цена материалов, установки;
- плохая устойчивость к взлому.
Секционные ворота нуждаются в постоянном уходе, что включает смазку направляющих профилей, петель. Периодически необходимо проверять исправность автоматики.
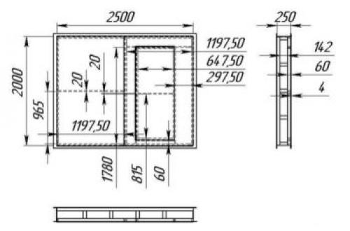
Ширина гаражных ворот. Типовые размеры гаражных ворот
В первую очередь рассмотрим стандартные размеры гаражных ворот, используемых для хранения одного автомобиля: минимальные размеры по ширине составляют 2,25 м, средние – 2,5 м. Минимальная высота гаража составляет 2 м.
Что же касается максимальных размеров такого сооружения, то они не ограничены и не регламентированы никакими стандартами.
Совет! Чтобы получить более точные размеры гаража на этапе планирования его постройки, следует измерить машину и добавить к полученным размерам по 30 см с каждой боковой стороны. В среднем, ширина легковушки без учета боковых зеркал составляет 180 см. Если прибавить к ним 60 см, то получится стандартный размер в 2,4 м.

Размеры гаражных ворот.
Стандартная ширина ворот для гаража зависит от вида транспортного средства, которое будет там находиться на хранении:
- если в гараже предполагается хранение мотоцикла, скутера, то ширина ворот должна составлять как минимум 1,8 метра;
- легковушке достаточно 2,5 метра;
- ширина воротного проема в гараже, где планируется хранение джипа, микроавтобуса должна быть не менее 4,8 метров.
Что касается возведения гаража для хранения одновременно двух автомобилей, то строительные нормы и регламенты не указывают четких границ и размеров воротного проема. На практике наиболее оптимальной шириной гаражных ворот в данном случае будет величина в 4,8 метра.
Пространство для проезда автомобиля будет меньше проема, поскольку некоторое место занимает каркас конструкции ворот. И этот момент следует учитывать на этапе проектирования данного элемента.
Кроме самого размера каркасной части ворот необходимо позаботиться о наличии дополнительного пространства для привода, направляющих, если гараж будет оборудован секционными воротами, либо короба в случае, если проектом предусмотрен рулонный тип воротного полотна.
На этапе изготовления любого типа гаражных ворот необходимо учитывать следующие показатели:
- ширина и высота проема;
- наличие свободного пространства для открытия/закрытия створок ворот – речь идет о распашном типе;
- высота притолоки – расстояние от потолка до проема;
- минимальный зазор от боковых стен постройки до проема.
Ворота в гараж подъемные секционные своими руками. В чем привлекательность подъемно-секционных ворот
Причины и условия, по которым автомобилисты отдают предпочтение подъемно-секционным схемам, очевидны:
- Внешний вид гаражных ворот новой конструкции значительно симпатичнее и приятнее;
- Вместо двух тяжелых распашных створок используется одно наборное полотно из нескольких секций, при внешней сложности конструкции можно собрать секционные ворота своими руками за несколько дней;
- Как правило, секционные гаражные ворота устанавливают с прицелом на дальнейшую автоматизацию процесса открытия-закрытия дверей. В этом смысле подъемно секционные конструкции вне конкуренции, установить управляющую аппаратуру и привод значительно проще, чем на распашные створки.
Важно! Благодаря тому, что полотно секционных ворот утоплено в дверном проеме, потоки дождевой воды, снег и водяная пленка не затекают в уплотнение, тогда как для распашных гаражных створок осенне-зимний период всегда сопровождается примерзанием уплотнителя к стальной раме.
Именно возможность открывать гараж нажатием кнопки на пульте, без необходимости выходить из салона автомобиля, больше всего привлекает автолюбителей. Нередко гаражные створки старой схемы приходится открывать под дождем, отметать от распашных дверей сугробы снега, прежде чем удастся попасть в помещение гаража.
Родственные по устройству подъемно поворотные гаражные ворота в условиях снежных заносов также частенько приходится откапывать, меньше, чем распашные, но потрудиться предстоит немало, прежде чем появится возможность освободить нижнюю кромку дверного полотна. У секционных конструкций подобных проблем практически нет. Даже если занесет снегом и отключится электроэнергия, секционные гаражные двери можно относительно просто поднять с помощью ручного привода.
Устройство секционных ворот
Разумеется, устройство подъемно-секционных ворот значительно сложнее, можно сказать, что секционные воротные схемы, фото, являются изделием нового поколения. В общей сложности в новых гаражных дверях используется около двух десятков узлов и деталей.
Основные элементы конструкции подъемно-секционных ворот приведены на схеме.
В упрощенном варианте в конструкцию подъемно-секционных ворот входят:
- Дверное полотно, собранное из отдельных 4-5 секций. Отдельные панели соединены между собой на шарнирах. Секции чаще всего изготавливаются в виде сэндвич-панелей. Между двумя листами тонкого оцинкованного металла укладывается утеплитель из пенополиуретана или минерального волокна;
- Две пары направляющих, соединенных дугообразными секциями. Вертикальные балки, соединенные с верхней поперечиной и стальным порожком, играют роль рамы гаражных ворот, обеспечивающей прочность дверного проема. Горизонтальные направляющие служат для удержания секционного полотна ворот в потолочном пространстве;
- Электропривод, обеспечивающий подъем дверного полотна и укладку его на горизонтальные направляющие;
- Дополнительные пружины линейного или торсионного типа, предназначенные для уравновешивания немаленького веса дверного полотна. Это позволяет снизить нагрузку на электропривод и роликовые опоры;
- Для обеспечения минимального сопротивления при подъеме на торцах каждой секции устанавливаются пластиковые или металлические ролики с резиновым покрытием.
Металлические ворота для гаража. Из каких материалов можно сделать

Распашным воротам из профильной трубы при правильном изготовлении и эксплуатации гарантирована долгая жизнь
Несмотря на широкий выбор строительных материалов, надёжные распашные ворота можно сделать несколькими способами.
Вариант №1:
- Металлический уголок 50х50з3 мм – для изготовления каркаса створок и усиливающих его укосин либо поперечин.
- Листы холоднокатанного металла толщиной 2,5-3 мм. Крепятся к каркасу с выпуском в 3 см. Используется сварка.
- 4 петли сечением 25 мм, размеры 30х160 мм. Привариваются на листы металла через дополнительные металлические пластины.
Вариант №2:
- Труба прямоугольного сечения 40х40х2,5мм или 50-50-2,5 мм для каркаса створок и усиливающих элементов.
- Листы металла толщиной 1,5-2 мм, фиксируются к каркасу заклепками.
- 4-6 петель.
- 4 металлические пластины под петли.
Для устройства стоек ворот используются трубы 80х80х3 мм. Верхнюю балку, усиливающую проём, изготавливают из швеллера №16 (высота полок 160 мм) или №18, в зависимости от ширины ворот. Порог можно сделать из тех же материалов: профильной трубы или металлического уголка.
Наиболее надёжный способ устройства распашных ворот в гараже – смонтировать под них раму из швеллера №24 и установить её на этапе строительства стен и перекрытий . Если такой возможности нет, монтируют усиливающие проём элементы: верхнюю балку, порог и стойки для створок.
Справка! Предложенные варианты материалов для устройства распашных ворот в гараже универсальны и подходят для любых строений: кирпичных, бетонных, деревянных, из пено- и газоблоков. Единственное исключение – гараж из металлопрофиля. Для таких строений нужны облегчённые конструкции.
Для гаражей из металлопрофиля делают «гибкие» ворота, такие, чтобы каждую створку можно было с минимальными усилиями прижать к проёму. Каркас таких конструкций состоит из гнутого профиля открытого сечения (г- или п-образного). Створки устанавливаются на 4-6 петель.
Ворота с жёстким каркасом проектируют и изготавливают таким образом, чтобы створки подходили к проёму с минимальным зазором и сразу закрывались на предусмотренные запоры, без приложения дополнительных усилий. Точные данные о требуемых материалах в конкретном случае можно получить посредством вычислений.