Как выбрать унитаз по размеру правильно?
Как выбрать унитаз по размеру правильно?
Размеры ванной комнаты являются важным фактором при выборе унитаза. Также при выборе размера унитаза важен вид канализационного входа. Расстояние от унитаза до стен или других сантехнических устройств должно быть не менее 25 см – 30 см.
Как выбрать унитаз по размеру ванной комнаты
В небольших ванных комнатах пространство не всегда является ограничением для достижения желаемой эстетики и удовлетворения требований к функциональности. Мы научим вас, как выбрать унитаз по размеру правильно.

Размеры ванной комнаты являются важным фактором при выборе унитаза:
- если у вас большая ванная, выбирайте удобный и красивый унитаз большого размера - он будет наиболее гармонично смотреться в пространстве;
- в случае небольшой ванной комнаты надо выбрать компактный унитаз, соответствующее размерам помещения.
Размеры небольших унитазов
Обычно размеры стандартного унитаза составляют 60-70 см в нижней части и 40-50 см в ширину. Тем не менее, есть много моделей унитазов с компактными размерами, которые облегчают их установку в помещениях, где вы должны использовать каждый сантиметр.
Чтобы сэкономить пространство в полной мере, наиболее идеальным вариантом является наличие таких решений, как выбор моделей небольших унитазов с уменьшенным дном и длиной 50 см.
Вы можете также выбрать встроенный унитаз с инсталляцией, чтобы оптимизировать пространство, так как механизмы остаются за перегородкой.
Правила выбора унитаза по размеру
Чтобы правильно выбрать унитаз по размеру, необходимо предварительно произвести замеры в ванной комнате.
Перед покупкой унитаза учитывайте следующие нормы:
- расстояние от унитаза до стен или других сантехнических устройств должно быть не менее 25 см – 30 см;
- от края унитаза до передней стены – не менее 55 см – 60 см.
При выборе размера унитаза важен вид канализационного входа (вертикальный, горизонтальный или косой) и расстояние от конца канализационной трубы до стены. Именно на это расстояние унитаз будет отодвинут от стены.
Если вы хотите выбрать подвесной унитаз, учитывайте расстояние, требуемое для монтажа инсталляции и отделки фальшстены.
Как выбрать унитаз по высоте?
Оптимальной будет высота унитаза, при которой ноги человека свободно стоят на полу. Если в семье есть люди разного роста, выбирайте унитаз среднего размера по высоте.
В этой статье мы обсудили, как выбрать унитаз по размеру правильно. Компания Грандфаянс предлагает большой ассортимент унитазов разных размеров.
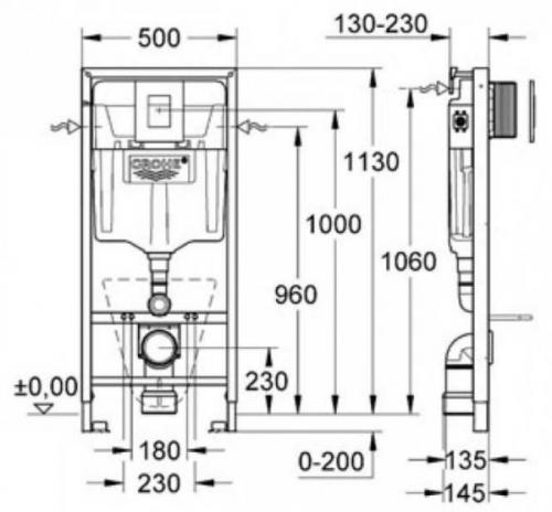
Размер унитаза с инсталляцией. На что обратить внимание при выборе
Инсталляции под унитаз продаются как в комплекте с чашей, так и отдельно. Проще, естественно, купить все в комплекте. Тогда все размеры точно будут совпадать. Если чаша уже имеется, необходимо будет смотреть на габариты рамы и расстояние между крепежными элементами — оно должно совпадать с монтажными отверстиями в унитазе.
Очень полезно, если рама имеет возможность регулировки по высоте — можно выставить чашу на нужный именно вам уровень. Обратите внимание также на тип окраски. Лучший вариант — порошковая окраска. Она надежна, создает жесткую долговечную пленку, которая хорошо держится на металле. Все остальные типы краски хуже держаться.

Размеры инсталляции Grohe Rapid Sl (Германия)
При выборе инсталляции для унитаза стоит обратить внимание на комплектацию. Обычно вместе с рамой идут элементы крепления — для подвески унитаза, арматура для фиксации канализационных и водопроводных труб. Некоторые фирмы в базовую комплектацию также включают бачок и кнопку слива. Слив, кстати, может быть двухрежимным. Он более экономный, так как при нажатии большой кнопки сливается 6-9 литров, малой — всего 3-4 литра воды. Хорошо если слив регулируемый — объем спускаемой воды можно подстроить под конкретную форму унитаза.
Какой тип лучше?
Какой из типов инсталляций под унитаз и биде лучше? Более надежной считается рамная конструкция — в ней обычно используются более толстый металл, но и стоит она дороже. В любом случае, при выборе рамы для подвесного унитаза обращайте внимание на прочность конструкции — она не должна шататься, ее элементы не должны прогибаться. Осмотрите сварные швы и качество окраски — не должно быть даже небольших огрехов.
И немного о производителях. Лучшими считаются инсталляции для унитаза произведенные в Германии и Италии. Но их сантехника дорогая. Не хуже качеством оборудование для ванных комнат и туалетов делают в Чехии и Болгарии, а ценовой диапазон на их изделия — средний. Наиболее дешевые инсталляции и подвесные унитазы — китайские, но с ними связываться рискованно — могут работать нормально, а могут быстро выйти из строя.
Размер унитаза от стены. Перепланировка санузла
Отдельное размещение туалета
Начнем с более несложного случая, в то время, когда туалет отделен от ванной комнаты. Несложнее он вследствие того что в таком туалете, в большинстве случаев, расположен один прибор. В большой комплектовке возможно добавлено биде, в случае если разрешают размеры помещения.
Мы сходу озвучим нормы расстояния от стенки до унитаза, принятые в СНиП 2.08.01-89* «Жилые здания»:
Обратите внимание! Официальные нормы обязательны для исполнения при государственном и частном постройке объектов. Хозяева квартир смогут их не делать и размещать устройства на свое усмотрение, поскольку их эксплуатация и обслуживание выполняется ими же
направляться заявить, что эти нормы актуальны в том случае, в то время, когда туалет достаточно просторный, и вы не понимаете, где лучше поставить тот либо другой прибор. Но в большинстве постсоветских квартир таковой неприятности не появляется, поскольку габариты туалета минимальны, и унитаз ставят посередине кабинки у задней стенки.
Обратите внимание! Большая часть туалетных кабинок советской эры имеют такие габариты, при которых установка компакта ровно посередине помещения у задней стенки дает те самые минимальные расстояния до боковых стен и входной двери. Совмещенный санузел
Совмещенный санузел
Если туалет и ванная находятся в одном помещении, задача мало усложняется тем, что вам нужно рационально разместить пара сантехнических устройств в довольно малый комнате.
Дополнительные неприятности может привести к необходимости установки бытовой техники – стиральной машины, бойлера и т.д. Наряду с этим наиболее приемлемый вариант планировки предполагает не только рациональное и эргономичное, но и гармоничное с позиций дизайна размещение всех объектов.
Это еще одна особенность современности: люди желают жить комфортно и красиво, а этого, как мы знаем, не запретишь.
В случае если ванная большая, тогда нужно поделить ее помещения на территории: территорию душевой кабины либо ванны, территорию умывальника, территорию туалета и т.д. Но в большинстве советских и многих современных квартирах для того чтобы раздолья нет, и задача сводится к исполнению минимальных требований по расстоянию между соседними устройствами, устройствами и стенками и наличию проходов.
Довольно часто компакт и биде, а время от времени и умывальник располагают в линию у стенки. В этом случае между соседними устройствами должен быть зазор не меньше 20 см, лучше – 30 см. Имеется в виду расстояние от края до края.
В случае если рядом с унитазом расположена раковина, наряду с этим подход к ней осуществляется со стороны прибора, тогда нужно не забывать о пространстве для наклона: на протяжении умывания человек наклоняется к раковине и отходит мало назад. Минимальное пространство для этого должно быть не меньше 70 см.
Обратите внимание! Размеры расстояний до боковых стен принимаются без трансформаций – 38 – 45 см от средней оси чаши до стенки. Аналогично не изменяется требование по расстоянию перед унитазом – оно образовывает как минимум 53 см, для комфортного применения – 76 см
Тут возможно вносить коррективы лишь в громадную сторону.
Для совмещенных санузлов очень актуально поднимается вопрос экономии пространства. Одним из примеров таковой экономии есть унитаз с бачком в стенке. Монтаж данной модели своими руками пара усложнен, но применение современных инсталляций и комплектов с рамами упрощает и эту задачу.
При перепланировках ванных и уборных направляться учитывать расстояния между соседними устройствами, и не забывать про отступы от стенку (см.кроме этого статью «Унитаз биде: назначение и особенности конструкции»).