Проект электроснабжения квартиры. Исходные данные на проект
- Проект электроснабжения квартиры. Исходные данные на проект
- Проект электроснабжения квартиры программа. Лучшие программы для рисования электрических принципиальных схем: как бесплатно начертить схему разводки дома
- Заказать проект электрики квартиры. Зачем нужно заказывать проект электрики квартиры?
- Проект электроснабжения квартиры pdf. Legrand. Альбом типовых проектов электроснабжения
- Проект электроснабжения квартиры самостоятельно. Разводка электропроводки в квартире схема
Проект электроснабжения квартиры. Исходные данные на проект
Электрическая система квартиры подключается от центральной общедомовой магистрали. Чтобы специалисты проектного предприятия смогли составить для квартиры качественный проект электроснабжения квартиры, им потребуются технические условия.
ТУ собственник квартиры может получить в управляющей компании, предоставив свидетельство о праве собственности на жилье. В этом документе указывается максимально разрешенная мощность внутренней системы электроснабжения, номинал вводного автомата и другие данные, которые должны быть учтены проектировщиками. Помимо ТУ собственнику нужно будет получить у эксплуатирующей компании также акт разграничения балансовой принадлежности.
Для разработки профессионального проекта, специалистам также потребуется техническое задание. Техзадание на проект электроснабжения квартиры должен составлять собственник помещения. В этом документе принято указывать данные о расположении квартиры, ее особенностях и имеющихся требованиях к мощности, техническим характеристикам проектируемой системы. Грамотно составленное ТЗ должно включать в себя следующую информацию:
- Общие сведения о квартире – адрес, площадь, расположение, назначение, число постоянных жильцов.
- Вид проектируемой системы электроснабжения, число фаз в электрических кабелях.
- Категория надежности электроснабжения, квартиры обычно относятся к третьей категории.
- Источник электроснабжения – центральная магистраль.
- Места монтажа распределительного оборудования и счетчиков потребления электроэнергии.
- Методика укладки электрических кабелей в квартире – скрытый монтаж проводки в штробах или за облицовкой стен/пола/потолка, открытый монтаж кабелей в специальных каналах.
- Перечень потребителей электрической энергии, которые будут установлены в квартире, указать мощность всех электрических устройств и предположительные места их монтажа.
- Требования к системам безопасности, к автоматическим выключателям и УЗО.
- Требования к характеристикам, мощности и расположению элементов системы освещения.
Собственник должен будет предоставить проектировщикам также схемы внутренних помещений квартиры, с указанием мест установки электрического оборудования, габаритной мебели, предпочтительных мест монтажа точек электрического потребления, желаемый маршрут прохождения электрических кабелей по стенам, полу или потолку.
Ниже указаны расценки проектирования электроснабжения квартиры и согласования в различных инстанциях. Работает автоматически, расценки актуальны.
Онлайн расчет стоимости проектирования
Мы имеем продолжительный опыт проектирования сетей электроснабжения на различных объектах. Мы можем выполнить электропроект в кратчайшие сроки. Для небольших квартир наши мастера могут создать проект в течение 1-2 дней, для более крупных объектов проектирование может проводиться до 1 недели.
Проект электроснабжения квартиры программа. Лучшие программы для рисования электрических принципиальных схем: как бесплатно начертить схему разводки дома

Программа рисования электрических схем — современный и удобный инструмент, заменяющий устаревший способ черчения проектов на листе бумаги от руки. Сейчас представлен широкий ряд платных и бесплатных ПО. Специалисты могут выбрать любую программу, соответствующую их потребностям и возможностям.

Преимущества программ для рисования электрических схем
Программы для рисования электропроводки помогают:
- сократить время работы;
- автоматизировать процесс;
- увеличить производительность.
Критерии выбора
При выборе ПО следует руководствоваться следующими критериями:
- характеристиками и свойствами программы;
- качеством продукта;
- удобством использования;
- устройством, на которое будет установлено ПО;
- бюджетом.
Бесплатные программы для рисования электрических схем
Для индивидуального использования существует ряд бесплатных программ, которые являются общедоступными.
Microsoft Visio
Функции Microsoft Visio:
- прорисовка чертежа розеточной группы;
- создание электропроекта для здания;
- дизайн электрощитов;
- разработка схемы питающей сети.

Детали, нарисованные в Microsoft Visio, распечатываются и экспортируются в формат PDF.
«Компас-электрик»
Система предназначена для автоматизации проектирования и выпуска комплекта документов на электрооборудование различных объектов производства, в которых используется проводной монтаж.
«Компас-электрик» представлен 2 основными модулями:
- Базой комплектующих — содержит информацию об аппаратуре, спецификационные характеристики, графические обозначения на схемах. Для удобства разработаны инструменты для наполнения, упорядочивания и корректировки.
- Графическим редактором — помогает создать проектную документацию, в которую входят электросхемы принципиального расположения и монтажно-коммутационного типа, перечни комплектующих, спецификации, ведомости покупных изделий, таблицы.
«Электрик»
Приложение подходит не только электрикам, но и всем, кто затрудняется в выборе автоматов, УЗО, сечения жил кабелей и т.д.

С помощью данного ПО можно:
- сделать расчет выполненных работ, подставив расценки;
- вычислить метраж провода для дома, квартиры и т.д.
Dip Trace
В Dip Trace предлагается:
- формирование принципиальной схемы;
- разработка печатной платы;
- редактирование встроенной библиотеки компонентов.

Программа предоставляет обширное меню элементов для построения рисунка. При создании платы запускается автоматическая проверка соединений, после чего можно распечатать модель.
В бесплатной версии ограничено оформление платы — не более 300 выводов и 2 сигнальных слоев. При наличии ключа системы для некоммерческого использования допускается 1 тыс. выводов и 4 слоя.
Eagle
В Eagle пользователю доступно создание своих компонентов и библиотеки, дизайн макета транзистора. Интерфейс программы полностью англоязычный. В интернете встречаются неофициальные русификаторы от сторонних разработчиков.
Qucs
Qucs — это симулятор интегральной схемы, с помощью которого вы можете настроить чертеж с графическим пользовательским интерфейсом (GUI). После завершения моделирования его результаты выводятся на странице презентации или в отдельном поле.

ПО распространяется под лицензией GPL. Продукт предоставляет библиотеку диодов, транзисторов и т.д. В функционал входит такая математическая операция как, преобразование напряжения на выходе в децибелы.
Заказать проект электрики квартиры. Зачем нужно заказывать проект электрики квартиры?
Надзор за монтажными работами.
В случае подписания договора надзора наши специалисты будут постоянно присутствовать при проведении монтажных работ, выступая союзниками заказчика. В случае отклонения от требований проектной документации он будет своевременно оповещаться.
Снижение риска ошибок и переделок, уменьшение сроков.
В проекте имеются все необходимые схемы, планы, чертежи, описания. Благодаря им монтажные работы значительные работы значительно упрощаются и облегчаются. Как следствие, снижается риск ошибок и переделок, объект сдаётся быстрее.
Надёжность.
При последующих проверках электрики квартиры государственные органы в первую очередь проверяют её соответствие нормам технического законодательства. Проектировщики знают все эти требования, не отклоняются от них.
Наличие конкретного плана.
Готовый проект содержит пояснительную записку и подробную графическую часть. На основе этой информации легко выстроить чёткий план проведения монтажных работ. Потребуется только общее руководство ими.
Оптимизация монтажа.
При разработке проекта электрики учитываются все необходимые аспекты, которые могут всплыть потом при проведении монтажных работ. Все вопросы – технического и юридического происхождения – решаются заранее.
Минимизация финансовых расходов.
Проект электрики даёт возможность точно рассчитать необходимые материалы, электрооборудование, выключателей и розеток. Происходит оптимизация – покупать что-то ради запаса не требуется.
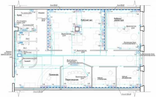
Проект электроснабжения квартиры pdf. Legrand. Альбом типовых проектов электроснабжения
Альбом типовых проектов. Электрические и информационные сети. Домашняя автоматизация. Техническое руководство. Жилые объекты и малые предприятия.
Данный альбом предназначен для электромонтажников и электриков, занимающихся сборкой щитов жилого и офисного сектора, менеджеров электротехнических компаний и их клиентов, заинтересованных в составлении полного и качественного проекта электрической части помещения.
Альбом призван помочь с выбором электротехнического оборудования (например, защитно-коммутационного оборудования, автоматических выключателей, УЗО, УЗИП и т.д.), а также окажет помощь в организации надёжного и безопасного электроснабжения помещения.
Пример проекта из альбома типовых проектов электроснабжения Legrand . План сети освещения офисного помещения:

План размещения электросилового оборудования:

Схема однолинейная:

Схема монтажная:

В альбом вошли следующие реализованные проекты:
- Электроснабжение квартиры;
- Электроснабжение квартиры повышенной комфортности (2 варианта);
- Электроснабжение офиса;
- Электроснабжение загородного дома;
- Электроснабжение мастерской художника;
- Электроснабжение гостиничных номеров;
- Электроснабжение автосервиса;
- Электроснабжение кафе.
Каждый из проектов включает в себя:
- Планы освещения;
- Трассировки розеточных и силовых групп электроснабжения.;
- Схемы подключения электротехнического оборудования;
- Монтажные схемы щитков и их 3D визуализацию.
Скачать книгу в формате PDF можно здесь:
Новое издание (5 проектов электроснабжения):
- Проект 1. Однокомнатная типовая квартира класса эконом ;
- Проект 2. Трехкомнатная квартира повышенного комфорта ;
- Проект 3. Дачный деревянный дом ;
- Проект 4. Одноэтажный коттедж ;
- Проект 5. Офис.
Проект электроснабжения квартиры самостоятельно. Разводка электропроводки в квартире схема
- Если электрический щит будет находиться в квартире, выделяют группы:
- освещение жилых комнат, кухни и коридоров;
- электроснабжение жилых комнат;
- электроснабжение кухни и коридоров;
- освещение и электроснабжение санузла.
Если в квартире электроплита, ее необходимо выделить в отдельную группу.
Не забудьте для повышения безопасности на каждую группу установить устройства защитного отключения (УЗО), так называемые выключатели дифференциального тока. Также ими обязательно снабжается электропроводка санузла и кухни.

После того, как группы спроектированы, необходимо определить места подключения всех основных потребителей электроэнергии. Это стиральная машина, электроплита, кондиционер, водонагреватель, духовка и посудомоечная машина.

Теперь можно определить места установки выключателей, светильников, распределительных коробок и розеток, а затем нанести их на черновой план электрики квартиры. Внимательно соедините все цепи и проставьте длины проводов.
Обязательно сделайте план электрики квартиры в двух экземплярах и уберите один из них в семейный архив с документами. Он еще не раз вам пригодится.
Теперь составляется чистовая схема электрики. Для этого изображается точный план всех помещений на каждом из листов с учетом всех размеров.
Все электрические точки на электросхеме проставляются с помощью общепринятых обозначений и соединяются линиями, обозначающими провода. Для лучшей читабельности рекомендуем провода освещения, заземления и силовые кабели обозначить разными цветами.
Обязательно следует пометить все расстояния: линейные размеры комнат, расстояния от проводов до стен, потолка, пола, а также до систем отопления. Такая схема будет не только отличаться большей наглядностью, но по ней можно будет производить и все необходимые расчеты.
Требования, правила, нормы
При составлении схемы следует помнить о некоторых важных требованиях к расположению электропроводки в жилых помещениях.
Нельзя подключать заземляющие контакты розеток к нулевым проводам, а также к системе водоснабжения или отопления. Это опасно для человеческой жизни. Для такой цели существует провод защитного заземления.
Если в квартире установлена не газовая, а электрическая плита, то главный автомат должен быть номиналом не менее 63А.
Провода прокладываются только по вертикали и горизонтали, располагаясь строго под прямым углом друг к другу.
Не стоит изменять их траекторию, в дальнейшем это чревато тем, что возрастает вероятность пробоя проводов гвоздем или дрелью при выполнении небольших ремонтных работ. Следует избегать пересечения проводов. Если это невозможно, то расстояние между ними должно быть более 3 мм.
При выставлении размеров на плане необходимо следить, чтобы расстояние от кабеля до пола или потолка составляло не менее 150 мм, до оконных рам, дверных косяков и углов – не менее 100 мм. Все выключатели и розетки лучше располагать на одной высоте.
При этом выключатели устанавливают слева от входных дверей на высоте 800-900 мм, а розетки – 250-300 мм. В некоторых случаях, например на кухне, расстояние может изменяться. Зазор между трубами отопления и проводами должен быть не меньше 30 мм. Провода к розеткам подводятся снизу, а к выключателям сверху.