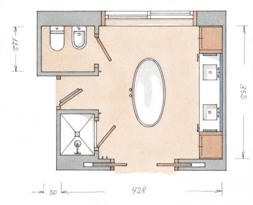
Стандартные и минимальные габариты санузла. Стандартные габариты комнат
- Стандартные и минимальные габариты санузла. Стандартные габариты комнат
- Минимальные размеры санузла с унитазом и раковиной. Как определить оптимальные габариты?
- Размер санузла в частном доме. Какими должны быть размеры туалета в квартире по ГОСТу и СНиПам
- Минимальная ширина туалета. Нормы эргономики и свои личные параметры
- Размеры санузлов в общественных зданиях - нормы
- Размеры совмещенного санузла с душевой кабиной. (+50 фото) Планировка санузла с душевой в частном доме
- Размеры туалета. Минимальные
- Размер туалета стандарт. Стандартные размеры унитаза и минимальный размер туалета
Стандартные и минимальные габариты санузла. Стандартные габариты комнат
Ни для кого не является секретом, что от габаритов санузла зависит дальнейшее размещение в нем необходимых компонентов. При правильном выборе размеров вы не будете сожалеть о том, что выделили слишком мало места под санузел. Или, наоборот, ваш санузел отнимает слишком много драгоценных квадратных метров у других, более нужных помещений, таких как зал или спальня. Кроме того, с размерами нужно определиться заранее для того, чтобы:
- удобно разместить все нужные составляющие (унитаз, ванну, раковину);
- правильно распределить необходимые коммуникации;
- продумать отделку помещения.
А еще нужно знать: все параметры, даже самые минимальные, имеют свои определенные нормы и стандарты (СНиП и ГОСТ). Они предусмотрены законом для применения в том случае, когда специализированные строительные организации возводят жилые многоквартирные дома или общественные здания разного предназначения. Здесь застройщики вынуждены соблюдать общепринятые правила, чтобы потом не было проблем со сдачей объекта.
Поэтому прежде чем начинать что-то переделывать в квартире, которая находится в многоквартирном доме, вам нужно оформить разрешение.
Эти правила касаются всех без исключения помещений, в том числе и ванной комнаты. А если вы проживаете в коттедже или частном доме, то разрешения брать не нужно.
Однако вернемся к основному вопросу габаритов ванной. В квартире они имеют следующие параметры:
- ширина – не меньше 0,8 м;
- глубина – не меньше 1,2 м;
- потолок в высоту должен быть 2,5 м.
Дверь из санузла должна выходить в коридор. В коридоре от пола до потолка высота не должна быть меньше 2,1 м.
Типовые габариты санузлов в многоквартирных домах обычно стандартные. В СССР размеры туалетов не были слишком большими. В «хрущевке» площадь не превышала 3,8 кв. м. В современных квартирах санузлы стали намного больше, их размеры доходят до 6 кв. м. А в элитном жилье туалет может быть более 9 кв. м. Когда планируется санузел в новостройках, застройщики иногда учитывают пожелания будущих владельцев по планировке и габаритам. Узнайте об этой возможности в строительной компании.
Кроме того, санузлы могут иметь минимальные размеры. И такие варианты встречаются довольно часто. Например, размеры некоторых туалетов могут даже быть намного меньше, чем предусмотрено по нормативам. Например, есть помещения площадью менее 2 кв. м.
Зачастую застройщики делают совмещенный санузел, в котором наряду с ванной устанавливают унитаз. При определении габаритов такого помещения обязательно учитывается установка всей нужной сантехники.
Минимальные размеры санузла с унитазом и раковиной. Как определить оптимальные габариты?
Для каждого оптимальные размеры санузла могут быть абсолютно разными, но самое главное – это найти золотую середину. Потому что маленькое помещения для такого большого скопления сантехники, техники и различных бытовых приспособлений не подойдет и не будет соответствовать эргономике, но и тратить огромное количество квадратных метров на уборную – тоже не очень правильное решение. Для того чтобы найти эту необходимую середину нужно учитывать абсолютно все факторы и особенности.
Для душевой кабины понадобится площадь размером около 2–2,5 кв. м, для ванны – 2,5 –3,5 кв. м, для раковины нужно около метра, для унитаза – 1,2–1,8 кв. м. Получается, что для обычной семьи, состоящей из 4–5 человек, оптимальный размер санузла составляет около 8 «квадратов».
Если возникает необходимость в использовании гостевого санузла, тогда учитывается частота, количество посетителей и возможность использования уборной инвалидами.
Необходимо учитывать:
- Существуют разные модели унитазов в среднем 40 х 65 см.
- Размеры средних ванн составляют 80 х 160 см. Угловые ванны обычно около 150 х 150 см. Средняя высота ванн – около 50 см, высота ванны с ножками – 64 см.
- Душевые кабины бывают абсолютно разнообразными, но основные размеры – это 80 х 80 см, 90 х 90 см, 100 х 100 см.
- Полотенцесушитель должен располагаться в 70–80 см от ванны.
- Оптимальные размеры биде – 40 х 60 см.
- Оптимальный размер умывальника – около 50–60 см в ширину.
Еще необходимо учитывать все особенности оптимальных габаритов санузлов для людей с ограниченными возможностями. Размеры учитываются исходя из габаритов инвалидной коляски. Минимальный размер ванной должен быть не меньше 230 кв. см, туалета около 150 кв. см. Таким образом, ширина уборной должна быть 1,65 кв. м, длина – 1,8 кв. м.
Максимальных размеров санузла нет, поэтому при законной перепланировке вы можете выбрать себе уборную размером и 7, и 8, и 9 кв. м.
Размер санузла в частном доме. Какими должны быть размеры туалета в квартире по ГОСТу и СНиПам
На этапе ремонта в доме или квартире многие стараются увеличить площадь именно за счёт размеров туалета и очень часто на эту комнату оставляют совсем мало места. Чтобы не ошибиться с площадью и потом не иметь проблем с государственными службами, нужно учитывать принятые по СНиПу стандартные размеры туалета в квартире.
В нормативно-правовых документах России существует большой перечень правил, регулирующих параметры санузлов, а также определяющих минимальные размеры туалета в квартире, доме или любом другом общественном помещении.
Также нормы устанавливают не только размеры, но и месторасположение санузла. Например, согласно правилам БТИ, если в результате перепланировки туалет оказался над жилой зоной или кухней, в оформлении такой квартиры откажут, а значит, придётся все переделывать. Иногда снисхождение делают лишь при проектировании двухуровневых квартир. В любом случае при расчёте размеров туалета в квартире панельного дома следует предварительно продумать все нюансы.

По нормативам СНиП минимальный размер туалета должен быть – 0,8х1,2х2,5 м
Единственное, когда можно не обращать внимания на принятые нормы и правила, – при планировании расположения и размеров туалета в частном доме, если не используется подключение ни к центральной канализации, ни к водоснабжению. И все-таки, прежде чем отказываться от установленных параметров, нужно принять во внимание стандартные размеры туалета, регламентируемые СНиПом:
- ширина – не менее 0,8 м;
- длина – от 1,2 м;
- высота стен – от 2,5 м.
Согласно нормам, выделяют стандартные размеры туалета в квартире, которые указаны в данной таблице:
| Тип помещения | Ширина, м | Длина, м | Площадь, м² |
| Совмещённый санузел с душевой кабиной (вместо ванны) | 1,4 | 1,6 | 2,24 |
При планировании туалета в частном доме эти стандарты можно округлить и сделать более просторное помещение, в котором свободно разместятся все предметы сантехники, при этом останется достаточно места для комфортного перемещения.
Полезный совет! Если под санузел отведена большая площадь, например, 6-7 м2, и в семье проживает большое количество людей, можно его разделить на два полноценных обособленных помещения. Рекомендуется в одной комнате установить не ванну, а душевую кабину, но унитаз с раковиной лучше монтировать в обоих помещениях. При оформлении таких санузлов можно использовать двусторонние инсталляции . Минимально рекомендованный размер туалета с раковиной в частном доме – 2-2,5 м2.
Минимальные размеры туалета, которые нужно учитывать при планировании пространства
Отдельно следует сказать о том, что согласно принятым нормам, если туалетная комната располагается на мансардном этаже, то расстояние от унитаза и до наклонного потолка не должно быть меньше 105 см. Другие важные правила, которые необходимо соблюдать при планировании размеров туалета в квартире:

Биде должно располагаться на расстоянии минимум 25 см от унитаза
- Дверь комнаты должна открываться строго наружу. Устанавливать дверь, которая распахивается внутрь, категорически не рекомендуется.
- Выход из санузла должен быть организован только в коридор или прихожую. Располагать дверь туалета вплотную к жилой зоне, а тем более к кухне, нельзя.
- При выходе из коридора высота потолка не должна быть меньше 210 см, что актуально в том случае, если планируется сделать в коридоре антресоль.
Нормами ГОСТа и СНиПа также регламентируется установка сантехники. Поэтому, если в санузле планируется установить не только унитаз, но и биде, умывальник или душевую кабину, нужно учитывать следующие показатели:
- Перед душевой кабиной или чашей ванны должно быть не менее 70 см свободного пространства.
- Биде нужно удалить от унитаза на расстояние не меньше 25 см. Располагать прибор при этом можно с любой стороны.
- Оптимальная дистанция от средней оси чаши и до боковой стены составляет 45 см.
- От передней стороны унитаза и до ближайшей стены должно быть 60 см свободного пространства, по сторонам рекомендуется оставить по 25-35 см.
- Если установлен умывальник, расстояние от него до ближайшей поверхности не должно быть меньше 70 см.

Умывальник желательно устанавливать на расстоянии не меньше 70 см от унитаза
Следует отметить, что предложенные стандарты больше подходят в том случае, если речь идёт о туалете, имеющем большую площадь, когда сложно определиться, как разместить все предметы сантехники. Зачастую площадь туалета в хрущевке не превышает нескольких квадратов. В таком случае унитаза устанавливают у задней стенки посредине кабинки, а на другие элементы редко находится дополнительное место. Также нужно отметить, что приведенные нормы в большей степени касаются планировки отдельного туалета. При оформлении совмещённого санузла столь строгие правила не действуют – при перепланировке нужно основываться на личном комфорте.
Полезная информация! Минимальная площадь туалета, которую можно встретить, – 1,8-2 м². При грамотном подходе даже в таких условиях получится создать комфортный уголок, правильно расположив мебель и использовав современную функциональную сантехнику.
Минимальная ширина туалета. Нормы эргономики и свои личные параметры
Сложности чаще всего возникают при планировании объединённых санузлов, потому что в них нет изначально заданных габаритов для каждой зоны. В результате не всегда понятно, какое пространство нужно оставить для санузла и какой размер ванны оптимальный, стоит ли его увеличивать. На какой высоте расположить раковину или смесители.
Давайте посмотрим основные схемы с оптимальными размерами. Самая комфортная ширина ниши под унитаз от 80 до 90 см. Нужно ориентироваться минимум на 90, особенно если человек крепкого телосложения, 80 это минимальный размер, даже 76 в некоторых схемах, когда вариантов совсем нет, но это неудобно. Должно остаться минимум по 30 сантиметров с каждой стороны унитаза и минимум 50 сантиметров перед ним. Если рядом расположен угол раковины, то 80 сантиметров не подходит.
Стандартной считается ванна 170 на 70. Минимальный размер, который можно встретить 100 на 70 см, сидячий вариант. Есть мнение, чем больше ванна, тем лучше, но это не всегда так.
Если человек небольшого роста, то ему сложно будет найти удобное положение в ванне 180 см. Кроме основных габаритов, нужно учесть бортик, если его делать. Это может быть бортик со стороны стены для монтажа смесителей или используемый как полка, а может, с внешней стороны. Обычно он делается около 10 сантиметров, но можно не делать его совсем, а подвести кран под край ванны.
Минимальная ширина душевой кабины или угла 76 см, максимальная обычно 110, соответственно ориентируйтесь на свои габариты (рост и комплекцию). Желательно не делать ширину меньше чем 80 сантиметров. При этом минимальный проход в душевую зону 55 см.
Минимальная комфортная ширина раковины с тумбой на одного человека 70 см. Речь именно об основной раковине, над которой вы будете умываться. Стандартная высота 85 см, но можно сделать чуть выше, если человек высокого роста. Исключение-небольшая раковина в гостевом санузле. Она может быть минимальной.
К примеру, вы объединяете ванну и душ, то нужно отдельно обратить внимание на доступ к смесителям, если вы используете стеклянные шторки. Лучше либо выбрать поворотный вариант, чтобы её можно было отодвинуть и включить излив, либо разнести единый смеситель на 2, один в душевой, а другой для ванны.
Также нужно проверить эргономику для стиральной машинки, если она находится в ванной, полотенцесушителя, всех смесителей и аксессуаров, например, держателя для бумаги.
Размеры санузлов в общественных зданиях - нормы
Минимальные размеры туалета в общественных помещениях регламентируются такими документами, как СНиП 31-06-2009, СанПиН № 983-72 и ГОСТом. Согласно этим документам, площадь помещения рассчитывается исходя из планируемого количества посетителей.
- Для мужской уборной должно быть предусмотрено: 1 унитаз на: от 20 до 30 чел. (для сотрудников, школьников), от 50 до 60 чел. (для посетителей); 1 писсуар на: от 15 до 18 чел. (для сотрудников), от 50 до 80 чел. (для посетителей), 0,5 лоткового писсуара (для 30 школьников); 1 умывальник на 4 унитаза (но не менее 1 на уборную);
- Для женской уборной: 1 унитаз на: не более 15 чел. (для сотрудников), 20 чел. (для школьниц); от 25 до 30 чел. (для посетителей); 1 умывальник на 2 унитаза (но не менее 1 на уборную).

Площадь в соотношении с количеством сантехнических приборов рассчитывается учитывая следующие нормы: на каждый унитаз или очко не менее 2,75 м2, на каждый писсуар или на каждые 0,75 длины лотка 1,5 м2. Под очком понимается 1 унитаз или 2 писсуара.
Размер раковины в общественном туалете не регламентируется, но перед ней должно быть свободное пространство не менее 0,7 м. Размеры кабинок должны удовлетворять следующим требованиям: минимальный размер 0,85х1,20 м с дверью, открываемой наружу. Высота перегородок между унитазами не менее 1,50 м. Именно таким образом регламентируют размеры санузлов в общественных зданиях нормы и правила.
Размеры санузла для инвалидов (мгн)
Размеры санузла для инвалидов в общественных зданиях также регламентированы соответствующими документами. Минимальные размеры кабины для маломобильных групп населения (МГН) могут быть 1,65х1,8 м, стандартные размеры 1,65х2,2 м.
Дверь должна открываться наружу и быть оснащена доводчиком и дополнительной ручкой на всю ширину дверного полотна. Опорные поручни должны располагаться у унитаза не ниже 75 см. Поручень со стороны посадки должен откидываться.
К туалетным помещениям любых размеров идеально подойдут наши сантехнические перегородки . Виды перегородок для общественных санузлов -
Почему с нами выгодно работать?
- имеем собственное производство,
- предлагаем лучшие цены по всей Москве,
- предоставляем гарантию,
- предлагаем свежие и оригинальные идеи по оформлению сантехнических помещений,
- знаем, как вас удивить.
Ищете, где купить сантехнические перегородки недорого в Москве? Компания Проформ поможет вам, звоните!
Размеры совмещенного санузла с душевой кабиной. (+50 фото) Планировка санузла с душевой в частном доме
Если санузел будет плохо обустроен – это негативно скажется на общем впечатлении от помещения, ⛲ даже если все остальные комнаты будут иметь идеальную планировку и дизайн. Поэтому так важно предусмотреть все до мелочей.
С чего начать планировку?
Продумывание планировки санузла может показаться простой задачей, но это только на первый взгляд. На самом деле, этот процесс требует учета многих факторов и выполнения ряда последовательных действий.
Первым делом необходимо обсудить предполагаемый результат с другими членами семьи, узнать их пожелания и привычки. Также стоит учитывать возможность появления новых жителей квартиры.



После сбора мнений членов семьи можно приступать к подготовке проекта нового пространства. Это невероятно важный этап, поскольку уже в этот момент нужно продумать все до мелочей. В зависимости от дизайна санузла строители будут выбирать разные способы технической реализации проекта.
Помимо дизайна стоит продумать процесс водоотведения: выбрать место вывода труб, внешний вид защитных решеток. После заполнения помещения техникой и мебелью что-то поменять уже будет проблематично.


Зачастую владельцы квартиры приходят к решению объединить ванную с уборной. Тогда процесс перепланировки будет следующим:
- Освободить помещения от мебели и сантехники, убрать облицовку пола и стен.
- Перенос и замена двери. Для дополнительной экономии пространства можно установить раздвижную дверь. Это особенно актуально для квартир небольшой площади.
- Подготовительные работы. Сюда входит перенос коммуникаций, монтаж перегородок, ниш, шкафов из гипсокартона. Сейчас самое лучшее время для проверки расположения осветительных приборов и внесения возможных изменений. На этом этапе полезно проверить вентиляционные каналы и очистить их при необходимости.
- Установка сантехники – раковины, ванной, унитаза и дополнительной техники, которая необходима жильцам.
- Отделка стен, пола и потолка. Чаще всего стены облицовывают плиткой или мозаикой, для пола можно также выбрать плитку, но с шершавой или ребристой поверхностью.
- Монтирование осветительных приборов.
- Расстановка мебели и наполнение помещения аксессуарами.


Требования к планировке санузла в жилом доме
Процесс планировки санузла должен производиться с учетом эргономики и строительных норм и правил.
Минимальная площадь:
- Уборная с унитазом – 1,2 кв.м.
- Уборная с унитазом и небольшой раковиной – 1,5 кв.м.
- Ванная комната с раковиной, ванной и стиральной машиной – 3,3 кв.м.
- Совмещенный санузел с ванной, унитазом, раковиной и стиральной машиной – 3,8 кв.м.
Свободное расстояние:
- Между биде и унитазом – от 20 см.
- Между полотенцесушителем и ванной или душевой кабиной – от 50 см.
- Между раковинами – от 25 см.
- Перед душевой кабиной или ванной – от 70 см свободного пространства, в идеале – от 1 метра.
- Перед унитазом – от 60 см свободного пространства.
- Вокруг унитаза – от 25 см.
- Перед раковиной – от 70 см, если она расположена в нише, то не менее 90 см.
Способ открывания двери. Только наружу, сам вход в санузел должен располагаться в коридоре, расположение двери в кухне или жилой зоне недопустимо.
Способ расположения сантехники:
- Линейный. Техника располагается вдоль одной стены. Этот способ подходит для узких прямоугольных помещений.
- Радиальный. Техника располагается вдоль нескольких стен. Такой вариант применим к помещениям по форме приближенным к квадрату.



Чтобы увеличить количество вариантов расположения техники и мебели, можно совместить уборную и ванную комнату. В этом случае необходимо узаконить перепланировку в БТИ.
Отделочные материалы
Важно уделить особое внимание выбору отделочных материалов для душевой комнаты в частном доме.
Пол
Напольное покрытие должно быть нескользким, влагоустойчивым и прочным, так как на него часто попадают брызги. Традиционным материалом для отделки пола является плитка. Это могут быть классические однотонные модели или более яркие решения с принтами и рисунками. А также встречаются варианты с имитацией натуральной древесины, камня или кирпичной кладки.
Можно использовать и другие отделочные материалы, например, ламинат или наливные полы. Специалисты рекомендуют использовать комбинирование, отделав область возле кабинки плиткой.

Размеры туалета. Минимальные
Квартиры и частные дома могут иметь самую разнообразную жилую площадь, от чего зависят габариты кухни, а также санузла. При небольшом размере жилища необходимо уметь правильно распределить место для туалета с ванной. Площадь комнаты будет зависеть от того, что именно в ней будет расположено.
- В комнате с унитазом минимальная ширина должна составлять 80 см, а глубина 1.2 м.
- В помещении, где есть унитаз и раковина, минимальная ширина составляет 1 м, а глубина 1.5 м.
- Для комнаты, в которой совмещается душ и туалет, минимальные размеры будут зависеть от габаритов сантехники. В помещении с унитазом, раковиной и душевой кабинкой минимальной шириной комнаты будет 1.6 м, а глубиной – 1.4 м.
- Если в совмещенном санузле находится унитаз, раковина и ванная, то минимальная ширина равна 2.5 м, а глубина – 1.5 м.
При проектировании данного помещения важно ориентироваться на габариты сантехники и ее расположение внутри. Особое внимание стоит уделить проектированию уборной для людей с ограниченными возможностями, чтобы они могли без труда сами себя обслуживать.
Габариты санузла в этом случае будут иными.
- Ширина туалета может остаться в пределах 80 см, так как инвалидная коляска должна пройти в подобное помещение. Глубина комнаты должна быть не менее 1.2 м, чтобы в ней нормально помещался человек на коляске и сантехника. Высота раковины не должна быть выше 85 см.
- Ширина ванной комнаты не может быть меньше 1.6 см, с учетом размера самой ванной, на которую выделяют 80 см, свободного места для коляски и удобной транспортировки из нее в ванную.
- Для душевой кабинки ширина помещения должна составлять 1.7 м, так как сама сантехника будет занимать более 80 см и человеку с ограниченными возможностями необходимо комфортно перебраться в нее.
При наличии минимального свободного места под санузел необходимо тщательно изучить место и распланировать его так, чтобы обеспечить максимальный уровень комфорта для любого жителя квартиры или дома. В этом случае рекомендуется делать общее помещение, в котором вместо ванной желательно устанавливать боковую душевую кабинку, монтировать частично встроенный в стену унитаз, а стиральную машину располагать под рукомойником.
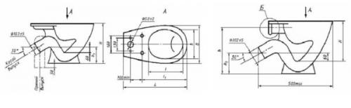
Размер туалета стандарт. Стандартные размеры унитаза и минимальный размер туалета
ГОСТ 30493-96 нормирует размеры только унитазов с полочкой. Еще есть те, которые устанавливают в вагонах, но они нам не нужны. Стандартные размеры унитаза с полочкой прописаны для двух вариантов: с цельноотлитой и с приставной. Вторая модель используется в комплекте с навесными/настенными бачками или вообще без них. Еще есть стандартные размеры детского унитаза. Они (детские) идут без полочки. Все размеры приведены в таблице. А чтобы понимать о чем речь, смотрим чертежи.

Чертеж унитаза с цельноотлитой полочкой и косым выпуском из ГОСТа
| Конструкция унитаза | H | h | h1 | l | l1 | L (глубина или длина) | b | B (ширина в самом широком месте) |
| С цельноотлитой полочкой для установки бачка (Компакт) | 150 | 330 | 435 | не менее 605 (может быть и 575 мм) | 260 | 340 и 360 | ||
| Без полочки (бачок навесной) | 370 и 400 | 320 и 350 | 460 | |||||
| Детский | 335 | 285 | 130 | 280 | 380 | 405 | 210 | 290 |
Итак, стандартный размер унитаза с полочкой (называют обычно «Компакт»):
- Длина — L — 605 мм. Это с учетом того, что модель компакт с выступом под установку бачка. Отдельно прописано, что можно выпускать более короткие модели длиной до 575 мм.
- Ширина — B — также два стандартных значения: 340 и 360 мм.
Высота унитазов не нормирована, но обычно в пределах 370-390 мм. Так что по стандарту, самый узкий унитаз — 340 мм, а самый короткий модели «компакт с полочкой и косым сливом» — 575 мм. Исходя из этих значений и минимально допустимых расстояний из предыдущего пункта, можем определить минимальные размеры туалета под установку такой модели. Начнем с вычисления ширины: 340 мм + 2*250 мм = 840 мм. То есть, расстояние между стенками не может быть меньше 84 см. Лучше, конечно, больше.
А по длине туалет должен быть 575 мм + 600 мм = 1175 мм. Но это без учета того, что надо еще канализационную трубу уложить и каким-то образом подключить слив. На это отведем еще 20 см. Итого получим, что минимальная длина туалетной комнаты 1175 мм + 200 мм = 1375 мм. В метрах это 1,375 м.

Стандартные размеры унитаза без полочки (с навесным бачком) из ГОСТа
Стандартные размеры унитаза с настенным бачком существенно меньше: длина/глубина 460 мм, ширина 360 мм и 340 мм. То есть, помещение может быть короче. Минимальная его глубина — 1060 мм — это только под комфортную установку чаши, но надо еще трубы подключить, так что добавим еще 20 см. Итого, получим, что для установки унитаза с навесным настенным бачком комната должна быть не менее 126 * 84 см. А если у вас помещение более длинное, можно чудо сантехники выдвинуть назад, а за унитазом и/или над ним сделать шкафчик с полочками.