Размеры для унитаза. Стандартные размеры унитаза и минимальный размер туалета
- Размеры для унитаза. Стандартные размеры унитаза и минимальный размер туалета
- Размеры унитаза с инсталляцией. Размеры инсталляций — полное руководство
- Унитаз размеры для установки. Какие выделяются стандартные размеры инсталляций под унитаз
- Размер унитаза от стены. Размеры и расстояния
- Размер унитаза стандарт. Какие выделяют стандартные размеры унитазов для санузлов
- Маленький унитаз размеры. Расчёт габаритов
- Минимальные размеры для установки унитаза. Минимальные и максимальные параметры
Размеры для унитаза. Стандартные размеры унитаза и минимальный размер туалета
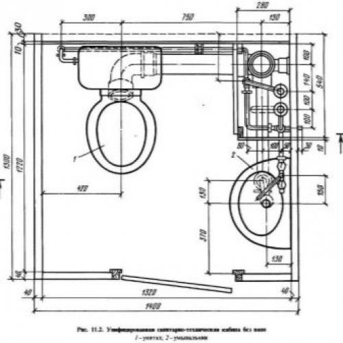
ГОСТ 30493-96 нормирует размеры только унитазов с полочкой. Еще есть те, которые устанавливают в вагонах, но они нам не нужны. Стандартные размеры унитаза с полочкой прописаны для двух вариантов: с цельноотлитой и с приставной. Вторая модель используется в комплекте с навесными/настенными бачками или вообще без них. Еще есть стандартные размеры детского унитаза. Они (детские) идут без полочки. Все размеры приведены в таблице. А чтобы понимать о чем речь, смотрим чертежи.

Чертеж унитаза с цельноотлитой полочкой и косым выпуском из ГОСТа
Итак, стандартный размер унитаза с полочкой (называют обычно «Компакт»):
- Длина — L — 605 мм. Это с учетом того, что модель компакт с выступом под установку бачка. Отдельно прописано, что можно выпускать более короткие модели длиной до 575 мм.
- Ширина — B — также два стандартных значения: 340 и 360 мм.
Высота унитазов не нормирована, но обычно в пределах 370-390 мм. Так что по стандарту, самый узкий унитаз — 340 мм, а самый короткий модели «компакт с полочкой и косым сливом» — 575 мм. Исходя из этих значений и минимально допустимых расстояний из предыдущего пункта, можем определить минимальные размеры туалета под установку такой модели. Начнем с вычисления ширины: 340 мм + 2*250 мм = 840 мм. То есть, расстояние между стенками не может быть меньше 84 см. Лучше, конечно, больше.
А по длине туалет должен быть 575 мм + 600 мм = 1175 мм. Но это без учета того, что надо еще канализационную трубу уложить и каким-то образом подключить слив. На это отведем еще 20 см. Итого получим, что минимальная длина туалетной комнаты 1175 мм + 200 мм = 1375 мм. В метрах это 1,375 м.

Размеры унитаза с инсталляцией. Размеры инсталляций — полное руководство
Мы уже писали о том, как выбрать инсталляцию, поэтому здесь поговорим только о существующих размерах инсталляций для установки в ванной комнате или туалете. Помните, выбирать лучше инсталляцию известных брендов имеющих официальное представительство в Беларуси: Geberit, OLI, TECE, AlcaPlast, Viega. Потому что в последствии, Вы всегда беспрепятственно сможете её обслужить и купить расходные материалы. У китайских образцов нету такой поддержки и запасные части «днем с огнем не сыщешь».
Разновидности размеров инсталляций
А теперь поговорим о размерах, какие они бывают?
- Стандартные инсталляции для унитаза — все, что представлено на рынке, за исключением ниже перечисленных вариаций. Все европейские инсталляции имеют одинаковые стандартные размеры.
- Узкие инсталляции помогут Вам беспрепятственно установить подвесной унитаз в ограниченном пространстве.
- Низкие инсталляции (82 см) — подходят для установки под окном, сантехническим люком и другим препятствием расположенным аккурат над инсталляцией.
- Тонкие инсталляции — тут все просто, целью стоит экономия места ванной комнаты, правда всего на пару сантиметров.
Инсталляции стандартных размеров
Подходят для большинства ванных комнат, имеют наиболее низкую цену, в силу отсутствия особенностей производства.
- Высота: 112 сантиметров;
- Глубина: 12 сантиметров +-;
- Ширина: 50 сантиметров +-.
Узкие инсталляции
Для установки в угол или в узкий проем между коммуникаций, или просто необходимость установки в узком пространстве.
Низкие инсталляции — 82 см
Довольно популярный размер инсталляций, подходят для установки под окном, подоконником или сантехническим люком. В общем в любом месте, где не позволительна установка стандартной инсталляции 112 сантиметров высотой.
- Высота 82 см;
- Глубина 12 см;
- Ширина 50 см.
Тонкие инсталляции
Необходимо сэкономить пару сантиметров пространства Вашей ванной комнаты? Например: толщина стены не позволяет установить стандартную инсталляцию, тогда Вам подойдет тонкая.
Унитаз размеры для установки. Какие выделяются стандартные размеры инсталляций под унитаз
Стандартными размерами встроенного унитаза считаются следующие:
- глубина – 50-60 см;
- ширина – 30-40 см;
- высота – 35-45см.
Перечисленные параметры, хоть и считаются стандартными, но все равно, в зависимости от модели, они могут меняться, потому как сейчас производят отдельно небольшие унитазы для детей и чаши увеличенных размеров, рассчитанные на людей, имеющих инвалидность, крупное телосложение или большой вес. Отдельно следует сказать и о дизайнерских моделях, выполненных под заказ, которые могут иметь совершенно другие параметры.

Свободное пространство между передним краем унитаза и стеной должно составлять 50–60 см
Сливные бачки для инсталляций отличаются от стандартных моделей не только материалом изготовления, но и размером. Обычно толщина подвесного пластикового бачка находится в пределах 9 см, ширина – 50 см, а по высоте встроенный бачок чаще всего немного больше стандартного керамического варианта и в этом случае составляет 55-60 см.
Стандартным размером бачка считается объем 6-9 л, но из-за уменьшенных габаритов подвесных конструкций объем варьируется от 3 до 5 л. При установке очень важно учитывать размер короба под инсталляцию унитаза, поэтому перед покупкой нужно тщательно изучить все чертежи, а также качественно провести замеры. В случае приобретения инсталляции, которая не будет соответствовать необходимым параметрам, придётся корректировать размеры подготовленной ниши.
Размеры инсталляции для установки зависят от выбранного типа. Например, рамная конструкция характеризуется глубиной 15-30 см (чаще это 15 см), высота изменяется от 85 до 140 см, максимальная ширина – до 60 см. Следует отметить и другие параметры:
- Расстояние от напольного покрытия до центральной точки канализационной трубы составляет 220 мм.
Размер унитаза от стены. Размеры и расстояния

Чтобы посещение ванной было комфортным, важно придерживаться определенных норм высоты установленного унитаза и оптимальную дистанцию между сантехникой.
Один из важнейших показателей — расстояние от стены. Если туалет и ванна раздельные, тогда стоит учесть следующие нормы:
- Помещение, предназначенное для туалета, должно быть минимум 0,8*1,2 м.
- Чаша изделия в высоту должна быть не менее 40 см, при этом высота бочка — 81,5 см, а сливного патрубка — 18,5 см.
- Если в комнате так же установлено биде или умывальник, расстояние от крайней точки на чаше до средней оси чаши биде должно составлять минимум 38 см, идеальным расстоянием принято считать 45 см.
- Дистанция между стеной и средней осью чаши не менее 40 см, для максимального комфорта рекомендовано устанавливать изделие на расстоянии 45 см.
- Для комфортного использования перед изделием выдерживают не менее 60-65 см свободного пространства.
Для смешанного санузла важно учесть расположение всей сантехники. Для максимального удобства во время использования ванной, минимальный промежуток между ее элементами:
- Дистанция между туалетом и раковиной не менее 20 см.
- От душевой кабины или ванны, в идеале, расстояние должно быть не менее 90 см.
- От унитаза до биде — 30 см.
Кроме того, во время перепланировки ванной нужно поставить сантехнику на расстоянии от стояка, подходящем для его оптимальной работы. Увеличение дистанции между трубами и туалетом может спровоцировать срыв гидрозатвора.
Стандартные размеры унитазов
В зависимости от вида конструкции, она может иметь разные габариты:
- Напольный. Унитаз-компакт, в котором предусмотрена специальная полочка для бачка имеет размеры: Длинна — 610-645 мм; Чаша (ширина) — 345 и больше; Высота 370-395 мм. Сантехника без полочки: Длина — 435-460 мм; Ширина — 360 мм; высота — 355-390мм.
- Подвесной. Длинна — 470-700 мм; Ширина — 355-375 мм; высота — макс. 395 мм. При этом высоту установки можно регулировать самостоятельно.
- Для детей. Его длинна — 460-550 мм; ширина — 290-320 мм; высота — 260-350 мм.
Источник: https://stroika-i-remont.info/stati/unitaz-razmery-kakie-byvayut-kakie-parametry-vstrechayutsya
Размер унитаза стандарт. Какие выделяют стандартные размеры унитазов для санузлов
Раньше все унитазы с бачком создавались по стандартным размерам, которые считались оптимальными и универсальными для большинства туалетных комнат. Несмотря на то, что сегодня можно выбрать или заказать унитаз любого размера, все равно рекомендуют отталкиваться от стандартных размеров унитаза с бачком, которые были вычислены исходя из средних показателей роста, размера и массы человека. Сантехнический прибор, который отличается присутствием цельнолитой полки, характеризуется длиной 60,5 см, шириной 34 см, а высота унитаза от пола в этом случае достигает 35 см.

Сегодня можно выбрать унитаз практически любого размера, но рекомендуется придерживаться стандартных параметров
Стандартами размеров унитазов с бачком, в которых отсутствует литая полка, будут немного иные параметры. В этом случае длина составляет 46 см, а ширина – 36 см. В таких унитазах параметры высоты могут варьироваться от 35 до 40 см. В отдельную группу можно выделить и детские унитазы, которые устанавливаются как в дошкольных учреждениях, так и в квартирах. Стандартами размеров унитазов, предназначенных для детей, можно считать такие габариты:
- длина должна находиться в пределах от 28 до 40 см;
- ширина – 21-29 см;
- высота – 13-33 см, эта характеристика зависит от возраста ребёнка, который будет пользоваться прибором.
Полезная информация! Согласно ГОСТу унитазы отечественных производителей отличаются такими размерами – 380х480х370-400 мм. Параметры могут изменяться в зависимости от типа устройства. Нужно учитывать, что указаны параметры унитаза без бачка, размеры которого учитываются отдельно.
Устройства импортного производства имеют параметры, отличные от отечественных. Так, глубина обычно не превышает 68,5 см, ширина доходит до 36,5 см, а высота унитаза от пола находится на уровне 41 см.
При выборе унитаза импортного производства необходимо помнить, что их параметры отличаются от отечественных
Таким образом, при выборе габаритных размеров унитаза можно ориентироваться на вышеприведённые цифры, которые считаются оптимальными для использования людьми, имеющими нормостенический тип телосложения. Если в квартире проживают люди нестандартной комплекции, в этом случае следует выбирать нетипичные размеры унитазов, которые будут наиболее комфортными для пользователя.
Маленький унитаз размеры. Расчёт габаритов
Если в помещении имеется достаточно места для установки унитаза, то выбор можно сделать в пользу длинных систем. Лучшим вариантом является приобретение комплекта, который включает не только унитаз, но и биде.
Компактные унитазы будут наиболее подходящим вариантом для туалетных комнат, которые имеют небольшие размеры, а также в санузлах. Можно выбирать как из напольных, так и из подвесных моделей. Неплохим вариантом будет и угловая модель, у которой в стену встраивается бачок.
Подбор ширины унитаза, а также его высоты осуществляют индивидуально. Крупным людям будет максимально комфортно находиться на широком сиденье, расположенном на достаточной высоте. Стройные люди лучше всего чувствуют себя на унитазе узкой модели. Специалисты дают рекомендацию при выборе сантехнического изделия ориентироваться на рост самого высокого члена семьи.
Стандарты размеров унитаза с бачком
Если отталкиваться от ГОСТа, то в настоящий момент маленькие унитазы выпускаются со следующими параметрами:
- детские – 335х405х290 мм;
- без цельноотлитой полочки – 400х460х360 мм;
- с цельноотлитой полочкой – 370х605х340 мм.
Стоит заметить, что в магазинах сантехнического оборудования владелец квартиры может приобрести не только продукцию отечественных производителей. Наряду с ними доступны также и изделия, которые являются продукцией зарубежных компаний. Между собой они различаются по внешнему виду, а также по размерам. По той причине, что при создании модели проектируются под человека, отличия между ними незначительны. Официально оптимальными называются размеры унитаза 380х480х370-400 мм.
Виды унитазов
По такому параметру, как способ установки все изделия разделяются на унитазы подвесного и напольного типа. Модели, которые предполагают напольный способ установки, являются наиболее распространёнными. Некоторые модели, которые не имеют смывного бачка, предполагают его установку на стене или закрепление к системе инсталляции. У таких изделий габариты составляют 520х340 мм. Сиденье размещается на стандартной высоте 400 мм. Однако среди моделей выпускаемых унитазов есть приборы, которые имеют увеличенную на 10 см длину.
Компакт-унитазы имеют такое название по той причине, что для них характерны небольшие размеры. Непосредственно на унитаз у таких изделий производится установка сливного бачка. На полочке мини-унитаза с цельноотлитой чашей размещается бачок. Компактные модели унитазов имеют размеры 380х800х675 мм.
В продаже можно найти и самые компактные угловые унитазы напольного типа разной ширины. Особенность таких моделей состоит в том, что они имеют бачок треугольной формы. Благодаря этой особенности владелец квартиры может установить такой прибор в любом углу санузла. Габариты моделей сантехнических приборов данного типа составляют 360х815х760 мм. У данных изделий сиденье располагается на высоте 400 мм. В зависимости от модели установка и монтаж сантехнического прибора этого вида могут быть произведены вплотную к стене или на некотором удалении от них.
Если в квартире санузел имеет малые габариты, то в этом случае лучшим решением будет установка унитаза подвесного типа. Модели таких унитазов в зависимости от размеров подразделяются на следующие виды:
- маленькие . У них длина не превышает 54 см. Они наиболее удобны в туалетных комнатах, в которых площадь невелика;
- средние . У таких изделий длина составляет от 54 до 60 см. Этот размер является оптимальным. Использовать такой сантехнический прибор будет удобно для большинства людей.
- увеличенные . Особенность изделий этого типа состоит в том, что длина у них доходит до 70 см. Для пожилых, а также людей, которые имеют ограниченные возможности, такие приборы являются подходящим решением для санузла.
Минимальные размеры для установки унитаза. Минимальные и максимальные параметры
Согласно эргономическим особенностям унитазов, имеется свод правил, согласно которым может производиться их установка. Очень часто монтаж осуществляется не в отдельном помещении, отведенном под туалет, а в общей ванной комнате с раковиной и душем. Если не принять в расчет правила установки, можно столкнуться с проблемами в санитарно-технической системе.


Дистанция между унитазом и раковиной
Унитаз должен устанавливаться на расстоянии 20 см от раковины и далее. При монтаже сантехники в комплексе следует принять в расчет, чтобы ванна и душевая кабина располагались на таком же расстоянии. Когда устанавливаются двойные раковины, промеж них должно быть не менее 40 см. Биде (или гигиенический душ), напротив, располагается рядом с унитазом – оптимальная дистанция не больше 30 см. Подразумевается расстояние от края до края.


Расстояние от водопровода
Данный показатель рассчитывается исходя из типа подводки унитаза. При типовом способе установки он должен располагаться от водопровода на дистанции 18 см. Обозначенный параметр предусматривает расстояние от центра трубы до верха напольного покрытия. Если установка унитаза осуществляется посредством инсталляции (метод, при котором смывной бачок встраивается в стенку), расстояние от верха напольного покрытия до оси турбины должно равняться 23 сантиметрам.


Минимальное расстояние до стенки
Согласно действующим нормативам СНиП, в соотношении с положением унитаза устанавливается такое расстояние к стенкам.
- От 53 до 76 см – к передней, расположенной фронтально, либо стенке с дверью, если говорить о маленьком туалете, наименьшее расстояние – 53 см. Этого хватает, чтобы не испытывать стеснения в районе коленей.
- Предельная достаточная отдаленность от передней стены, находящейся перед сидящим – 76 см.
- От середины унитаза до стен, находящихся сбоку, принятый минимум составляет 40-45 см. В отдельных источниках расстояние до боковых стен устанавливают в 38 см.

Обозначенные нормативы актуальны для отдельного помещения. Монтаж желательно осуществлять около стенки – как в отдельном помещении, так и в совмещенной ванной комнате. Определенные пользователи считают, что чем теснее к стенке расположен унитаз, тем больше комфорта и удобства это даст. Однако сантехники не советуют к применению данный способ, так как он впоследствии сделает более затруднительным доступ к коммуникациям.
Для практичности и комфорта в обслуживании унитаза советуют устанавливать его таким образом, чтобы смывной бачок располагался от стенки на дистанции 5-10 см.
Отдаление унитаза от стояка имеет ограничение, сдерживающим фактором является угол уклона, который должен равняться 2-3 сантиметрам на метр трубы. Нормативов, регулирующих предельное расстояние, не имеется. Однако чем больше длина канализационного трубопровода, тем выше угроза того, что в ходе использования сформируется зазор. К примеру, при 4-метровой длине высоту основания унитаза потребуется поднять на 8 см.

