Реставрация старой двери из дерева своими руками: пошаговая инструкция
- Реставрация старой двери из дерева своими руками: пошаговая инструкция
- Связанные вопросы и ответы
- Какие материалы и инструменты мне понадобятся для реставрации старой деревянной двери
- Как подготовить старую дверь к реставрации
- Как правильно удалить старую краску с деревянной двери
- Как обработать поверхность двери, чтобы избежать царапин и неровностей
- Как выбрать подходящую краску или лак для двери
- Как восстановить поврежденные или гнилые части двери
- Как правильно шлифовать поверхность двери перед покраской
- Как собрать дверь, если она была разобрана
Реставрация старой двери из дерева своими руками: пошаговая инструкция
Старая деревянная дверь – это не просто конструктивный элемент, но и часть истории вашего дома. Реставрация двери позволяет сохранить её первозданный вид, добавить уникальности интерьеру и сэкономить на покупке новой двери. В этой статье мы расскажем, как провести реставрацию старой двери из дерева своими руками.
Подготовка инструментов и материалов
Перед началом работ необходимо подготовить все необходимые инструменты и материалы. Это поможет избежать перерывов в процессе и сделать работу более эффективной.
| Инструменты | Материалы |
|---|---|
| Шлифовальная машина | Шлифовальная бумага (различных зернистостей) |
| Молоток | Краска или лак |
| Плоскогубцы | Кисти |
| Дрель | Воск или полироль |
| Ножовка | Растворитель |
Подготовка рабочего места
Для комфортной работы необходимо подготовить рабочее место. Оно должно быть хорошо проветриваемым, так как при работе с химическими веществами выделяются пары. Устелите пол старыми газетами или пленкой, чтобы защитить его от пыли и брызг.
Демонтаж двери и удаление старой отделки
Первым шагом является демонтаж двери. Аккуратно снимите дверь с петель и перенесите её на рабочее место. Затем удалите старую отделку. Для этого можно использовать шлифовальную машину или наждачную бумагу. Если дверь была окрашена, можно использовать растворитель для удаления старой краски.
Ремонт поврежденных участков
Осмотрите дверь на наличие трещин, вмятин и других повреждений. Для их устранения используйте деревянный клей и штифты. Если повреждения значительные, возможно, потребуется заменить отдельные части двери.
Устранение трещин
- Очистите трещину от пыли и грязи.
- Нанесите деревянный клей и вставьте штифт.
- Закрепите штифт прижимной планкой.
- После высыхания клея отшлифуйте поверхность.
Шлифовка двери
Шлифовка – один из самых важных этапов реставрации. Она позволяет сделать поверхность двери гладкой и подготовить её к дальнейшей отделке. Используйте шлифовальную бумагу разной зернистости, начиная с крупной и заканчивая мелкой.
Покраска или лакировка
После шлифовки дверь готова к покраске или лакировке. Выберите подходящий цвет и нанесите несколько слоев, давая каждому слою хорошо высохнуть. Для большего эффекта можно использовать воск или полироль.
Советы по покраске
- Наносите краску тонкими слоями.
- Используйте кисть или валик для равномерного распределения.
- Избегайте нанесения краски в прямых солнечных лучах.
Устранение ошибок
Если вы заметили какие-либо недостатки после покраски, их можно исправить. Например, если цвет получился неоднородным, можно нанести дополнительный слой. Если появились пузырьки, их нужно аккуратно срезать ножом и заново прокрасить.
Окончательная сборка и установка
После того как краска полностью высохнет, можно приступать к сборке двери. Установите дверь на петли и проверьте её открывание и закрывание. Если всё работает правильно, ваша дверь готова к использованию.
Следуя этим шагам, вы сможете восстановить вашу старую деревянную дверь и придать ей вторую жизнь. Удачи в ваших руках!
Связанные вопросы и ответы:
Вопрос 1: Как подготовить старую деревянную дверь к реставрации
Подготовка старой деревянной двери к реставрации начинается с тщательной очистки поверхности. Используйте мягкую щетку или влажную ткань, чтобы удалить пыль, грязь и старые остатки лака или краски. Если дверь покрыта слоем старой краски, его необходимо снять с помощью специального растворителя или скребка. Также важно снять старые петли и ручки, чтобы они не мешали работе. После этого дверь нужно положить на ровную поверхность, например, на стол или верстак, чтобы удобно было работать.
Вопрос 2: Какие материалы и инструменты мне понадобятся для реставрации двери
Для реставрации старой деревянной двери вам понадобятся следующие материалы и инструменты: наждачная бумага разного зерна, шлифовальная машина, деревянные заплатки или эпоксидная смола для ремонта трещин, грунтовка и лак или краска на ваш выбор. Из инструментов вам понадобится молоток, стамески, отвертки, дрель и шуруповерт. Также не забудьте про защитные перчатки, очки и маску, чтобы защитить себя от пыли и химических веществ.
Вопрос 3: Как удалить старую краску и лак с деревянной двери
Удаление старой краски и лака с деревянной двери можно выполнить несколькими способами. Первый способ – использование специального растворителя для краски или лака. Нанесите растворитель на поверхность двери, подождите несколько минут, пока старое покрытие размягчится, а затем снимите его скребком или шпателем. Второй способ – шлифовка двери наждачной бумагой. Этот метод более трудоемкий, но позволяет избежать использования химических веществ. Также можно использовать термическую пушку, но этот метод требует осторожности, чтобы не повредить дерево.
Вопрос 4: Как отремонтировать поврежденные участки двери
Если дверь имеет трещины или прогибы, их можно отремонтировать с помощью деревянных заплаток или эпоксидной смолы. Для небольших трещин достаточно нанести столярный клей и закрыть место заплаткой. Для более глубоких повреждений можно использовать эпоксидную смолу, которая после высыхания приобретает высокую прочность. После ремонта поврежденных участков дверь нужно тщательно отшлифовать, чтобы поверхность стала ровной и гладкой.
Вопрос 5: Как правильно отшлифовать дверь перед покраской
Шлифовка двери перед покраской является важным этапом, который обеспечивает равномерное нанесение покрытия и его долговечность. Начните с грубой наждачной бумаги (например, зерна 80), чтобы удалить старое покрытие и выровнять поверхность. Затем перейдите на более тонкую наждачную бумагу (зерна 120 и 240), чтобы поверхность стала гладкой. После шлифовки протрите дверь влажной тьканью, чтобы удалить пыль, и дайте ей высохнуть. Это обеспечит лучшее сцепление нового покрытия с поверхностью двери.
Вопрос 6: Как нанести новое покрытие на дверь
Нанесение нового покрытия на дверь начинается с грунтовки. Грунтовка помогает защитить дерево от влаги и обеспечивает равномерное нанесение краски или лака. После высыхания грунтовки можно приступить к покраске или нанесению лака. Краску или лак наносите в тонких слоях, следуя инструкциям на упаковке. Каждый слой должен полностью высохнуть перед нанесением следующего. Для лучшего результата используйте кисти или валики, а для сложных деталей – небольшую кисточку.
Вопрос 7: Как восстановить или заменить дверные ручки и фурнитуру
Восстановление или замена дверных ручек и фурнитуры является важным этапом реставрации двери. Если старая фурнитура еще пригодна для использования, ее можно отреставрировать, очистив и отполировав. Если же она повреждена, лучше заменить ее на новую. При установке новых ручек и петель следуйте инструкциям производителя. Убедитесь, что все детали надежно закреплены и дверь открывается и закрывается плавно.
Какие материалы и инструменты мне понадобятся для реставрации старой деревянной двери

Не спешите отправлять старую деревянную дверь на свалку, если она больше не вписывается в стилистику помещения или обтрепалась и покрыта некрасивыми следами неумолимо бегущего времени. Во-первых, деревянное полотно может еще долго вам прослужить. Во-вторых, задумайтесь об экономии: менять придется всю конструкцию целиком, включая коробку.
Специалисты салона Door Loft расскажут, как правильно реставрировать старые межкомнатные двери из массива , чтобы они еще долго радовали своих владельцев.
Подготовка к реставрации
Перед стартом «реанимационных» работ дверь необходимо снять с петель и демонтировать всю фурнитуру. Старое покрытие нужно удалить. Самые популярные способы:
- Шлифовка. С помощью шлифмашинки и наждачной насадки снимается старая краска или лак. Процедура долгая, пыльная, требует сноровки и терпения.
- Строительный фен. Приспособление нагревает краску, вязкая субстанция соскребается шпателем.
- Смывка. Раствор наносится ровным слоем на обрабатываемый участок, через некоторое время покрытие удаляется шпателем или металлической щеткой. Такие составы токсичны, необходимо строго соблюдать технику безопасности.
Перед тем как заново покрасить старую межкомнатную дверь, нужно дать полотну просохнуть, затем зашпаклевать трещины, потом загрунтовать и еще раз тщательно пройтись шлифмашинкой по всем поверхностям, не забывая про углы.
Как реставрировать межкомнатные двери
Способы реставрации
Существует множество способов преображения старых межкомнатных дверей, рекомендуем воспользоваться одним из нижеприведенных:
Морение
Самый простой и доступный способ. Оттеночный состав подбирается в соответствии с личными предпочтениями, морилка проявляет уникальный древесный рисунок. На финальном этапе полотно покрывают лаком.
Окрашивание
Перед тем как покрасить старую межкомнатную дверь, необходимо подобрать составы с продолжительным сроком службы, в ходе которого покрывной материал не выцветает, не трескается и сохраняет свои защитные характеристики. Советуем обратить внимание на следующие составы:
- Нитроэмаль. Быстро сохнет, образует эластичный слой, стоит недорого, не боится влаги. Главный недостаток — токсичность.
- Алкидная эмаль. Легко наносится, устойчива к ультрафиолету и механическим повреждениям. Такое покрытие можно смело мыть с помощью бытовых химических средств.
- Акриловая краска. Не испаряет ядовитые вещества, высыхает в течение нескольких часов, хорошо распределяется по поверхности.
Как покрасить старую межкомнатную дверь
Кракелюр
Не знаете, как покрасить старую межкомнатную дверь, чтобы сделать ее оригинальной — обратите внимание на технику кракелюр. Благодаря особой обработке поверхность полотна покрывается сеткой из мельчайших трещин. Такой прием уместен в помещениях, выдержанных в стиле прованс, ретро, китч или шебби-шик.
Вариант №1
Что понадобится: 2 вида лаков: светлый кракелюр и битумный.
Инструкция по нанесению:
- Заранее подготовленный участок покрыть лаком кракелюр, подождать пока он немного подсохнет.
- Нанести битумный лак. Будучи более темным, он усилит контрастность.
- Дождаться полного высыхания.
Вариант №2
Что понадобится: темный лак кракелюр и светлая акриловая краска.
Инструкция по нанесению:
- Дверное полотно покрыть кракелюрным лаком, как в 1-ом варианте.
- Поверх темного слоя нанести светлую краску.
- Подождать, пока оба слоя затвердеют.
Текстурирование
С помощью обычной краски можно создавать визуальные иллюзии, превратив деревянное полотно в лист железа, кусок бетона или фрагмент оштукатуренной поверхности. Технология нанесения зависит от поставленной цели. На 1-й основной слой, наносят контрастный, который затем растушевывают с помощью фольги, жесткой губки, кисти или ткани. Чаще всего, такой способ обработки применяется при изготовление двери в стиле лофт .
Как приступить к реставрации межкомнатных дверей
Чем лучше наносить покрывной состав
Лаки, краски и морилки можно наносить кисточкой, валиком или пульверизатором (краскопультом). Кисточки предварительно замачивают в теплой воде от 6 до 12 часов, а затем вычесывают: так ворсинки не будут оставлять следы и не выпадать в процессе работы.
Чтобы покрывной материал ложился ровно, без пятен и подтеков, мастера Door Loft советуют использовать краскопульт.
Как подготовить старую дверь к реставрации
I'm a home makeover TV show producer, interior designer and the creator of Decor Demon, lifestyle editorial with an edge. http://www.decordemon.com
Еще
Недавно меня позвала в гости подруга и фотограф Кристина. Ей требовался мой совет, что сделать со старой дверью. Моему вниманию предстала страшная, но вполне еще рабочая дверь, вполне способная послужить еще много лет. Выкидывать ее было жалко, потому я предложил Кристине обновить старую дверь своими руками. Один протеиновый батончик, два стакана воды со льдом и… 6 часов спустя дешевая старая дверь, которая стояла в квартире в течение 40 лет, превратилась в произведение искусства. Предлагаю фотоотчет с рассказом о том, как проходила реставрация межкомнатной двери.
Фото «До»
decordemon Сохранить фотоПосмотрите на дверь, стоявшую в квартире фотографа до моего вмешательства. Не очень-то красиво, правда?
decordemon Сохранить фото
А теперь посмотрите на результат нашей работы — межкомнатная дверь после ремонта. Два слоя белой и матовой черной краски, две никелированные ручки и несколько уроков по экспозиции фотографии — и вход в кладовую Кристины вызывает восторг у гостей.
decordemon Сохранить фото
Шаг 1. Снимаем старые ручки
Это обязательно необходимо сделать, если вы хотите правильно обновить старую дверь своими руками.
decordemon Сохранить фото
Шаг 2. Очищаем поверхность
Используйте наждачную бумагу средней зернистости, чтобы снять с двери старое покрытие. Если дверь покрыта толстым слоем лака, имеет смысл использовать бумагу с более крупными зернами, чтобы полностью очистить поверхность полотна.
decordemon Сохранить фото
Шаг 3. Красим
Покрасьте дверь в цвет, который вы выбрали для импровизации на тему «декоративных филенок». Дверь у нас изначально без рамок и каркаса, потому филенчатую конструкцию мы имитировали покраской. Лучше наложить два слоя краски, чтобы волокон дерева не было видно. Кроме того, дополнительный слой послужит и в качестве грунтовки.
decordemon Сохранить фото
Шаг 4. Размечаем полосы
С помощью скотча определите, где будут находиться декоративные панели. Вы можете сделать это на глаз, но я бы посоветовал все тщательно отмерить, чтобы избежать асимметрии. Лучше всего будут выглядеть две панели. Стоит расположить их в 7,5 см от края двери и оставить от 20 до 25 см между верхней и нижней панелью. Это хорошее правило для создания нужных масштабов.
decordemon Сохранить фото
Шаг 5. Подготовка к покраске
Как только вы наклеили скотч, внимательно осмотрите пересекающие полоски и удостоверьтесь, чтобы в них не было воздуха.
decordemon Сохранить фото
Иллюстрация: Как обновить межкомнатные двери своими руками — фото показывает, как подготовить дверь к покраске
Чтобы все полоски были абсолютно прямыми, отрежьте лишний скотч с помощью канцелярского ножа.
decordemon Сохранить фото
Вот что получится, если не достаточно тщательно обработать поверхность двери перед покраской? Неровно и некрасиво! Да, вот что произойдет, если вы не очень аккуратно пройдете этапы 5 и 6. Терпение, терпение, мои дорогие! Потратьте больше времени на покраску двери — и это принесет свои результаты.
decordemon Сохранить фото
Шаг 6. Красим
Убедившись в том, что весь скотч наклеен ровно, можете красить дверь. Нацинайте с центра, с центра полосок из скотча. Почему именно так? — Это создаст идеальную линию. Благодаря тому, что вы будете красить по направлению от скотча, под него не затечет краска.
decordemon Сохранить фото
После того, как вы покрасили поверхность двери рядом со скотчем, можете продолжить с помощью валика. Осторожно: избегайте движений валиком, из-за которых краска может попасть под скотч.
Наберитесь терпения и дождитесь, пока краска полностью высохнет. В зависимости от состава это занимает от 24 до 48 часов.
decordemon Сохранить фото
Шаг 7. Ставим ручки
Как только вы медленно и аккуратно снимете скотч, можете вернуть ручку на законное место. Но, уверяю вас, на двери после ремонта она будет смотреться инородным телом. Мой совет — купите новую ручку для новой двери. Замените ее чем-то более современным, чем то, чем вы уже пользовались 40 лет.
decordemon Сохранить фото
Забавная декоративная идея — к дверным ручкам можно добавить дверной молоток.
Надеюсь, мой рассказ о том, как обновить межкомнатные двери своими руками, окажется полезным для вас.
Как правильно удалить старую краску с деревянной двери

1
Как избежать деформации дверей
Влажность - одна из самых сложных проблем, которые могут повлиять на внешний вид двери. Если вы примените правильную обработку отделки, ваши двери могут оставаться такими же аккуратными, как и в тот день, когда они были установлены. Некоторые двери могут высыхать в зависимости от окружающей среды, в которой они установлены, поскольку влага внутри них испаряется, когда они установлены в более сухих местах, и поэтому дверь будет сжиматься и деформироваться.
Однако всегда есть что-то, что можно сделать, чтобы этого не происходило.
Если дверь будет установлена в более влажном месте, это вызовет дополнительные проблемы, такие как проблемы с набуханием и короблением. В течение зимы многие строители будут решать вопросы, связанные с гарантией, поскольку двери будут деформироваться, когда работает отопление, оно высушивает влагу из воздуха, влияя на содержание влаги в вашей двери. Также, когда дверь закончена только с одной стороны или имеет разные отделки с обеих сторон, дверь может начать деформироваться.

Что нужно сделать?
Теперь, когда вы знаете, почему двери деформируются, давайте работать вместе, чтобы найти решение этой проблемы.
Начните с хранения дверей в одной и той же среде и, если возможно, в том же помещении, в котором они будут установлены около 36 часов перед их установкой.
Положите дверь на плоскую поверхность и нанесите два слоя древесного герметика на все края двери.
Не экономьте деньги, применяя только один слой, так как этого будет недостаточно, и дверь, в конце концов, может деформироваться.
Обязательно нанесите два слоя поверх верхнего и нижнего края дверей, поскольку они могут быть наиболее важными местами, которые будут более подвержены воздействию влажности.
Строго следуйте рекомендациям производителей о том, как применять эти два слоя. Помните, что древесный герметик не будет удерживать влагу, если пренебрегать инструкцией.
Полезные советы
Эти дополнительные советы предотвратят деформирование вашей двери:
Более высокие двери более подвержены деформации, чем более короткие двери.
Не регулируйте дверь, когда погода вот-вот изменится. Изменение температуры повысит вероятность деформации.
Установите крышку над дверным проемом.
Полируйте дверь два раза в год.
Если вы выбираете тип двери, который вы хотите использовать, рассматривайте использование стеклопластика вместо деревянной двери.
Используйте полиуретановый герметик для защиты Вашей двери.
Постарайтесь заполучить дверь, устойчивую к погодным условиям и способную выдержать перепады температур.

Есть ли двери, которые не будут деформироваться?
Ответ - да. Существует много продуктов или вариантов дверей, которые не будут деформироваться при воздействии изменений влажности.
Обычная дверь, если она изготовлена надлежащим образом, может быть спроектирована таким образом, чтобы эффект деформации мог быть устранен путем ее сборки.
Дверь может иметь вертикальные рельсы, выполненные из двух отдельных кусков дерева, которые ламинируются вместе с зерном, движущимся в разных направлениях. Элемент должен быть собран таким же образом, чтобы при попадании влаги в дверь он отклонялся в противоположных направлениях, отменяя эффект деформирования.
Стальные, алюминиевые и стеклопластиковые двери не будут деформироваться, что в некоторых случаях идеально подходит для их установки.
Как обработать поверхность двери, чтобы избежать царапин и неровностей
На сегодняшний день существует большой выбор разнообразных красок, с помощью которых можно покрасить межкомнатные двери.

Это могут быть:
- нитролаки, нитроэмали, нитрокраски;
- масляные краски;
- акриловые;
- алкидные.
В продаже также имеются безопасные краски, или экокраски, которые лучше всего подходят для покраски дверей в детской. Такая краска не окажет негативного воздействия на чувствительный организм ребенка. Хотя цена подобной продукции выше остальных видов красок, вы сможете быть уверенными в том, что она не повредит здоровью малыша. В основном современная лакокрасочная продукция довольно быстро высыхает на поверхностях, поэтому после нанесения резкий запах сразу выветривается.

Таким образом, покрасив межкомнатные двери, вы не причините дискомфорта жильцам. За исключением тех случаев, когда во время проведения работ у кого-то может начаться аллергия. Поэтому стоит заранее уточнить наличие аллергических реакций на краску у присутствующих.
Существуют несколько видов красок:
Прозрачные | В состав входит специальный пигмент, повторяющий структуру дерева. |
Непрозрачные составы | На основе органических растворителей. К ним относятся: алкидная краска, масляная и др. |
Краски без запаха для дверей | Такой материал быстро высыхает на поверхности, не успевая распространить едкий запах. |
Двери, изготовленные из натурального дерева, обычно обрабатывают нитрокраской, которая быстро сохнет. Тем самым вы сможете добиться практичного и долговечного покрытия. Но у нитрокраски существует отрицательное качество – это ее резкий, раздражающий запах. Поэтому, выбирая этот материал, лучше всего работать на улице или, по крайней мере, на балконе. А также очень важно при покраске использовать респираторную маску и перчатки, чтобы защитить кожные покровы и дыхательные пути.
Алкидная краска является в настоящее время одним из наиболее популярных видов лакокрасочной продукции. Этой краской можно покрасить почти любую поверхность, а ее стоимость достаточно небольшая. Но, так же как и в случае с нитроэмалью, при работе с алкидной краской выделяется едкий запах, который выветривается около двух дней. Поэтому не стоит красить межкомнатные двери внутри помещения, а предметы, хорошо впитывающие посторонние запахи, рекомендуется убрать подальше.
Для покраски межкомнатных дверей также можно использовать акриловую краску. Этот состав является универсальным для любой поверхности, и на рынке он представлен в широкой цветовой палитре.

Стоимость акриловой краски выше стоимости алкидной и нитрокраски. Но существенным преимуществом является отсутствие запаха. Поэтому она является оптимальной краской для окрашивания межкомнатных дверей. Тем не менее акриловый состав не очень прочный и довольно быстро стирается с поверхности. Поэтому покрытие рекомендуется дополнительно укреплять лаком.
В целом, говоря о возможных вариантах покрытия межкомнатных дверей, нужно отметить, что покраска все же является самым оптимальным видом отделки. С точки зрения эстетики, покрашенная дверь имеет красивый внешний вид и, с учетом соблюдения всех норм в ходе окрашивания, выглядит как новая. А правильно выбрав оттенок краски для такой двери, можно легко и гармонично вписать ее в любой интерьер.

Еще одним достоинством лакокрасочной продукции является широкая цветовая палитра. На сегодняшний день производятся краски всевозможных цветов, поэтому можно без труда выбрать любой нужный оттенок. Кроме того, при определенном уровне мастерства из межкомнатной двери можно создать настоящее произведение искусства, превратив ее, например, в портал, открывающий путь в лес, старинный город и тому подобное.
Также лакокрасочные материалы создают на межкомнатной двери прочное покрытие. Такая поверхность сохранит первоначальный вид на несколько лет при условии, что дверь эксплуатировалась с аккуратностью. Но даже повредив какой-то участок, можно с легкостью скрыть изъян, подкрасив его. Но сделать это не получится, если дверной блок был покрыт лаком. Здесь нужно будет полностью снимать старый слой и заново обрабатывать поверхность.
При наличии в доме домашних животных покраска будет лучшим вариантом покрытия межкомнатных дверей. На практике было замечено, что кошки и собаки не пытаются затачивать когти об дверное полотно, покрытое краской.

Что касается ухода, то покрашенные межкомнатные двери легко чистятся при помощи губки и воды или слабого мыльного раствора. Для очистки такой поверхности не требуется использовать специальные полироли или моющие средства. Работы по окрашиванию не занимают много времени и проводятся намного быстрее, чем, например, в случае обивки дерматином или кожей или покрытия лаком.
Но, безусловно, если речь идет о реставрации полотна, то потребуется больше времени для того, чтобы аккуратно и тщательно покрасить дверь. К тому же если при восстановлении поверхности использовалась шпатлевка, то для ее скрытия можно также использовать краску.
Как выбрать подходящую краску или лак для двери
Если вы собрались покрасить деревянную дверь, ее нужно предварительно зашлифовать. Это сделает поверхность более ровной и улучшит прилипание краски. Мы собрали несколько советов, которые сделают работы более эффективной и менее утомительной. А если вы не хотите заниматься перекрашиванием или другим ремонтом двери, покупайте ее в http://sh-doors.ru . В этом магазине представлена только самая лучшая продукция. С нею у вас не возникнет никаких проблем на протяжении всего срока эксплуатации.
Полезные рекомендации
Вот подсказки, которые помогут вам при шлифовке деревянного полотна:
Если ваша дверь в хорошем состоянии, на ней нет сколов и неровностей, достаточно будет обработать ее наждачной бумагой с зернистостью 180 или 220.
Для снятия толстого слоя краски используйте бумагу с зернистостью 24-40. Для грубой шлифовки подойдет зернистость 60-80. Для окончательной обработки перед покраской и шлифовкой используют «наждачку» 80-180. После грунтовки рекомендуется шлифовать дерево бумагой 200-240.
Спрашивайте у продавца бумагу на тканевой основе. Она меньше забивается краской, поэтому использовать ее экономнее.
Засорившуюся бумагу не выбрасывайте. Положите ее в воду или уайтспирит. Через некоторое время частички старой краски размякнут и вымоются. После этого бумагу можно высушить и применять повторно. Обязательно покупайте абразивный материал с запасом, чтобы его можно было менять в процессе работы.
Всегда начинайте с бумаги крупной зернистости (для грубой шлифовки), а затем по мере необходимости переходите на тонкую. Вы всегда можете обработать проблемные участки крупнозернистым материалом. Но если начнете тереть им всю поверхность двери, можете оставить на ней глубокие царапины. Поэтому смотрите внимательно – для разных частей полотна могут понадобиться разные абразивы.
Обязательно используйте щадящие мелкозернистые абразивы при шлифовке узоров. Предварительно несколько раз скомкайте бумагу, чтобы она стала мягкой. Тогда она будет хорошо облегать неровности и не повредит рисунок.
На больших плоских поверхностях можно использовать жесткий шлифовальный блок. Работать с ним гораздо быстрее, чем с губкой, бумагой или другими мягкими абразивами.
Для ускорения процесс оберните кусок бумаги вокруг деревянного бруска. Трите им древесину, будто работаете рубанком или щеткой.
После окончания работы обязательно осмотрите дверь при ярком освещении.
Как восстановить поврежденные или гнилые части двери
Установка межкомнатной двери на первый взгляд кажется сложным процессом, но на самом деле её может установить практически любой начинающий мастер. Главное уметь обращаться с простым инструментом и знать, что и как сделать.
Сборка коробки двери.
Для точной сборки коробки мы её будем собирать непосредственно по полотну двери. Для этого нужно элементы коробки собрать на полу вместе полотном двери.
Всего таких элементов будет 3шт. Две вертикальные планки и одна горизонтальная верхняя. В современных межкомнатных дверях нижнюю планку не ставят.

Собираем коробку вместе с полотном.
Полотно двери укладываем на детали коробки.
Перед сборкой необходимо определиться с какой стороны двери будут установлены петли, а также какая сторона будет лицевой, а какая тыльной. Конструкция некоторых дверей может содержать вставки из стекла, которые с одной стороны имеют глянцевый вид, а с другой матовый. Поэтому важно определиться с какой стороны будет глянец, а с какой матовость.
Между коробкой и полотном нужно выставить зазоры в 3мм и 4мм. Для этого подойдут пластинки из мдф, которые идут в комплекте с полотном двери. Эти пластинки имеют толщину 3мм и, в основном, они прибиты металлическими скобками сверху и снизу полотна двери. Пластинки устанавливают на заводе-изготовителе для защиты торцов.

Пластинка из мдф толщиной 3мм.
Со стороны, где будет устанавливаться ручка зазор лучше выставить немного больше, примерно 4мм. Такой увеличенный зазор необходим для компенсации расширения двери при её разбухании от повышенной влажности в помещении. Добиться такого зазора достаточно легко. Для этого нужно на пластинку мдф наклеить малярный скотч, он придаст необходимую толщину.

Схема сборки.
Теперь отмечаем на верхней горизонтальной планке места, где будем делать пропилы. Затем пилим, и канцелярским ножом удаляем лишние части.

Производим разметку на верхней планке коробки.

На верхней планке коробки двери делаем пропил с помощью ножовки по металлу. Для ровного среза используем стусло.

Канцелярским ножом или стамеской срезаем часть материала.

Таким образом стыкуются вертикальная и горизонтальная части коробки двери.
Заново собираем коробку вместе с полотном, выставляем все необходимые зазоры.
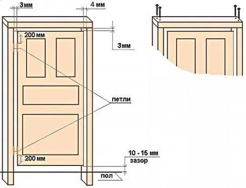
Устанавливаем петли на место. Они устанавливаются на расстоянии 20-25см от края полотна двери. Петли удобно использовать накладные в виде бабочки. Такие петли не требуют специальных монтажных вырезов.

Накладные петли.

Отмечаем карандашом на полотне двери и на коробке место установки петель.
Теперь можно определить длину вертикальных планок коробки. Они должны выступать от нижнего края полотна двери на 10-20мм. В установленной двери это будет зазор между дверью и полом. Этот зазор будет зависеть от того, какое покрытие пола будет в месте порога. Если вы планируете укладывать в этом месте ламинат , то зазор можно выбрать 20мм, если же линолеум, то зазор лучше сделать меньше.

Зазор между полотном двери и полом.
Разбираем конструкцию и пилим вертикальные стойки в нужный размер.
Отмечаем на полотне и коробке места установки саморезов для крепления петель. Для этого прикладываем петлю по метке, которая была сделана ранее и карандашом обрисовываем отверстия в петле.

Отмечаем места крепления саморезов.
На этом этапе нужно обратить внимание, какая часть петли куда крепится. Петля состоит из двух частей. В сложенном состоянии хорошо видно наружную и внутреннюю часть. Наружная часть крепится к коробке, а внутренняя к полотну двери.
В ранее размеченных местах сверлим отверстия под саморезы. Отверстия следует сверлить диаметром 1,5-2мм. Если этого не сделать, то при закручивании самореза может лопнуть деталь, в которую он вкручивается.

Сверлить можно без предварительной разметки сразу по петле.
После того как просверлены отверстия под петли, можно приступить к сборке коробки двери.
Соединяем детали, сверлим отверстия диаметром 1.5-2мм и закручиваем саморезы.

Сверлим отверстия диаметром 1.5-2мм
Скручиваем саморезами детали.
Приступаем к следующему этапу.
Установка ручек, защелки или замка в дверь.
Ручку чаще всего устанавливают ровно посередине двери. Так как высота двери равна 2м, то ручку ставят на высоте 1м. Но для удобства пользования, особенно маленькими детьми, допускается уменьшение высоты ручки, например до высоты 95см.
Соответственно замок устанавливается на такой же высоте.
Установка врезного замка .
Чтобы замок установился аккуратно, нужно знать небольшую хитрость.
Как правильно шлифовать поверхность двери перед покраской
Правильная подготовка МДФ панели перед покраской — это залог долговечного и качественного покрытия. Подготовка включает несколько этапов: очистка поверхности, шлифовка, грунтование и нанесение краски. Каждый из этих этапов требует тщательного выполнения, так как любая ошибка может повлиять на конечный результат.
Этапы подготовки МДФ панели к покраске:
1. Очистка поверхности . Перед началом покрасочных работ МДФ панель необходимо тщательно очистить от пыли, грязи и жировых загрязнений. Для этого используют мягкую ткань и обезжиривающий состав. Любые загрязнения могут ухудшить адгезию краски к материалу и вызвать появление пятен и неровностей.
2. Шлифовка . Поверхность МДФ изначально обладает гладкой текстурой, но для того чтобы краска лучше проникала в структуру материала, рекомендуется провести легкую шлифовку. Для этого используют наждачную бумагу средней зернистости (180-220). После шлифовки поверхность следует еще раз очистить от пыли.
3. Грунтование . Грунтовка — это обязательный этап при покраске МДФ. Правильно подобранный грунт заполняет микропоры материала, улучшает сцепление краски с поверхностью и предотвращает чрезмерное впитывание краски. Для МДФ рекомендуется использовать акриловые или полиуретановые грунты. Грунтовку наносят в два слоя, с промежуточной шлифовкой после высыхания первого слоя.
4. Финишная шлифовка . После нанесения грунтовки поверхность еще раз шлифуется мелкозернистой наждачной бумагой, чтобы удалить излишки грунта и подготовить панель к нанесению краски. Это обеспечит ровное и гладкое покрытие без неровностей и дефектов.
После подготовки поверхности важно выбрать подходящий вид краски. Для окрашивания МДФ панелей входных дверей используют следующие виды красок:
· Акриловые краски . Обладают хорошей адгезией, устойчивы к воздействию ультрафиолета и легко наносятся. Акриловые краски создают гладкое и ровное покрытие, которое устойчиво к выгоранию и истиранию.
· Полиуретановые краски . Отличаются высокой стойкостью к механическим повреждениям, влаге и химическим веществам. Полиуретановые составы подходят для окрашивания дверей, которые эксплуатируются в условиях повышенной влажности или подвержены воздействию осадков.
· Эмалевые краски . Обеспечивают глянцевую или полуглянцевую поверхность с высокой степенью защиты от царапин и повреждений. Эмалевые покрытия долго сохраняют насыщенность цвета и обладают устойчивостью к агрессивным средам.
Выбор краски зависит от требований к декоративным и эксплуатационным характеристикам двери, а также от условий ее использования. После подготовки панели и выбора подходящих материалов можно приступать к покраске.
Как собрать дверь, если она была разобрана
Добрый день, дорогие друзья. Давайте представим ситуацию: у вас в квартире ремонт, уже подходит к завершению. Пришло время выбора и покупки дверей — приятное и немного волнующее событие. И, наконец, настаёт момент, когда вы получаете ваши двери, вид которых, даже в запакованном состоянии, доставляет вам эстетическое удовольствие. И вот уже приезжает мастер по установке, раскладывает инструменты, готовится к работе. Распаковывает двери и… вы бежите за валидолом. Оказывается, под плёнкой был дефект. Или обнаружился брак.
Это может быть царапина, треснутое или разбитое стекло, брызги засохшего клея, изогнутое полотно или кривые коробки, отличающийся цвет и оттенок деталей в рамках одной упаковки и так далее. Что же можно сделать в таком случае и как предотвратить подобные ситуации? Разберёмся вместе поподробнее.
Для начала — самое главное: не подписывайте никаких документов о приёмке груза без предварительной распаковки и тщательной проверки всего комплекта в присутствии того, кто вам всё это привёз. Бывает такое, что из-за особенности покрытия, разница в цвете у деталей отличима только при ярком свете. Например: две детали, кажутся одинаковыми. Но если смотреть на них при ярком свете или под другим углом — может проявиться разница в тоне, весьма заметная.
Пример:

И хорошо, если она выявится на этапе приёмки. Поэтому осмотр следует производить только при ярком освещении и с разных ракурсов. Неплохая идея — осматривать в присутствии третьего лица, а ещё лучше снимать распаковку на камеру. Сейчас такая возможность есть почти у каждого, но мало кто этим пользуется. Это более, чем оправдано, особенно если выбраны не самые дешёвые двери. Проверять нужно не только двери, но и коробки, наличники, доборы и фурнитуру. В упаковках с фурнитурой (ручки, петли, замки) могут отсутствовать шурупы и отдельные детали, ответные накладки, например. В идеале, конечно, проверку должен проводить знающий человек, например мастер монтажник.
Не следует обращать внимания на ворчание доставщиков и их спешку. Проверяйте тщательно, в том числе соответствие количества в накладной — это ваши деньги и ваше право. Если чего-то не хватает — указывайте в накладной: «принял столько-то», «не хватает столько-то». И обязательно распишитесь с указанием числа. Ещё лучше, если подпись поставит ещё один человек. Так же очень важно, чтобы в накладной должны быть чётко и понятно указаны реквизиты продавца/организации, адрес, ИНН. Тогда вы гарантируете себе замену и довоз товара. Подписав накладные без проверки — вы соглашаетесь принять товар и автоматически соглашаетесь с тем, что у вас нет претензий по его качеству. Если в дальнейшем вскроются дефекты, доказать что-то может быть весьма проблематично или вообще невозможно.
90% проблем можно отсечь именно на этапе приёмки, остальные 10% — это скрытый производственный брак. Вскрывается он, как правило, во время работы по установке. Если такое происходит — нужно производить экспертизу, после которой бракованные изделия вам обязаны заменить по закону. Если товар не подошёл в принципе, либо большая его часть оказалась браком — вы можете полностью отказаться от него, требуя замены или возврата денег. В этом случае, при условии грамотного отношения к накладной, закон будет на вашей стороне.
Удачи вам в работе и приятного ремонта!