Размеры унитаза на чертеже. Стандартные модели
- Размеры унитаза на чертеже. Стандартные модели
- Размер унитаза с инсталляцией. Стандартные размеры
- Размеры унитаза с бачком. Расчёт габаритов
- Размеры унитаза подвесного.
- Унитаз размеры для установки. Стандартные размеры инсталляций
- Минимальные размеры для установки унитаза. Усредненные социальные нормативы
Размеры унитаза на чертеже. Стандартные модели
Высота инсталляции должна обеспечивать расстояние от напольного покрытия до верхнего края бортиков унитаза 40 см, так как это международный стандарт. Соответственно от чистового пола до оси канализационного патрубка выдерживается размер 229±1 мм.

Бачок всегда расположен выше системы водоотведения, его объем составляет от 6 литров, что является стандартным количеством воды для нормального смыва твердых отходов. Некоторые фирмы обеспечивают запас воды 3 л, объем резервуара при этом увеличивается до 9 л. Либо предлагают экономичные модели бачков с малым объемом смыва — 2,4/4 л.
Самыми низкими читаются инсталляции 80 см, при этом увеличивается или толщина бака, или его ширина, чаще понемногу оба этих размера. Для получения узких инсталляций, придется увеличить высоту и толщину смывного бачка.
Стандартными размерами рамной инсталляции , считается высота 110-120 см, ширина примерно 50 см и толщина 12–15 см. При этом толщина указывается в документации без учета канализационной трубы, наружный диаметр которой равен 110 мм.
У производителя Grohe стандартные габариты рамных инсталляций Rapid SL составляют 1130 мм в высоту, 500 мм в ширину и 130 мм в глубину в верхней части, как на чертеже ниже:

Глубина установки может регулироваться до 230 мм.
При этом модели могут отличаться конструкцией бачков, комплектацией (шумоизоляция, смарт-панели, прочие дополнительные опции). Особенностями конструкции являются:
Компания Roca предлагает коллекцию рамных конструкций стандартного размера:
- Duplo WC — ширина 500 мм, высота 1090, глубина 140 – 195 мм;
Duplo WC
- Duplo WC Smart – ширина 500 мм, высота 1190, глубина 140 – 195 мм;
Duplo WC Smart - Duplo WC Freestanding – ширина 500 мм, высота 1120, глубина 160 мм;
Duplo WC Freestanding
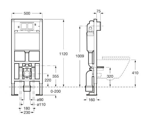
Габариты базовой модели Tece — TeceProfil: ширина 500 мм, высота 1120 мм, глубина 150.

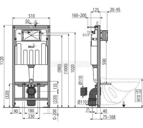
Базовая модель от Alcaplast — Sadromodul AM101/1120 имеет габариты: 1120 мм (высота), 510 мм (ширина) и 125 мм (глубина).

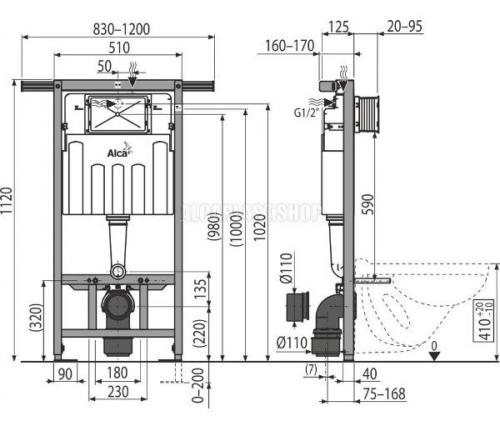
Также у Tece есть модель Jadromodul АМ102/1120 для установки в панельных домах — имеет дополнительные лапки для установки враспор в стандартных туалетах (от 830 до 1200 мм);

У бренда Geberit стандартными для рамных инсталляций считаются размеры 120 мм (толщина), 500 мм (ширина) и 1120 мм (высота) с возможностью регулировки в пределах 200 мм по вертикали. Всего у компании разработано три серии подобных систем скрытого монтажа:
- бюджетная Delta – рамка открытого типа не имеет сверху перекладины, клавиши спуска пластиковые, выполнены в трех базовых расцветках;
Delta
- элитная Sigma – рамка с верхней перекладиной, 80 с лишним вариантов дизайна кнопок слива;
Sigma
- универсальная Omega – стандартными размерами обладает только одна модель из трех, от предыдущего варианта серии Сигма она отличается только конструкцией бачка.
Omega
Производитель
Viega именует рамные инсталляции «элементы для унитаза серии Prevista Dry». Стандартом на этом предприятии считаются габариты 1120 мм по высоте, 500 мм по ширине и 120 мм по глубине установки.

Имеются варианты с дополнительными опорами, креплением шпилек к стене, возможностью отбора воздуха в выпускной коллектор вентиляции из чаши унитаза.
Обратите внимание: реальная глубина установки инсталляций начинается от 150 мм, независимо от их толщины, это связано с диаметром канализационных труб — 110 мм. Поэтому толщины инсталляций менее 150 мм имеют смысл только если за самим бачком проходят трубы.
Размер унитаза с инсталляцией. Стандартные размеры
Инсталляция – это конструкция, при которой унитаз и кнопка смыва находятся на виду, а все технические элементы скрыты в стене или в полу. Такие системы используют в основном с подвесными унитазами, но можно и с напольными.
В зависимости от того, как крепятся инсталляции, их подразделяют на блочные и рамные.
- Блочные инсталляции. Обычно находятся на капитальной стене. Считаются недорогими и простыми. Монтаж производится в подготовленную нишу. Основой для крепления унитаза служит арматура, которая приделана к блочной системе.
- Рамные инсталляции состоят из стального каркаса в виде рамы. Ее монтаж может производиться на пол и на стену. Считается более дорогой и более сложной в установке. Именно возможность ее размещения в любом помещении отличает ее от блочной инсталляции.
Размеры инсталляций могут быть разными в зависимости от выбранного места и устанавливаемого унитаза. Обычно они используются, где нет пространственных ограничений по площади. Но все же имеют свои стандартные размеры, подходящие для большинства моделей.
Ширина
Блочные и рамные инсталляции имеют стандартную ширину 50–60 см. Это расстояние, достаточное для установки сливного бачка. Размеры последнего могут различаться, но ширина бывает не более 50 см.
Глубина
Важный параметр при выборе инсталляции. Различается в зависимости от типа конструкции. Блочные инсталляции самые компактные и имеют размер глубины 10–15 см, рамные инсталляции – 15–30 см. Глубина консоли зависит от объема сливного бачка, размещенного в раме.
Минимальная глубина может составлять 8 см, но используется для компактных инсталляций.
Высота
Важный фактор при выборе инсталляции. Измеряется от пола. Если его еще нет, то прибавляется высота будущего пола. Высота берется в пределах 90–140 см. Крепежи под шпильки для крепления чаши обычно делают на 32 см выше уровня пола – в случае надобности можно изменить с помощью ножек в рамной конструкции.
Ниже приведены стандартные размеры в плане.
Габариты угловых и компактных инсталляций
Довольно часто санузел имеет небольшие размеры. В этом случае вам помогут не габаритные, а угловые и компактные инсталляции. Первое решение позволяет разместить унитаз в углу. Таким образом экономится площадь, появляется возможность монтажа другого сантехнического оборудования.
Угловые инсталляции довольно часто выбирают именно из-за возможности дополнительного укрепления конструкции. На раме под углом 45 градусов расположены 4 дополнительные накладки, что обеспечивает плотность прилегания к основе.
Ширина рамы для угловой инсталляции составит 38 см, что позволяет более рационально использовать площадь санузла.
Также при установках угловой инсталляции следует учитывать, что сливной бачок будет иметь трехгранную форму . Но эта форма позволяет уменьшить глубину каркаса. В среднем она составит 13–20 см.
Компактные инсталляции предназначены для установки в маленьких пространствах, например под подоконник. Используются рамные каркасы высотой не более 85 см. Глубина установки может быть 8 см. Крепление также может производиться на стену, плоскую перегородку, пол или иметь комбинированные крепления.
Размеры унитаза с бачком. Расчёт габаритов
Если в помещении имеется достаточно места для установки унитаза, то выбор можно сделать в пользу длинных систем. Лучшим вариантом является приобретение комплекта, который включает не только унитаз, но и биде.
Компактные унитазы будут наиболее подходящим вариантом для туалетных комнат, которые имеют небольшие размеры, а также в санузлах. Можно выбирать как из напольных, так и из подвесных моделей. Неплохим вариантом будет и угловая модель, у которой в стену встраивается бачок.
Подбор ширины унитаза, а также его высоты осуществляют индивидуально. Крупным людям будет максимально комфортно находиться на широком сиденье, расположенном на достаточной высоте. Стройные люди лучше всего чувствуют себя на унитазе узкой модели. Специалисты дают рекомендацию при выборе сантехнического изделия ориентироваться на рост самого высокого члена семьи.
Стандарты размеров унитаза с бачком
Если отталкиваться от ГОСТа, то в настоящий момент маленькие унитазы выпускаются со следующими параметрами:
- детские – 335х405х290 мм;
- без цельноотлитой полочки – 400х460х360 мм;
- с цельноотлитой полочкой – 370х605х340 мм.
Стоит заметить, что в магазинах сантехнического оборудования владелец квартиры может приобрести не только продукцию отечественных производителей. Наряду с ними доступны также и изделия, которые являются продукцией зарубежных компаний. Между собой они различаются по внешнему виду, а также по размерам. По той причине, что при создании модели проектируются под человека, отличия между ними незначительны. Официально оптимальными называются размеры унитаза 380х480х370-400 мм.
Виды унитазов
По такому параметру, как способ установки все изделия разделяются на унитазы подвесного и напольного типа. Модели, которые предполагают напольный способ установки, являются наиболее распространёнными. Некоторые модели, которые не имеют смывного бачка, предполагают его установку на стене или закрепление к системе инсталляции. У таких изделий габариты составляют 520х340 мм. Сиденье размещается на стандартной высоте 400 мм. Однако среди моделей выпускаемых унитазов есть приборы, которые имеют увеличенную на 10 см длину.
Компакт-унитазы имеют такое название по той причине, что для них характерны небольшие размеры. Непосредственно на унитаз у таких изделий производится установка сливного бачка. На полочке мини-унитаза с цельноотлитой чашей размещается бачок. Компактные модели унитазов имеют размеры 380х800х675 мм.
В продаже можно найти и самые компактные угловые унитазы напольного типа разной ширины. Особенность таких моделей состоит в том, что они имеют бачок треугольной формы. Благодаря этой особенности владелец квартиры может установить такой прибор в любом углу санузла. Габариты моделей сантехнических приборов данного типа составляют 360х815х760 мм. У данных изделий сиденье располагается на высоте 400 мм. В зависимости от модели установка и монтаж сантехнического прибора этого вида могут быть произведены вплотную к стене или на некотором удалении от них.
Выбор унитаза с бачком зависит от размеров помещения и комфортности использования. Лучшим вариантом является приобретение комплекта, который включает не только унитаз, но и биде.
Выбор ширины и высоты унитаза
Ширина и высота унитаза выбираются индивидуально, учитывая рост и комплекцию пользователя. Крупным людям будет комфортно на широком сидении, расположенном на достаточной высоте, а стройным - на узкой модели.
Специалисты рекомендуют ориентироваться на рост самого высокого члена семьи при выборе сантехнического изделия.
ГОСТ и размеры унитаза
В соответствии с ГОСТом, маленькие унитазы выпускаются с следующими параметрами:
- 380х480х370-400 мм
Однако, в сантехнических магазинах можно найти и изделия зарубежных компаний, которые могут иметь отличные размеры.
Компакт-унитазы
Компакт-унитазы имеют название из-за своих небольших размеров. Они имеют размеры 380х800х675 мм и имеют бачок на унитазе.
Угловые унитазы
Угловые унитазы имеют размеры 360х815х760 мм и имеют бачок треугольной формы. Они могут быть установлены в любом углу санузла.
Сиденье таких моделей расположено на высоте 400 мм, и установка может быть произведена вплотную к стене или на некотором удалении от них.
Если в квартире санузел имеет малые габариты, то в этом случае лучшим решением будет установка унитаза подвесного типа. Модели таких унитазов в зависимости от размеров подразделяются на следующие виды:
- маленькие. У них длина не превышает 54 см. Они наиболее удобны в туалетных комнатах, в которых площадь невелика;
- средние. У таких изделий длина составляет от 54 до 60 см. Этот размер является оптимальным. Использовать такой сантехнический прибор будет удобно для большинства людей.
- увеличенные. Особенность изделий этого типа состоит в том, что длина у них доходит до 70 см. Для пожилых, а также людей, которые имеют ограниченные возможности, такие приборы являются подходящим решением для санузла.
Размеры унитаза подвесного.
Мы уже писали о том, как выбрать инсталляцию, поэтому здесь поговорим только о существующих размерах инсталляций для установки в ванной комнате или туалете. Помните, выбирать лучше инсталляцию известных брендов имеющих официальное представительство в Беларуси: Geberit, OLI, TECE, AlcaPlast, Viega. Потому что в последствии, Вы всегда беспрепятственно сможете её обслужить и купить расходные материалы. У китайских образцов нету такой поддержки и запасные части «днем с огнем не сыщешь».
Разновидности размеров инсталляций
А теперь поговорим о размерах, какие они бывают?
- Стандартные инсталляции для унитаза — все, что представлено на рынке, за исключением ниже перечисленных вариаций. Все европейские инсталляции имеют одинаковые стандартные размеры.
- Узкие инсталляции помогут Вам беспрепятственно установить подвесной унитаз в ограниченном пространстве.
- Низкие инсталляции (82 см) — подходят для установки под окном, сантехническим люком и другим препятствием расположенным аккурат над инсталляцией.
- Тонкие инсталляции — тут все просто, целью стоит экономия места ванной комнаты, правда всего на пару сантиметров.
Инсталляции стандартных размеров
Подходят для большинства ванных комнат, имеют наиболее низкую цену, в силу отсутствия особенностей производства.
- Высота: 112 сантиметров;
- Глубина: 12 сантиметров +-;
- Ширина: 50 сантиметров +-.
Узкие инсталляции
Для установки в угол или в узкий проем между коммуникаций, или просто необходимость установки в узком пространстве.
Низкие инсталляции — 82 см
Довольно популярный размер инсталляций, подходят для установки под окном, подоконником или сантехническим люком. В общем в любом месте, где не позволительна установка стандартной инсталляции 112 сантиметров высотой.
- Высота 82 см;
- Глубина 12 см;
- Ширина 50 см.
Тонкие инсталляции
Необходимо сэкономить пару сантиметров пространства Вашей ванной комнаты? Например: толщина стены не позволяет установить стандартную инсталляцию, тогда Вам подойдет тонкая.
Унитаз размеры для установки. Стандартные размеры инсталляций
Не все инсталляции имеют стандартные размеры, что стоит учитывать всегда. Отличаться могут даже разные модели одной линейки того же бренда. А еще есть отдельные решения для детей, лиц с ограниченными возможностями, людей с крупным телосложением.
Тем не менее, если брать наиболее популярные модели и массовые размеры разных производителей, то можно выявить средние значения ключевых параметров.
Ширина инсталляций
Ширина инсталляции для подвесного унитаза обычно составляет 50-60 сантиметров. Это стандартный размер вне зависимости от типа инсталляции. Этот параметр во многом зависит от размера скрытого бачка унитаза (в большинстве случаев ширина бака не превышает 50 см). Такой размер подходит для сантехники любых габаритов, и обеспечивает необходимую устойчивость и надежность конструкции.
Глубина инсталляции для унитаза
От размера глубины зависит, сколько пространства нам придется потерять при установке инсталляции в санузле. Глубина консоли тоже определяется во многом размерами сливного бака (объем воды 6-9 литров). Поэтому большинство потребителей пытается подобрать инсталляцию как можно меньше скрадывающую место. У стандартных рамных инсталляций глубина составляет от 15 до 30 см.
Высота инсталляций
Рамные инсталляции для подвесных унитазов имеют высоту от пола 80-140 сантиметров. Но наиболее популярные на рынке модели имеют высоту 100-120 см. Этого достаточно, чтобы конструкция полноценно выполняла все свои функции.
Таким образом, если мы говорим о стандартных размерах наиболее распространенных рамных инсталляций, то их наиболее часты размеры составляют:
глубина – 15-30 см;
ширина – 50-60 см;
высота – 100-120 см.

Есть также определенные правила, которые необходимо соблюдать для правильной установки инсталляции :
Крепежи под шпильки, на которые крепится чаша, обычно располагаются на уровне 32 см. Это универсальная высота, но ее можно изменить при помощи регулируемых ножек.
От центра чаши до перегородок в обе стороны должно быть не менее 60 см свободного пространства.
Минимальное допустимое расстояние от края сантехники до двери или перегородки составляет 60 см.
Канализационный патрубок должен крепиться к чаше на уровне 22 см от пола.
Подвесная сантехника выглядит современно и отличается удобством и надежностью эксплуатации. Подтверждением тому служит и гарантийный срок, который производители дают на свои инсталляции – 10 лет! Но служат инсталляции гораздо дольше. Конечно, при условии грамотного подбора и профессиональной установки системы.
В нашем каталоге представлено большое количество надежных инсталляций и готовых комплектов . Мы с радостью поможем Вам подобрать оптимальный вариант под дизайн интерьера, бюджет и другие требования.
Быстрая доставка по всей России, установка, обслуживание.
Минимальные размеры для установки унитаза. Усредненные социальные нормативы
Нормы установки унитаза от стены – результаты проведенных измерений, исследований, социальных и статистических опросов, которые позволяют вырабатывать нормативы для поточного производства. Некоторые из них вошли в ГОСТы и СанПиН, стали типовыми стандартами в реализации промышленной продукции на строительных рынках и супермаркетах строительных материалов.

Оптимальный и минимальный отступ от стены сбоку согласно нормам СНиП
Детский унитаз разрабатывался по нормам, полученным в педиатрии, где есть стандартные нормативы для каждого возраста – вес, рост. Детям, которые не соответствуют возрастным стандартам, приходится приспосабливаться в любом ДОУ – будь то детский сад или школа.
В домашних условиях далеко не у всех есть лишние квадратные метры и средства, чтобы осуществлять монтаж специального приспособления. Гораздо рациональнее использовать специальную подставку для унитаза. Социальные нормативы касаются стандартизированного оборудования и размера помещений.

Расстояние между приборами
Если есть люди, не соответствующие этим параметрам, они испытывают неудобства или (при наличии значительных средств) создают туалетные комнаты и покупают унитазы нестандартного типа. Усредненные нормы габаритов выглядят следующим образом:
- Самый распространенный размер унитаза: высота чаши – 40 см, бачок – 81,5 см, сливной патрубок возвышается на 185 см. Сам компакт в длину чаще всего 65 см, а в ширину – 35 см. Отсюда выходит, что от центральной оси устройства до его края может быть минимум – 17,5 см, если это взрослый, а не детский вариант. Тогда понятно, из каких соображений на строительном форуме на вопрос, сколько сантиметров должно составлять минимальное расстояние, пишут, что оно может быть 38 см, а расстояние от унитаза до стены сбоку в минимуме равно 20 см. В сумме 17,5 см (почти 18 см) от центральной (продольной) оси чаши и 20 см, рекомендованные до стенки, и дают те 38 см (минимальных). А если следовать нормативам СНиП и сделать 45 см от оси до стены, то это и будет оптимальный усредненный параметр, удобный для большинства людей.
- Для туалетной комнаты в строительных нормативах достаточным для комфортного пребывания и отправления естественных надобностей считается 80 см ширины и 1 м 20 см длины. При переоборудовании старого вторичного жилья нередко делают и меньше длину и ширину. Иногда таким образом выигрывают метры в прихожей или кухне. При этом обычно сближают ванную и туалет или расширяют пространство за счет изменения схемы ванной и установки душевой кабинки. Но в домах массовой типовой застройки с отдельно расположенным туалетом часто встречается габарит, определенный ГОСТом и СНиП, соответствующий нормам СанПиН и обеспечивающий максимальное удобство людям, проживающим в квартире.
Duplo WC Smart
Duplo WC Freestanding
Delta
Sigma
Omega