Монтаж пластиковых подоконников своими руками: полное руководство
- Монтаж пластиковых подоконников своими руками: полное руководство
 - Связанные вопросы и ответы
 - С чего начать монтаж пластиковых подоконников
 - Какие инструменты и материалы необходимы для установки
 - Как правильно измерить окно для подбора размера подоконника
 - Как подготовить поверхность стены перед установкой
 - Какие существуют способы крепления подоконников
 - Как герметизировать зазоры между подоконником и стеной
 - Как избежать ошибок при установке
 - Как ухаживать за пластиковыми подоконниками после монтажа
 
Монтаж пластиковых подоконников своими руками: полное руководство
Пластиковые подоконники – это неотъемлемая часть современного ремонта. Они не только украшают комнату, но и выполняют функцию утепления и защиты стен от влаги. Монтаж подоконников может показаться сложным процессом, но если подойти к делу с умом и следовать инструкциям, его можно выполнить своими руками. В этой статье мы рассмотрим все этапы установки пластиковых подоконников, а также дадим полезные советы и рекомендации.
Подготовка инструментов и материалов
Перед началом работ необходимо подготовить все необходимые инструменты и материалы. Это поможет избежать перерывов в процессе и убедиться, что у вас под рукой всё, что нужно.
- Инструменты:
  
- Отвёртка
 - Молоток
 - Ключи (плоскогубцы, отвертка)
 - Рулетка
 - Карандаш
 - Уровень
 - Дрель
 - Шлифовальная машина
 - Пила или лобзик
 
 - Материалы:
  
- Пластиковый подоконник
 - Герметик
 - Монтажная пена
 - Декоративные заглушки
 - Клей для пластика
 - Утеплитель (например, пеноплекс)
 
 
Демонтаж старых подоконников
Первым шагом в установке новых подоконников является демонтаж старых. Этот процесс требует осторожности, чтобы не повредить стены и окна.
- Снимите старые подоконники. Если они закреплены гвоздями или шурупами, аккуратно выкрутите их отверткой.
 - Удалите остатки старого клея или герметика. Для этого можно использовать шлифовальную машину или нож.
 - Очистите поверхность от пыли и мусора. Это обеспечит лучшую адгезию для нового подоконника.
 
Подготовка откосов
Откосы – это часть стены, прилегающая к окну. Их подготовка важна для правильной установки подоконника.
- Проверьте состояние откосов. Если они осыпаются или имеют трещины, их необходимо отремонтировать.
 - Нанесите слой герметика на швы между стеной и подоконником.
 - Установите утеплитель, если это необходимо. Это поможет избежать теплопотерь.
 
Установка пластикового подоконника
Теперь пришло время установить новый подоконник. Этот процесс требует внимания и точности.
Разметка и подгонка
Перед установкой необходимо сделать разметку и подогнать подоконник под размер окна.
- Измерьте длину и ширину окна, используя рулетку.
 - Перенесите размеры на подоконник и сделайте разметку карандашом.
 - Вырежьте подоконник по разметке, используя пилу или лобзик.
 
Установка подоконника
Теперь можно приступить к установке подоконника.
- Нанесите слой клея или герметика на обратную сторону подоконника.
 - Аккуратно установите подоконник в подготовленное место, прижав его к стене.
 - Закрепите подоконник шурупами или гвоздями, если это предусмотрено конструкцией.
 - Проверьте уровень установки. Подоконник должен быть ровным.
 
Герметизация швов
Последний шаг – герметизация швов между подоконником и стеной.
- Нанесите монтажную пену на швы.
 - После высыхания пены обрежьте излишки ножом.
 - Нанесите слой герметика для дополнительной защиты.
 
Советы и рекомендации
Чтобы монтаж подоконников прошёл успешно, обратите внимание на следующие советы:
- Используйте качественные материалы. Это обеспечит долговечность конструкции.
 - Работайте в перчатках и защитных очках, чтобы избежать травм.
 - Не спешите. Каждый шаг требует внимания и точности.
 
Ошибки при монтаже и их устранение
Даже при соблюдении всех правил могут возникнуть ошибки. Вот как с ними справиться:
| Ошибка | Причина | Решение | 
|---|---|---|
| Неравный подоконник | Неправильная разметка или установка | Проверьте уровень и установите подоконник | 
| Протечки | Недостаточная герметизация швов | Дополнительно нанесите герметик | 
| Щели между подоконником и стеной | Неправильный размер подоконника | Подогните подоконник или используйте уплотнитель | 
Заключительные мысли
Монтаж пластиковых подоконников – это процесс, который требует терпения и внимания. Однако, следуя нашему руководству и соблюдая все рекомендации, вы сможете выполнить его своими руками. Удачи в ваших строительных начинаниях!
Связанные вопросы и ответы:
Вопрос 1: Какие инструменты и материалы нужны для монтажа пластиковых подоконников своими руками
Для монтажа пластиковых подоконников своими руками вам понадобятся следующие инструменты и материалы: измерительная лента, уровень, дрель или шуруповерт, ключи (плоскогубцы, отвертки), герметик (силиконовый), монтажная пена, деревянные клинья, резиновый молоток, защитные перчатки и очки. Также убедитесь, что у вас есть сам пластиковый подоконник, соответствующий размеру вашего окна. Все эти инструменты и материалы помогут обеспечить качественную и надежную установку подоконника.
Вопрос 2: Как подготовить открое окна перед установкой пластикового подоконника
Подготовка откроя окна включает несколько важных шагов. Сначала необходимо демонтировать старый подоконник, если он есть, и очистить открое от мусора, старого клея или раствора. Затем нужно проверить поверхность на наличие повреждений или неровностей и выровнять ее, если это требуется. Также важно обработать поверхность антисептическим раствором, чтобы избежать появления грибка или плесени. После этого можно приступать к установке нового подоконника.
Вопрос 3: Как правильно установить пластиковый подоконник, чтобы он был ровным и надежным
Установка пластикового подоконника требует внимательности и точности. Сначала сделайте разметку на стене, соответствующую размерам подоконника. Затем нанесите слой герметика или монтажной пены на поверхность, где будет установлен подоконник. Установите подоконник, используя уровень, чтобы он был идеально ровным. Закрепите его с помощью деревянных клиньев и резинового молотка, чтобы не повредить поверхность. После этого заполните зазоры между подоконником и стеной монтажной пеной и дайте ей высохнуть. Последний шаг – проверить герметичность и надежность установки.
Вопрос 4: Как избежать ошибок при монтаже пластиковых подоконников
Избежать ошибок при монтаже пластиковых подоконников помогут несколько простых советов. Во-первых, всегда делайте точные измерения, чтобы подоконник идеально подходил по размеру. Во-вторых, не забывайте использовать уровень, чтобы подоконник был ровным. В-третьих, наносите герметик или монтажную пену равномерно, чтобы избежать пустот. Также важно не спешить и дать пене полностью высохнуть перед дальнейшими работами. Наконец, проверяйте герметичность и надежность установки, чтобы избежать протеканий и других проблем в будущем.
Вопрос 5: Как ухаживать за пластиковыми подоконниками после установки
Уход за пластиковыми подоконниками после установки включает несколько простых шагов. Регулярно очищайте поверхность подоконника от пыли и грязи с помощью мягкой ткани и мыльного раствора. Избегайте использования абразивных материалов, чтобы не повредить поверхность. Также важно проверять герметичность швов и уплотнений, чтобы предотвратить проникновение влаги. Если вы заметите какие-либо повреждения или трещины, немедленно устраните их с помощью герметика. Это поможет продлить срок службы подоконника и сохранить его внешний вид.
Вопрос 6: Как выбрать подходящий пластиковый подоконник для своего окна
Выбор подходящего пластикового подоконника зависит от нескольких факторов. Во-первых, измерьте размеры вашего окна, чтобы выбрать подоконник подходящего размера. Во-вторых, учитывайте материал, из которого сделан подоконник – он должен быть прочным и долговечным. В-третьих, выбирайте цвет и дизайн, который будет гармонировать с интерьером вашего помещения. Также важно обратить внимание на функциональность – например, наличие откидных или выдвижных механизмов. Наконец, проверьте наличие сертификатов качества и гарантий на изделие.
С чего начать монтаж пластиковых подоконников
Многие считают, что замена подоконника осуществляется просто путём установки нового изделия на место старого, но для этого необходимо также выполнить ряд других операций, чтобы подготовить имеющуюся нишу, соблюдая определённые правила и рекомендации.
Чтобы максимально точно подогнать подоконник для конкретного проёма, требуется удалить лишний раствор и убрать выступающие части в местах установки нового изделия, с учётом его размеров. Также нужно проверить паз, в который вставляется полотно. От правильности выполнения замеров будет зависеть эстетичность и общая прочность конструкции, практичность самого подоконника. Если прежнее изделие осталось невредимым, можете снять замеры с него для покупки нового товара. Цену подоконника для окна нельзя назвать низкой, поэтому к замерам и подгонке изделия стоит подойти максимально ответственно.
Для подрезания нового полотна по длине нужно использовать электролобзик либо пилу. Крайне важно следить за тем, чтобы в процессе резки не образовывались трещины либо другие дефекты, поэтому раскрой нужно выполнять медленно и аккуратно. Если планируется монтаж деревянного подоконника, то каждый вырезанный край с торца следует обработать антисептическими составами для защиты от грибка и плесени, а также повысить устойчивость к влаге.
Монтаж пластикового оконного элемента выполняется в несколько этапов:
- Подготовка самого проёма, куда будет встроен купленный подоконник. Если новое изделие имеет толщину (высоту сечения) меньше, нежели у прежнего, то на горизонтальном основании требуется залить слой цементного раствора. Если новый товар отличается большей толщиной, следует увеличить размеры ниши. Если в процессе выполнения работ в стене образуются трещины либо пустоты, необходимо их обязательно заделать перед монтажом подоконника, используя обычную шпаклёвку или цементный раствор.
 - Герметизация ниши. В местах, где новая конструкция будет примыкать к оконной раме, по длине проёма окна следует нанести слой силиконового герметика. Благодаря этому обеспечивается герметичность системы, исключается образование зазоров для проникновения холодных потоков воздуха в дом или квартиру.
 - Обустройство опоры. В проём с упором на пол следует установить заранее заготовленные бруски либо доски, которые служат в качестве опоры для новой конструкции, пока пена и цементный раствор не затвердеют. С помощью строительного уровня нужно проверить горизонтальность опорных досок, при наличии отклонений следует устранить их, чтобы плоскость была идеально ровной.
 - Установка полотна. После обустройства опоры нужно установить пластиковый подоконник в подготовленную нишу. Затем также необходимо проверить горизонтальность плиты с помощью уровня. Если изделие установлено правильно, нужно придавить его сверху не сильно тяжёлым грузом – для этого можно использовать бутылки с водой, книги или другие вещи, имеющиеся под рукой.
 - Заделывание пустот. После монтажа подоконника следует задуть монтажной пеной пустоты и зазоры по бокам и снизу от оконного элемента. При замене на новый товар некоторых брендов в поставку входит комплект специализированных профилей, которые облегчают процедуру монтажа. Часть под подоконником следует заделывать цементным раствором для более надёжной фиксации и обеспечения прочности конструкции.
 - Обработка проёма. После заделывания пустот и зазоров нужно сделать перерыв на 20-25 часов, чтобы бетонная смесь или пена хорошо затвердели, после чего можно приступать к обработке проёма. Если для заделывания зазоров использовался цементный раствор, то поверхность необходимо прошлифовать с помощью тёрки либо мелкозернистой наждачной бумаги. Если же использовалась монтажная пена, то следует срезать её излишки.
 - Финишная отделка. Для придания оконному проёму естественного и эстетичного вида требуется оштукатурить и покрасить откосы и нижнюю часть под подоконником. Для защиты торцов полотна устанавливаются специальные заглушки, и только в самом конце можно удалить плёнку с установленного полотна.
 
Какие инструменты и материалы необходимы для установки
Для работы вам понадобятся:
- крепеж: саморезы для сборки и крепления дверной коробки, финишные гвозди для крепления наличников (при необходимости) и дюбель-гвозди
 - монтажная пена
 - монтажный клей жидкие гвозди
 - торцовочная пила или стусло с ножовкой по дереву
 - циркулярная пила или электрический лобзик
 - дрель-шуруповерт , биты и сверла
 - перфоратор с бурами
 - молоток
 - стамеска
 - строительный уровень
 - столярный угольник
 - рулетка
 - карандаш
 - строительный нож
 - клин монтажный
 
Сборка дверной коробки
Сборку коробки удобно вести на полу. Длина деталей для вертикальных стоек и верхней перекладины всегда больше, чем размеры дверного полотна. Чтобы точно выдержать нужные размеры коробки, их отмеряют непосредственно по дверному полотну с учетом зазоров между полотном, коробкой и полом, когда дверь будет установлена.
Чтобы дверь хорошо смотрелась и не пропускала шум, зазоры вокруг дверного полотна должны быть минимальными. Обычно между дверным полотном и коробкой оставляют зазоры шириной 3–4 мм, а под дверью — 10–12 мм.
Положите на пол детали дверной коробки, расположите относительно друг друга так, как они потом будут стоять. Положите внутрь дверное полотно — так вы будете видеть величину зазоров и сможете выставить их размер — 3 мм
Чтобы сделать по периметру равномерные зазоры, вырежьте из упаковочного гофрокартона несколько кусочков и вставьте их между коробкой и полотном.
Евгений Брилиантов
Удобно использовать кусочки ДВП — их толщина как раз 3 мм. Можно заготовить несколько квадратов и проложить их между полотном и коробкой по всему периметру.
Если картон тонкий, сложите его вдвое, чтобы получить нужные зазоры. Затем на верхней перекладине и вертикальных стойках коробки карандашом поставьте метки, по которым их нужно обрезать.
Разметьте положение петель: от верхнего и нижнего торцов дверного полотна отмерьте по 200 мм и поставьте карандашом метки. По окончании разметки уберите дверное полотно в сторону.
С помощью ножовки и стусла или торцовочной пилой обрежьте детали коробки по разметке. Сделайте на концах верхней перекладины вырезы для стыков с вертикальными стойками коробки.
Совместите детали коробки по меткам и соедините их саморезами. Чтобы древесина при заворачивании саморезов не треснула, предварительно просверлите для каждого самореза отверстие.
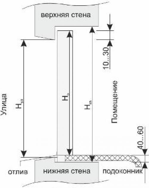
Как правильно измерить окно для подбора размера подоконника
Замер проема без четверти.
Сначала измеряем ширину проема (Wпр), т.е. расстояние между боковыми стенами. Для вычисления размера окна (Wо) необходимо из полученного значения Wпр вычесть зазоры под монтажный шов (Wм). Как правило, под монтажную пену оставляют 20-30 мм с каждой стороны.
Wо = Wпр – 2*Wм
Рис. 3: Расчет ширины окна для бесчетвертного проема.
![]()  | Замер ширины оконного проема без четвертиЗатем приступаем к измерению высоты проема (Нпр), т.е. расстояния между нижней и верхней стеной. Из полученной высоты вычитаем зазоры 20-30 мм сверху под монтажный шов (Нмв) и 40 мм снизу для установки подоконника (Нмн). В результате получаем высоту окна (Но): Но = Нпр – Нмв – Нмн  | 
| Рис. 4: Расчет высоты окна для бесчетвертного проема. | 
Замер проема с четвертью.
В отличие от безчетвертного варианта, в данном случае измерения производятся и со стороны улицы, и в помещении.
Измеряем проем со стороны улицы (Wул) и проемную ширину в квартире (Wкв). Ширина пластикового окна (Wо) должна быть на 20-50 мм больше Wул и на 40-60 мм меньше Wкв.
Рис. 5: Расчет ширины окна для четвертного проема.
Высоту проема также измеряем со стороны улицы (Нул) и в помещении (Нкв).
![]()  | ![]()  | 
Как подготовить поверхность стены перед установкой
Монтаж фасадных панелей можно проводить на строящийся или готовый дом, отдельно на цоколь.
Перед началом установки фасадных панелей своими руками необходимо подготовить стены здания:
Демонтаж старых конструкций
- Очистка поверхности . Удалите старую облицовку, пыль, грязь, а также демонтируйте любые декоративные элементы или оборудование. При необходимости устраните выступающие элементы на стенах, которые могут помешать работам. Тщательно выравнивать поверхность не нужно, неровности будут нивелированы во время установки обрешётки.
 - Ремонт стен . Если на стенах имеются трещины или другие дефекты, их следует устранить до начала следующего этапа. Нужно тщательно проверить несущие конструкции на наличие плесени, металлические элементы — на следы ржавчины. Если стены деревянные, их нужно обработать специальными пропитками.
 
Монтаж обрешётки
После подготовки несущих поверхностей можно приступать к монтажу обрешётки. Работать нужно очень точно, тщательно проверяя горизонтальное и вертикальное положение элементов. На этом этапе можно сгладить неровности несущей поверхности, варьируя расстояние между планками и стеной.
Сама инструкция состоит из нескольких простых шагов:
- Разметка . Рулеткой, уровнем, шнуркой или электронным оборудованием выполните разметку мест крепления. Расстояние между вертикальными планками должно быть одинаковым, от 30 до 40 см. Первую горизонтальную планку располагают в 5 см от уровня земли, остальные устанавливают с шагом 40–60 см.
 - Монтаж горизонтальных элементов (только при монтаже минеральных утеплителей) . Начните с установки горизонтальных профилей в нижней части стены. Первый профиль монтируют точно по уровню, так как от него зависит ровность всей конструкции. Между нижним краем конструкции и землёй нужно оставить пространство, которое обеспечит вентиляцию.
 - Вертикальные элементы крепят с шагом, единым для всей поверхности стен . Обычно это шаг в 30–40 см. По углам здания нужно будет устанавливать дополнительные усиливающие профили.
 
Горизонтальная обрешетка под монтаж фасадных панелей
Вертикальная обрешетка под монтаж минераловатного утеплителя
Деревянные планки на стене из дерева фиксируют гвоздями или саморезами, элементы из металла или полимеров — только саморезами. Для несущих конструкций из бетона, кирпича, блоков нужны дюбели.
Крепление обрешетки к деревянному основанию
Крепление обрешетки к бетонному основанию
Для крепления фасадных панелей ТЕХНОНИКОЛЬ использую только оцинкованные саморезы с полукруглой шляпкой диаметром не более 8 мм.
Монтаж угловых элементов и стартового профиля
Угловые элементы и стартовый профиль обеспечивают плотное прилегание облицовки к углам здания. Необходимо точно соблюдать разметку, расположение профилей по горизонтали и вертикали:
- Установка стартового профиля . Элемент крепится на нижней части стены по периметру здания с отступом от земли, чтобы воздух поступал в вентиляционный канал. Отступ должен быть не менее 20 мм, но важно учитывать морозное пучение и при необходимости увеличивать зазор. Профиль служит основанием для первой линии отделочного материала и монтируется по уровню строго горизонтально, а от него выравнивается весь фасад. Крепление осуществляют саморезами с интервалом в 40 см. Стартовый профиль можно заменить J-планкой, особенно при неровном ландшафте. При стыковке нескольких одинаковых профилей по длине соединение выполняют частично подрезав один элемент и вставив его в другой. Между замковыми планками стыкуемых элементов оставляют зазор 10 мм.
 - Установка углов . Угловые элементы устанавливают на внешних и внутренних углах здания по уровню, так же монтируют околооконные планки. На внутренних углах можно установить два J-профиля задней частью друг к другу. Профили монтируют, чтобы угол стыковался с пазом базовой секции, закрывая место соединения плоскостей. Все фрагменты необходимо крепить, не мешая их свободному движению при температурных расширениях, но создавая надёжную фиксацию.
 
Какие существуют способы крепления подоконников
Заострять внимание на измерительном инструменте и карандаш не станем. Остановимся на том, чем проводить резку панели и что понадобится для установки подоконника. Для раскроя используются:
- ручная ножовка;
 - электрический лобзик;
 - углошлифовальная машинка (болгарка).
 
Резка панели с помощью электролобзика
Источник fotocdn.net
За точность и аккуратность линии отреза можно сильно не беспокоиться. Кромки будут скрыты под рамой или откосами. Внимательнее нужно отнестись к формированию углов, чтобы не заступать в процессе на рабочую часть полотна.
Крепление подоконника выполняется с использованием жестких опорных элементов. Они нужны, так как пена под давлением сминается и не восстанавливается полностью. То есть вкладыши предотвращают деформацию панели. Лично я рекомендую выбирать подкладки из пластика – они имеют низкое тепловое расширение и не боятся влаги. Что нельзя сказать о деревянном брусе.
Относительно размеров можно ориентироваться на следующее:
- ширина – 50 мм;
 - высота – 20-30 мм;
 - длина – на 100 мм короче подоконника (можно такой же), но заступ за внутреннюю стенку допускать нельзя.
 
Количество выбирается с учетом ширины оконного проема. Для узкой площадки достаточно 3 штуки. В остальных случаях соблюдается шаг между вкладышами в пределах 400-500 мм. Если установленный подоконник большой и нагрузка не планируется, то можно увеличить расстояние до 1 метра.
Как герметизировать зазоры между подоконником и стеной
При установке операционной системы Windows пользователи иногда сталкиваются с различными ошибками, которые могут привести к неудачной установке или неправильной работе системы. В этой статье мы рассмотрим несколько полезных советов, которые помогут избежать таких проблем.
1. Проверьте требования к системе:
Перед установкой Windows убедитесь, что ваш компьютер соответствует требованиям операционной системы. Убедитесь, что у вас есть достаточное количество свободного места на жестком диске, и что ваш компьютер имеет необходимые характеристики, такие как объем оперативной памяти и процессор.
2. Проверьте целостность загрузочного носителя:
Если у вас возникли проблемы при установке Windows с помощью загрузочного носителя, проверьте его целостность. Убедитесь, что диск или USB-флешка, которые вы используете для установки, не повреждены и не содержат ошибок.
3. Отключите ненужное оборудование:
Перед установкой Windows отключите все ненужные устройства, подключенные к компьютеру. Это может включать в себя принтеры, сканеры, внешние жесткие диски и другие периферийные устройства. Оставьте только устройства, необходимые для установки операционной системы.
4. Обновите драйверы:
После установки Windows убедитесь, что у вас установлены последние версии драйверов для вашего оборудования. Устаревшие или несовместимые драйверы могут вызывать ошибки при установке или неправильную работу операционной системы.
5. Выполните чистую установку:
Если вы столкнулись с постоянными ошибками при установке Windows, попробуйте выполнить чистую установку операционной системы. Это означает, что вы удалите все данные с жесткого диска и установите Windows с нуля. Перед этим не забудьте создать резервную копию своих данных, чтобы не потерять их.
6. Обратитесь за помощью:
Если вы не можете решить проблемы при установке Windows самостоятельно, не стесняйтесь обратиться за помощью. Обратитесь к специалистам или посетите форумы, где другие пользователи могут поделиться опытом и предоставить полезные советы.
Соблюдение этих советов поможет вам избежать постоянных ошибок при установке Windows и обеспечить стабильную и правильную работу операционной системы.
Как избежать ошибок при установке
Приходит тепло и хочется распахнуть окна ему навстречу. Вот только вид из грязного окна совсем не будет радовать глаз. Именно поэтому по всей стране, хозяйки открывают окна, впускают весенний воздух и приступают к мытью пластиковых окон и подоконников. Как это сделать правильно, чтобы не повредить пластик и эффективно устранить загрязнения? Давайте разберёмся!
МЫТЬЁ ОКОННОЙ РАМЫ
Вымыть раму у пластикового окна совсем нетрудно. Достаточно сделать обычный раствор мыльной воды и при помощи мягкой тряпочки или губки убрать любые загрязнения с поверхности. При наличии действительно сильной грязи можно использовать и различные чистящие вещества. Существуют специальные жидкости для мытья пластиковых окон – вы можете найти их в разделе бытовой химии в каждом магазине.
Многие хозяйки ошибочно полагают, что у нового окна стоит оставить защитную плёнку. Но это неправильное решение – она не спасёт вас от загрязнений. Под плёнку всё равно будет попадать пыль, которая к тому же, из-за клеевой основы плёнки, пристанет к пластику гораздо сильнее. К тому же, под воздействием солнца клей с плёнки может перейти на сам пластик и в дальнейшем его будет сложно убрать.
МЕРЫ ПРЕДОСТОРОЖНОСТИ
Иногда желая тщательно отмыть окно или подоконник, вы можете навредить им. Дело в том, что пластиковые поверхности требуют осторожности в уходе. Следует избегать попадания на них следующих веществ:
· моющих средств с растворителем – если средство имеет в составе растворитель, оно попросту разъест пластик. Таким образом вы испортите свою оконную раму или подоконник в попытке отмыть. Внимательно читайте состав, перед тем как использовать незнакомое моющее средство;
· порошковые вещества – всегда стоит разводить моющее средство в воде. Если вы попробуете оттереть загрязнение при помощи чистящего порошка – пластик быстро покроется царапинами.
Для нанесения средства стоит использовать только мягкую сторону губки. Этим вы наверняка обезопасите пластик от повреждений.
ОЧИЩАЕМ СТЕКЛО
Чтобы быстро и эффективно вымыть стекло обычно используют тряпочки из микрофибры, но сгодится и обычная посудная губка. Для очистки можно применять любое моющее средство для стекла – в любом магазине бытовой химии они представлены в широком ассортименте. Наносить средство стоит ровными линиями, двигаясь в одном направлении (по вертикали или горизонтали), а затем пройтись повторно уже насухо.
Заниматься очисткой стекла лучше всего в пасмурный день или рано утром – на солнце средство будет высыхать слишком быстро, из-за этого на стекле появляются разводы.
МОЕМ ПОДОКОННИК
Абсолютно все средства для пластиковой рамы подойдут и для подоконника. А вот сам процесс уборки слегка отличается:
1. Сперва просто протрите подоконник от пыли влажной тряпочкой. Не забудьте убрать пыль из стыка подоконника с рамой.
2. Если визуально видно грязь – подоконник обрабатывается мыльным раствором или чистящим средством. Потом средство смывается.
3. Уже чистый подоконник насухо вытирается мягкой тканью или губкой.
Если ухаживать за подоконником регулярно, грязь и пыль будет вытираться очень легко. При качественном пластике и уборке хотя бы пару раз в месяц, подоконник прослужит вам много лет.
Как ухаживать за пластиковыми подоконниками после монтажа
Ещё одна профессиональная альтернатива Final Cut Pro, на этот раз от компании Adobe. Premier Pro является отличным инструментом для нелинейного монтажа (при котором ролик разбивается на отдельные фрагменты, а затем склеивается в нужном порядке с добавлением эффектов). Отдельный плюс программы в том, что она существует в экосистеме Adobe и спокойно интегрируется с другими продуктами, такими как Affter Effects и Photoshop. Таким образом можно охватить все аспекты пост-обработки.

Несмотря на профессиональную направленность и не самый доступный интерфейс, за счёт русскоязычной локализации программа будет не такой сложной для новичков, как уже упомянутый Sony Vegas Pro. На помощь также придут комбинации «горячих клавиш», которые стоит изучить для сохранения времени.



