Как выбрать оптимальную ширину для своей туалетной комнаты
- Как выбрать оптимальную ширину для своей туалетной комнаты
- Связанные вопросы и ответы
- Какая ширина туалетной комнаты является оптимальной
- Какие факторы влияют на ширину туалетной комнаты
- Как выбрать подходящую ширину туалетной комнаты в зависимости от ее размеров
- Как рассчитать оптимальную ширину туалетной комнаты для своего дома
- Какие стандарты и нормы рекомендуются при проектировании туалетной комнаты с учетом ее ширины
- Как учесть необходимость размещения в туалетной комнате ванной или душевой кабины при выборе ее ширины
- Как рассчитать ширину туалетной комнаты с учетом размеров входной двери
- Какие материалы и конструкции можно использовать для увеличения ширины туалетной комнаты
- Как сделать туалетную комнату удобной и функциональной при определенной ширине
Как выбрать оптимальную ширину для своей туалетной комнаты
Выбор оптимальной ширины для своей туалетной комнаты является очень важным вопросом, так как это может повлиять на удобство использования и функциональность комнаты. В этой статье мы рассмотрим некоторые факторы, которые необходимо учитывать при выборе ширины для своей туалетной комнаты.
Факторы, которые необходимо учитывать при выборе ширины для своей туалетной комнаты
- Размер комнаты. Очевидно, что размер комнаты будет одним из основных факторов, которые необходимо учитывать при выборе ширины для своей туалетной комнаты. Если комната имеет ограниченные размеры, то выбор ширины должен быть соответствующим.
- Количество людей, которые будут использовать туалетную комнату. Если комната будет использоваться одним человеком, то ширина комнаты может быть меньше, чем если бы комната использовалась двумя или более людьми.
- Тип туалетной комнаты. Если комната будет использоваться для обычных нужд, то ширина комнаты может быть меньше, чем если бы комната была предназначена для инвалидов или для людей с ограниченными возможностями.
- Тип оборудования. Если комната будет оснащена специальным оборудованием, таким как душ или ванна, то ширина комнаты должна быть достаточной для удобного использования этого оборудования.
Рекомендуемые размеры для туалетной комнаты
В зависимости от размера комнаты и количества людей, которые будут использовать туалетную комнату, рекомендуемые размеры для туалетной комнаты могут быть следующими:
- Для комнаты размером 1,5 на 1,5 метра: ширина комнаты должна быть не менее 1 метра.
- Для комнаты размером 2 на 2 метра: ширина комнаты должна быть не менее 1,2 метра.
- Для комнаты размером 2,5 на 2,5 метра: ширина комнаты должна быть не менее 1,5 метров.
Однако, эти рекомендуемые размеры могут быть изменены в зависимости от конкретных потребностей и предпочтений.
Выбор оптимальной ширины для своей туалетной комнаты является важным вопросом, так как это может повлиять на удобство использования и функциональность комнаты. При выборе ширины для своей туалетной комнаты необходимо учитывать размер комнаты, количество людей, которые будут использовать туалетную комнату, тип туалетной комнаты и тип оборудования. Рекомендуемые размеры для туалетной комнаты могут быть изменены в зависимости от конкретных потребностей и предпочтений.
Связанные вопросы и ответы:
Вопрос 1: Что такое ширина туалетной комнаты
Ответ: Ширина туалетной комнаты - это расстояние между противоположными стенами в туалетной комнате, измеряемое в метрах или сантиметрах. Это важный параметр, который определяет удобство использования и функциональность помещения.
Вопрос 2: Какой минимальный размер ширины туалетной комнаты рекомендуется
Ответ: Минимальная ширина туалетной комнаты зависит от размеров и типа туалета. Обычно рекомендуется, чтобы ширина комнаты была не менее 120-150 сантиметров, чтобы обеспечить удобное использование.
Вопрос 3: Как выбрать оптимальную ширину туалетной комнаты
Ответ: При выборе ширины туалетной комнаты следует учитывать размеры и тип туалета, а также его расположение в помещении. Также важно учесть пространство для передвижения и доступность для людей с ограниченными возможностями.
Вопрос 4: Как измерить ширину туалетной комнаты
Ответ: Ширину туалетной комнаты можно измерить с помощью мера или лазерного уровня. Для точных измерений рекомендуется использовать специальные инструменты и следовать инструкциям производителя.
Вопрос 5: Как выбрать туалет с оптимальной шириной
Ответ: При выборе туалета с оптимальной шириной следует учитывать размеры и тип туалета, а также его расположение в помещении. Также важно учесть пространство для передвижения и доступность для людей с ограниченными возможностями.
Вопрос 6: Как увеличить ширину туалетной комнаты
Ответ: Ширину туалетной комнаты можно увеличить путём перепланировки помещения, снятия несущих стен или установки сдвижной двери. Важно учесть, что любое изменение конструкции должно быть одобрено соответствующими властями и выполнено квалифицированными специалистами.
Вопрос 7: Как увеличить пространство для передвижения в туалетной комнате
Ответ: Пространство для передвижения в туалетной комнате можно увеличить путём установки сдвижной двери, использования более компактного туалета или использования специальных устройств для людей с ограниченными возможностями. Важно учесть, что любое изменение конструкции должно быть одобрено соответствующими властями и выполнено квалифицированными специалистами.
Вопрос 8: Как обеспечить доступность туалетной комнаты для людей с ограниченными возможностями
Ответ: Доступность туалетной комнаты для людей с ограниченными возможностями можно обеспечить путём установки специальных устройств, таких как складные поручни, подъемные стойки и специальные туалетные сиденья. Важно учесть, что любое изменение конструкции должно быть одобрено соответствующими властями и выполнено квалифицированными специалистами.
Какая ширина туалетной комнаты является оптимальной
Квартиры и частные дома могут иметь самую разнообразную жилую площадь, от чего зависят габариты кухни, а также санузла. При небольшом размере жилища необходимо уметь правильно распределить место для туалета с ванной. Площадь комнаты будет зависеть от того, что именно в ней будет расположено.
- В комнате с унитазом минимальная ширина должна составлять 80 см, а глубина 1.2 м.
- В помещении, где есть унитаз и раковина, минимальная ширина составляет 1 м, а глубина 1.5 м.
- Для комнаты, в которой совмещается душ и туалет, минимальные размеры будут зависеть от габаритов сантехники. В помещении с унитазом, раковиной и душевой кабинкой минимальной шириной комнаты будет 1.6 м, а глубиной – 1.4 м.
- Если в совмещенном санузле находится унитаз, раковина и ванная, то минимальная ширина равна 2.5 м, а глубина – 1.5 м.
При проектировании данного помещения важно ориентироваться на габариты сантехники и ее расположение внутри. Особое внимание стоит уделить проектированию уборной для людей с ограниченными возможностями, чтобы они могли без труда сами себя обслуживать.
Габариты санузла в этом случае будут иными.
- Ширина туалета может остаться в пределах 80 см, так как инвалидная коляска должна пройти в подобное помещение. Глубина комнаты должна быть не менее 1.2 м, чтобы в ней нормально помещался человек на коляске и сантехника. Высота раковины не должна быть выше 85 см.
- Ширина ванной комнаты не может быть меньше 1.6 см, с учетом размера самой ванной, на которую выделяют 80 см, свободного места для коляски и удобной транспортировки из нее в ванную.
- Для душевой кабинки ширина помещения должна составлять 1.7 м, так как сама сантехника будет занимать более 80 см и человеку с ограниченными возможностями необходимо комфортно перебраться в нее.
При наличии минимального свободного места под санузел необходимо тщательно изучить место и распланировать его так, чтобы обеспечить максимальный уровень комфорта для любого жителя квартиры или дома. В этом случае рекомендуется делать общее помещение, в котором вместо ванной желательно устанавливать боковую душевую кабинку, монтировать частично встроенный в стену унитаз, а стиральную машину располагать под рукомойником.
Какие факторы влияют на ширину туалетной комнаты
Размер, как ни крути, имеет значение, особенно если речь зашла о том, какими должны быть. В этой статьерасскажет, какой должна быть оптимальная площадь туалета для удобства вашей семьи.
Принятые стандарты размера туалета
В попытке сэкономить пространство за счёт уборной, многие люди слишком увлекаются этим, не замечая того, как свели площадь туалета к критическому минимуму. Всем должно быть известно, что существуют общепринятые минимальные размеры туалета, они регулируются ГОСТами и СНиПами.

Основные параметры уборных, регламентируемые СНиПами:
- Ширина – более 0.8 м, длина – от 1.2 м, высота потолков – от 250 см;
- При расположении туалета в мансарде, расстояние от унитаза до наклонной поверхности должно быть не менее 105 см;
- Двери в туалет открывают только наружу, установка дверей внутрь строго запрещена;
- Выход из туалета следует обустроить так, чтобы попадать в коридор, а не в жилую зону или на кухню;
- Высота коридора при выходе из туалета должна составлять не менее 210 см.
СНиП так же регулирует стандартные размеры санузла, совмещенного туалета с ванной, и установку сантехники в нем:
- Перед душевой кабиной или ванной должно быть пространство более 70 см;
- Биде должно устанавливаться на расстоянии примерно в четверти метра от унитаза ;
- От унитаза по левую и правую сторону должно быть расстояние не менее 25 см;
- Перед унитазом должно быть более 60 см свободного места;
- Перед раковиной свободное пространство должно составлять не менее 70 см.
Типовые габариты в жилых домах

В многоквартирных домах есть два типа постройки уборной: обычная и обновлённая.

Отличие их состоит в том, что в обновленной планировке площадь туалета позволяет вместить раковину и.

Соответственно площадь обычного туалета 1200*800 мм, 1500*800 мм и обновлённого 1000*1500 мм.

Что касается ванной комнаты, то ее средний размер 1650-2000*1200-2500 м.3,3 – 3,8 м².

Такжеучитывают некоторые последние требования СНиПов, которые в «хрущёвках» не соблюдены. В современных однушках при планировке заложен совместный– унитаз, раковина и ванна. В 2-х или 3-х комнатных квартирах делается раздельный санузел – туалетная комната отдельно от ванной комнаты. В четырехкомнатных квартирах должно быть спланировано два совместных санузла. Данные нормативы созданы для обеспечения удобства и благополучия жильцов.
Как рассчитать оптимальный вариант

Когда появляется возможность самостоятельно задать размеры санузла без каких-либо ограничений по площади, многие люди, набившие шишки в узких и тесных типовых помещениях, начинают мечтать о большом пространстве, где не придется экономить каждый сантиметр.

Сразу оговоримся: огромный санузел – это сплошное расточительство, поэтому здесь необходимо искать золотую середину.

Если следовать законам эргономики, то для душевой кабины требуется площадь 1,7-2,5 м.кв., для комфортной ванны 2,7- 3,5 кв.м, для туалета 1,2-1,8 м.кв. для раковины около 1 м. Таким образом, оптимальная площадь уборной для семьи из 4-6 человек 7-9 м.кв. Лучше, если это будет прямоугольное помещение: ширина санузла — 2,5 м, а длина — 3,5 м.

Для грамотной планировки санузла полезно знать:
- Высота стандартной ванны с ножками — 640 мм, без — 480-510 мм, размеры ванн 750-800*1600 мм, 750-800*1700 мм, угловые модели — 1500*1500 мм и 1600*1600 мм;
- Душевые кабины — 800*800, 900*900 и 1000*1000 мм, для маленьких помещений рекомендуется выбрать душевую панель с поддоном;
- Полотенцесушитель, чтобы до него было легко дотянуться, должен быть на 500-700 мм удален от ванны или душа;
- В зависимости от модели размеры унитазов могут отличаться — 440*650, 400*600, 360*650;
- Биде — 370*540 и 400*600 мм;
Размеры уборных для людей с ограниченными возможностями рассчитываются исходя из габаритов инвалидной коляски.

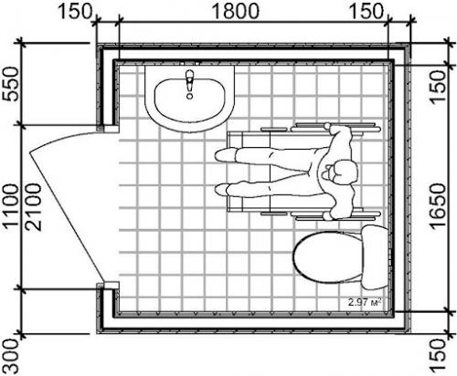
Так, минимальный размер ванной должен быть не менее 2,3 кв. м, туалет с умывальником от 1,6 м.кв., без умывальника допускается 1,2 м.кв., для инвалидов колясочников ширина санузла – 1650 мм, глубина – 1800 мм.
Как выбрать подходящую ширину туалетной комнаты в зависимости от ее размеров
В отличие от санузла в городской квартире, вариант для частного дома требует монтажа канализационной системы. Именно поэтому инженерным коммуникациям, ванной и туалету необходимо уделить внимание еще на этапе проектирования, заранее выбрав для них место.
Грамотная планировка дома с санузлом зависит от ряда обязательных требований и факторов:
- Правильное подведение воды.
- Безопасное электроснабжение.
- Организация вентиляции.
- Оптимальные габариты относительно несущих стен.
- Необходимое расстояние между мебелью, оборудованием и сантехникой.
- Планирование естественного или искусственного освещения в зависимости от наличия окон.
- Желаемое наличие в помещении перегородок или ниш.
- Легкий доступ из всех помещений.
Проведение всех необходимых коммуникаций должно быть не только удобным в эксплуатации, но и безопасным. В особенности это касается монтажа водопроводных и электросетей во избежание риска замыканий, пожаров и затоплений.
Также следует определиться со следующими важными критериями:
- вид будущего санузла;
- количество жильцов и комнат, между которыми нужно распределить санузлы;
- особые потребности кого-либо из жильцов, для которых понадобится специальное оборудование;
- личные пожелания по наполнению - ванна, душевая кабина, биде и так далее;
- бюджет предстоящих работ.
Руководствуясь этими данными, вы сможете определить размеры, количество и варианты расположения санузлов, которые будут отвечать не только требованиям и нормам строительства, но и потребностям владельцев дома.
Разберем перечисленные критерии подробнее.
Как рассчитать оптимальную ширину туалетной комнаты для своего дома
Производя ремонтные или строительные работы, собственник старается увеличить жилую площадь именно за счет санузла. В результате таких манипуляций на санузел оставляют минимальную квадратуру. Для того чтобы не заработать штраф от государственных органов, следящих за этим, следует придерживаться стандартных норм, определяющих размеры туалета, принятые техническим регламентом по СНиПу и ГОСТу. Нормативно-правовая база содержит широкий список документов, регулирующих минимальные габариты и допустимые параметры туалетных комнат в квартире, частном доме либо в другом здании. Нормы распространяются не только на габариты, но и на расположение уборной. Поэтому рекомендуется обдумать и просчитать нюансы планировки до начала внесений существенных изменений.
Важно! В частном домовладении можно отказаться от установленных правил местонахождения и площади туалетов только в том случае, если не произведено подключение к центральной канализации и водопроводу.
Общепринятые параметры гигиенических комнат в типовом панельном доме начинаются с 1200 на 800 мм. В квартирах улучшенной планировки эти значения начинаются с 1500 на 800 мм и могут вместить в себя раковину и узкую машинку для стирки. В частном домовладении есть возможность производить замеры по собственному усмотрению, не ограничивая себя в рамках. Но следует понимать, что не стоит бросаться по все тяжкие.
При этом стоит сказать еще о нескольких общедопустимых правилах, касающихся планирования этого пространства, а именно:
- открытие дверей должно производиться наружу;
- выход должен быть оборудован в нежилое помещение;
- пространство перед ванной или душевой кабиной не может быть меньше 70 см.;
- биде располагается на 25 см в удалении с любой стороны унитаза;
- между раковиной и стеной должно быть 45 см.;
- унитаз устанавливается таким образом, чтобы от его передней стенки до стены не было меньше 60 см, а по бокам – не менее 25 см.
Данные стандарты распространены на туалетные комнаты, имеющие достаточную площадь в панельных домах.
Какие стандарты и нормы рекомендуются при проектировании туалетной комнаты с учетом ее ширины
Эргономика ванной комнаты, в первую очередь, направлена на удобство при проведении гигиенических процедур. Для каждого человека существуют свои понятия о комфорте, мы лишь приводим усредненные цифры, на которые стоит ориентироваться.
Ванну рекомендуется устанавливать на высоте 60 см от пола, при этом нужно предусмотреть уклон для слива воды в канализацию. Высота чаши от ее дна до потолка должна составлять около 200 см. А для пожилых людей более удобным вариантом считается стеклянная душевая кабинка – слишком высокий бортик создает дополнительные трудности.
При установке раковины необходимо учитывать рост хозяина квартиры, но стандартной высотой считается интервал от 80 до 110 см, оптимально – 90. Если вместо цельной конструкции предполагается накладная мойка и подстолье, то лучше всего выбирать их одновременно, чтобы заранее определиться с уровнем монтажа изделий.
Стоит учесть и такие рекомендации эргономики, как расстояние между раковиной и зеркалом: оно должно составлять не менее 20 см. Зеркальная поверхность в таком случае будет защищена от капель и брызг. Удобно, если между ванной (или душем) и вешалками для полотенец выдержано 50–70 см: так до них легче будет дотянуться. То же правило касается полочек для гигиенических средств.

На фото небольшой совмещенный санузел с продуманной эргономикой.


Если в ванной комнате установлен унитаз, по стандарту расстояние до ванны должно составлять минимум 50 см. Но в малогабаритных помещениях не всегда есть возможность выкроить необходимые сантиметры: тогда в пользу эргономики стоит задуматься о замене ванны на душевую со сливом в пол.
Расстояние перед унитазом тоже должно быть комфортным. Если перепланировка не предполагается, но не хочется мириться с теснотой, стоит присмотреть другой унитаз. Выгадать 15 см позволит изделие с верхним бачком, но не каждый согласится на "старомодный" дизайн. Выход есть – подвесной унитаз со встроенным бачком. Он компактней классических моделей, к тому же выглядит весьма эстетично. Увы, замена сантехприбора влечет за собой ремонт пола, а также участка на стене за ним.
Для удобства желательно располагать унитаз в 40 см от другой мебели: от кабины или от ванны, биде и раковины. Правилами эргономики ванной установлено, что для минимального удобства между биде и унитазом желательно оставить около 30 см. Различные аксессуары (гигиеническая лейка, держатель для туалетной бумаги) нужно размещать на расстоянии полувытянутой руки. Высота держателя от пола – около 70 см.

На фото унитаз, расположенный довольно далеко от ванны, но близко к тумбе: в маленькой ванной комнате лучше пожертвовать расстоянием до мебели, чем до чаши.


Как учесть необходимость размещения в туалетной комнате ванной или душевой кабины при выборе ее ширины
Перед установкой необходимо рассчитать размеры.
Ширина
Для того чтобы определить стандарт полотна в ванную/ туалет, следует рассчитать параметры ширины. Все расчеты должны делаться так:
- первым делом делаются нужные припуски. Стоит учитывать, чтобы параметры зазора между коробкой, стеновой перегородкой составляли не меньше 0,1-0,15 сантиметра. Обязательно оставляется небольшое пространство между коробом и полотном (не меньше 0,3 сантиметра);
- делаем расчеты ширины дверного элемента. От полученных данных ширины проема нужно отнять указанные в первом пункте данные зазоров и измерения ширины дверного бруса. В итоге результат последней величины должен быть 2,5 сантиметра. Все используемые величины умножаются на 2.
Иногда пользуются простым способом, дверь помещают в стандартный проем, проверяют, подходит она под него или нет. Все расчеты делаются путем прибавления перечисленных выше величин к данным ширины полотна.
Как это выглядит на примере. Величины, соответствующие ширине полотна дверей в ванную комнату и туалет — это 60-70, для обычных комнатных помещений – 80-90. Если устанавливается на проем в ванную комнату или туалет, широкое межкомнатное дверное полотно, ширина которого составляет 80, то расчеты ширины проемного входа нужно делать так: 80 + (1 см + 2,5 + 0,3) х 2 = 88 сантиметров. В итоге этих вычислений получается величина, которая является наименьшим измерением ширины проема.

Ширина дверного проема в разрезе
Высота
Расчеты высоты выполняются также. Пример: Стандартный размер высоты дверей составляет – 2 метра или 200 сантиметров. К этому измерению нужно прибавить 3 ранее применяемых измерения, умножать на 2 не нужно. Прибавляется 1 см – величина зазора между дверью и напольным покрытием.
Расчеты выполняются согласно формуле: 200 + 1 + 2,5 + 0,3 + 1 = 205 сантиметров. Во время установки коробки в ванную комнату/туалет обязательно нужно учитывать высоту порога. Расчеты выполняются по примеру: 200 + (1 + 2,5 + 0,3) х 2 = 208 сантиметров.
Если имеется большой стандартный проход, то желательно запас брать побольше: 3,5-4,5 см с каждой из сторон, значит, при проведении расчетов ширины, измерения умножаются на два. А при проведении расчетов высоты, делается запас на 5-8 см для помещения с порогом или 7-9 сантиметров, если нет порога.

Как рассчитать ширину туалетной комнаты с учетом размеров входной двери
shutterstock.com
Существует масса способов небольшое пространство сделать больше. Сегодня займемся "обустройством" одного из самых необходимых помещений в любом доме – ванной комнаты.
Увеличения пространства можно добиться разными способами. Можно поработать со светом и цветом, изменить расположение предметов, убрать лишнее – одним словом, вариантов множество. Мы хотим предложить вам 10 самых простых способов сделать маленькую ванную комнату визуально больше.
Способ 1 – цвет
Даже не дизайнеры знают, что темные оттенки делают помещение меньше, психологически давят на человека, а светлые оттенки зрительно увеличивают пространство. Этот простой прием будет особенно эффективно работать в небольшой по площади ванной комнате. Чтобы визуально расширить пространство, в отделочных материалах используйте все оттенки белого (жемчужный, кремовый, молочный, цвет слоновой кости и т.д.). Такой же эффект создадут и светлые оттенки других цветов: светло-салатового, песочного, бледно-голубого.
Вам такой интерьер кажется скучным? Добавьте ярких пятен – полотенца, коврик, баночки для шампуня и мыла. Так вы сможете оживить обстановку (внутреннее убранство), но при этом ощущение простора не потеряется.
Светлые цвета хороши и с практической точки зрения. На темной плитке, в отличие от светлой, видны не только пятна от зубной пасты, крема или мыла, но и просто подтеки воды. По этой причине вам придется ежедневно заниматься уборкой помещения, отделанного темными материалами.
Способ 2 – зеркала
Еще один известный способ расширить пространство небольшой комнаты – добавить зеркал, т.к. они обладают способностью увеличивать объем помещения в разы. В маленькой ванной они будут как нельзя кстати. К зеркалу над умывальником, которое есть у большинства, можно добавить еще большое, во весь рост, зеркало на свободной стене или приобрести шкафчики с зеркальными дверцами.
К сожалению, на зеркале в ванной видна каждая попавшая на него капля, поэтому, если вы любите чистоту, мыть его придется регулярно.
Способ 3 – свет
Вам повезло, если в вашей ванной есть окно – источник естественного освещения. Однако в большинстве случаев этим могут похвастаться только владельцы частных домов, в квартирах же оконные проемы в ванной отсутствуют. А ведь свет имеет большое значение для визуального расширения пространства. Значит, нужно грамотно распределить источники искусственного освещения по комнате.
Небольшого бра у зеркала и нескольких точечных светильников в центре комнаты на потолке может быть недостаточно: углы все равно будут оставаться в тени. Чтобы ванная комната казалась больше, нужно высветить все темные места и наполнить ванную светом. Не забывайте также и о подсветке ниш, если таковые имеются.
Способ 4 – плитка
В маленькой ванной комнате размер имеет большое значение, в том числе и размер плитки. Если вы решили облицевать стены кафельной плиткой, то выбирайте материал небольшого размера – так ваша комната зрительно будет казаться больше.
Неплохой вариант, который часто применяют при бюджетном ремонте ванной комнаты, – панели ПВХ. Благодаря отсутствию стыков между ними получается сплошная стена, что также создает впечатление большого пространства.
Способ 5 – сантехника
Производители сантехники уже давно ушли от оборудования стандартных размеров – настал праздник и для владельцев маленьких квартир. В продаже сейчас без труда можно найти небольшие по величине умывальник или ванну. Именно такие компактные предметы и помогут увеличить (причем не визуально, а реально) площадь ванной комнаты.
Самое первое, что нужно сделать, – определиться с выбором между ванной и душевой кабиной. Если у вас узкая, вытянутая в длину ванная комната, то в этом случае вам больше подойдет ванна. Однако при покупке обращайте внимание на модель. В некоторых предусмотрены дополнительные места для хранения, что делает ванну более массивной. В вашем случае самое правильное – выбрать наиболее простую модель без всяких излишеств. Неплохой вариант для маленьких санузлов – угловая сидячая ванна.
Если вы не большой любитель понежиться в теплой воде, да и ритм вашей жизни не позволяет уделять много времени водным процедурам, то вам лучше приобрести душевую кабину. Она занимает меньше места, поэтому вы даже сможете установить на освободившейся территории стиральную машину.
Способ 6 – системы хранения
Ванная не спальня, однако и там необходимы места для хранения. Оставить все предметы на открытых полках не самый лучший вариант, т.к. в этом случае помещение будет казаться захламленным. Где же в ванной расположить многочисленные баночки, тюбики, щетки и другие вещи?
Во-первых, шкафчики. Чтобы не забирать и так небольшое пространство, глубина шкафчиков должна быть минимальной. Хорошее дополнение – зеркальные дверцы, которые будут способствовать расширению площади.
Какие материалы и конструкции можно использовать для увеличения ширины туалетной комнаты
Зонирование
Если вы занимаетесь обустройством нового помещения или делаете ремонт, который позволяет вносить кардинальные изменения, в первую очередь вы можете задуматься о количестве санузлов. Считается, что два санузла – оптимальное решение для больших домов. Один санузел – для «активной» зоны (возле кухни и гостиной), другой – для «пассивной» зоны (возле спален).
В случае с двухэтажным домом, санузлы можно размещать на каждом этаже. И, если есть такая возможность, для туалета лучше предусмотреть отдельное помещение. Это позволит избежать неприятных моментов, когда кто-то и гостей или членов семьи принимает душ, занимая всю ванную комнату.
Если вы решили сделать одну ванную комнату, ее можно разделить на несколько зон, которые помогут создать эргономичное пространство:
- зона для водных процедур (душ, ванна, раковина);
- зона личной гигиены (унитаз, биде);
- зона стирки и хранения средств по уходу (стиральная машина, сушилка, шкафы и полки).
Расположение раковины
Стандартная высота для установки раковины составляет 80-90 см от пола. В случае со сдвоенной раковиной, расстояние от центра каждой из них должно быть не менее 90 см. При этом расстояние между двумя отдельными раковинами должно быть не менее 10 см. Также рекомендуется устанавливать раковину на расстоянии 20 см. от стены.
Если у детей нет отдельной ванной комнаты, им может понадобится лестница или табурет, чтобы достать до раковины.
Размеры душевой кабины
Душевая кабинка должна быть просторной, чтобы всем членам семьи было удобно мыться. Минимальный рекомендуемый размер составляет 70х70 см. Если позволяют размеры помещения, рекомендуется выбирать размер душевой от 90 см.
Расстояние от головки душа до верхушки голова человека должно быть не менее 30 см. Это важно, так как поможет вам не ударяться головой каждый раз, когда вы заходите в душ. Не забудьте о шторках для ванной или стеклянных перегородках для душевой кабины, чтобы вода не разбрызгивалась вокруг.
Рядом с ванной или душевой кабинкой можно заранее продумать дополнительное место, чтобы было удобно раздеться, оставить полотенце и одеться.
Расположение зеркал в ванной комнате
Зеркала можно выбирать в первую очередь в соответствии с размерами раковины и самой ванной комнаты. Например, если в вашей ванной две раковины, то лучше использовать два зеркала или одно, но большое и длинное, чтобы охватить сразу два шкафа.
Другой пример — маленькая ванная комната. Если выбрать большое зеркало, ванная может казаться визуально больше. С маленьким зеркалом в маленькой комнате ванна, наоборот, будет казаться еще меньше.
Нижняя часть зеркала может быть на расстоянии 35-45 см от раковины, однако это может изменяться в зависимости от роста жильцов. Высота установки зеркала от пола составляет 170-220 см. Вы можете ориентироваться на рост самого высокого жильца.
Туалет
Если санузел расположен отдельно от ванной, в нем можно установить раковину, чтобы можно было помыть руки тут же. Санузел с раковиной должен быть хотя бы 1-1.7 метров шириной. Лучше всего, если ширина помещения примерно 1.3 метра или 90 см без учета раковины.
Унитаз должен быть расположен в 30-50 см от стен и других приборов. Держатель туалетной бумаги должен быть на расстоянии 20-30 см от унитаза. Его нужно устанавливать на высоте 60-70 см от пола.
Как спланировать эргономичную ванную комнату:
- Произведите замеры и определите места для канализации и разводки горячей/холодной воды;
- Определите, можно ли будет передвинуть сантехнику (существует масса форм и размеров, вопрос лишь в цене);
- Узнайте, достаточно ли в помещении места для того, чтобы сделать раздельный санузел, если стоит такая задача;
- Выберите полки, сантехнику и другие аксессуары для ванной, учитывая размеры пространства;
- Выберите необходимые приспособления и материалы для финишной отделки.
Как сделать туалетную комнату удобной и функциональной при определенной ширине
Адаптация санузла для инвалидов в общественных зданиях предполагает доступность каждого вида сантехники для лиц с ограниченными возможностями.
Основные положения
Требований к процессу адаптации предъявляют достаточно много.
На практике же достаточно соблюдения основных наиболее важных моментов, реально влияющих на удобство использования санузла.
После адаптации туалет должен быть доступен для всех инвалидов, включая:
- Слабовидящих.
- Передвигающихся на инвалидных колясках.
- Ходящих при помощи трости или костылей.
Двери в санузел
Размеры
- Фактическая ширина дверного проема при открытии дверей на 90 градусов не менее 120 см.
- Высота порога не более 1,4 см.
Фурнитура
- Ручки только нажимного действия.
- Распашная или раздвижная с сенсором движения и автоматическим открыванием.
Обозначение
- На дверь устанавливается тактильная пиктограмма с указанием доступности санузла для инвалидов.
Нормативные акты
- Число мест для инвалидов не менее 5% от общего количества и не менее одного на санузел (кабинка, унитаз, писсуар, раковина).
- Размер отдельных кабинок не менее 165 x 220 см (ширина, глубина), дверь не менее 90 см с открыванием наружу.
- Высота унитаза для инвалидов от 45 до 60 см.
- Высота универсального унитаза для всех посетителей, включая инвалидов от 45 до 50 см.
- Наличие жестко закрепленной опоры для спины (при отсутствии сливного бачка напольного типа).
- Наличие откидного поручня хотя бы с одной стороны.
- Рекомендуемая высота поручня 70-85 см, длина не менее 60-80 см.
- Расстояние со стороны откидного поручня до стены не менее 80 см, со стороны второго поручня не менее 4 см.
Общие требования к санузлу
Нормативные акты
Унитазы
В санузле должен быть установлен минимум один унитаз для людей с ограниченными возможностями.
Рекомендуется делать его крайним, если сантехника стоит в ряд.
Требования к унитазам
Требования к поручням
При установке двух поручней с обеих сторон унитаза разрешается один ставить неоткидной.
Расстояние между двумя поручнями 60 см.